Задачи дипломного проектирования 4 организация работы над дипломным проектом в период дипломного проектирования 5
| Вид материала | Диплом |
Содержание4.2 Оформление графических документов 4.2.1 форматы и основные надписи Таблица 4.1 Стандартные форматы |
- С. П. Колотовкин организация курсового проектирования, преддипломной практики и дипломного, 276.32kb.
- Методические указания к дипломному проектированию для студентов специальности 061100, 594.38kb.
- Проекта) должна быть привязана к объекту дипломного проектирования. Например: «Совершенствование, 211.79kb.
- Методические указания по выполнению курсового (дипломного) проектирования Общие положения, 242.09kb.
- Тема дипломного проекта, 20.24kb.
- Темы и задания на дипломное проектирование, 113.59kb.
- Руководство проектом > Организация > Этапы проектирования и процессы проектирования, 583.93kb.
- Задание на дипломирование Реферат, 444.89kb.
- Методические основы организации дипломного проектирования по специальности 230102 «Автоматизированные, 1528.59kb.
- Методические указания Волгоград 2010 удк 621. 91 Рецензент, 669.19kb.
4.2 ОФОРМЛЕНИЕ ГРАФИЧЕСКИХ ДОКУМЕНТОВ
4.2.1 ФОРМАТЫ И ОСНОВНЫЕ НАДПИСИ
Графические документы дипломного проекта оформляются на листах стандартных форматов.
Таблица 4.1
Стандартные форматы
| Формат | Размеры сторон, мм |
| А1 | 594 841 |
| А2 | 420 594 |
| А3 | 297 420 |
| А4 | 210 297 |
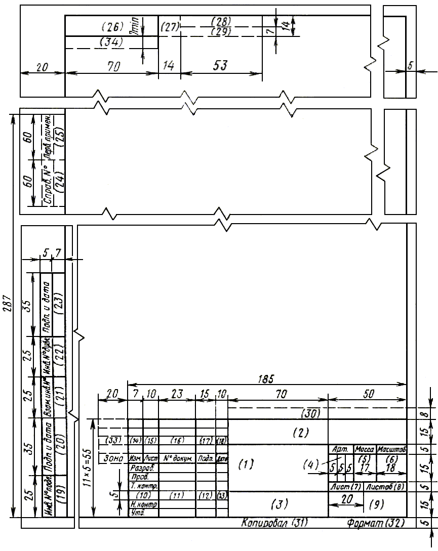
Листы чертежной бумаги, поступающие в продажу, обычно имеют размеры больше стандартных. Основные надписи располагают в правом нижнем углу конструкторских документов (рис. 4.1).

Рис. 4.1. Расположение основной надписи и дополнительных
граф на стандартных форматах:
а – формат А4, б – формат больше А4 при расположении основной надписи вдоль
короткой стороны листа, в - формат больше А4 при расположении основной
надписи вдоль длинной стороны листа; 1 – основная надпись, 2 – дополнительные графы.
На листах формата А4 основные надписи размещают только вдоль короткой стороны листа, т.е. формат А4 всегда имеет вертикальное расположение.
Содержание и размеры граф основной надписи на чертежах и схемах должны соответствовать формам 1, 2а, а в спецификации, перечне элементов и ведомости дипломного проекта – формам 2 и 2а по ГОСТ 2.104-68 (рис. 4.2. – 4.4).

Рис. 4.2. Форма 1.

Рис. 4.3. Форма 2.

Рис. 4.4. Формы 2а.
Форма 2а используется для последующих листов документов. Цифрами в скобках показаны номера граф, заполняемых в дипломном проекте.
В графе 1 основной надписи указывают наименование изделия в соответствии с ГОСТ 2.109-73, а также наименование документа, если этому документу присвоен код, например: «Модель процессора.
Схема электрическая принципиальная», «Блок управления дозатором. Чертеж общего вида».
Наименование должно быть кратким и записывается в именительном падеже единственного числа. На первом месте должно быть существительное.
В графе 2 дается обозначение документа по ГОСТ 2.201-80.
Это же обозначение, повернутое на 180о, указывается в дополнительной графе III, имеющей размеры 70х14 мм (рис. 5.1.).
Для студенческих работ обозначение документа строится в следующей последовательности:
- аббревиатура университета – СамГТУ;
- шифр специальности с указанием специализации;
- индекс кафедры;
- регистрационный номер темы дипломного проекта на кафедре;
- порядковый номер документа (графические документы следует нумеровать, начиная с номера 03; номера 01 и 02 имеют соответственно задание и пояснительная записка).
Перечисленные буквенно-цифровые комбинации разделяются точками, перед кодом чертежа вместо точки оставляется пробел.
Пример:
СамГТУ 220301.041.011.06 Э1
Код документа (кроме схем) присваивается по ГОСТ 2.102 - 68:
- СБ – сборочный чертеж;
- ВО – чертеж общего вида;
- ПЗ – пояснительная записка;
- ТБ – таблицы;
- Д – прочие документы;
- ПФ – патентный формуляр;
- И – инструкции.
Код схемы согласно ГОСТ 2.701 - 84 состоит из буквы, определяющей вид схемы, и цифры, обозначающей тип схемы. Для электрических схем используется буква «Э».
Типы схем обозначаются следующими цифрами:
- – структурная;
- – функциональная;
- – принципиальная;
- – соединений (монтажная);
- – подключения;
- – общая;
- – расположения;
- – объединенная.
Схема электрическая функциональная имеет код Э2.
Обозначения всех документов, описывающих одно и то же изделие, должно отличаться только кодом.
Пример:
СамГТУ 220301.041.000.00 Э1 Блок управления. Схема электрическая структурная;
СамГТУ 220301.041.000.00 Э3 Блок управления. Схема электрическая принципиальная;
СамГТУ 220301.041.000.00 ПЭ3 Блок управления. Перечень элементов.
Обозначения документов, относящихся к различным изделиям (устройствам, узлам, деталям), должны отличаться друг от друга.
Пример:
СамГТУ 220301.041.000.00 СБ Модуль источника питания. Сборный чертеж;
СамГТУ 220301.041.000.01 Плата источника питания (для чертежа печатной платы источника питания);
СамГТУ 220301.041.000.02 Радиатор (для чертежа радиатор, входящего в состав модуля источника питания);
СамГТУ 220301.041.000.00 Э3 Модуль усилителей. Схема электрическая принципиальная.
Для схем программ (схем алгоритмов), графиков процессов, схем автоматизации объекта, функциональных схем систем автоматического управления, сетевых графиков и других чертежей, для которых в ЕСКД не предусматривается собственный код, используется код «Д» (прочие документы).
В остальных графах основной надписи указываются:
в графе 3 – обозначение материала (только для чертежей деталей);
в графе 4 – литера, присвоенная данному документу по ГОСТ 2.103 – 68;
в графе 5 – масса изделия в кг по ГОСТ 2.109 - 73;
в графе 6 – масштаб в соответствии с ГОСТ 2.302 - 68 и ГОСТ 2.109 - 73. (масштабы уменьшения: 1:2, 1:2,5, 1:4, 1:5, 1:10 и т.д.; масштабы увеличения: 2:1, 2,5:1, 4:1, 5:1, 10:1 и т.д.);
в графе 7 – порядковый номер листа (на документах, состоящих их одного листа, графа не заполняется);
в графе 8 – общее количество листов данного документа (графа заполняется только на первом листе);
в графе 9 – индекс (обозначение) группы, например: ЭА-501, ЭМВ-619;
в графе 10 – строки этой графы заполняются сверху вниз в следующем порядке: студент, руководитель, консультант, нормоконтроль, зав. кафедрой;
в графах 11 - 13 соответственно фамилии, подписи лиц и даты подписания документа;
графы 14, 15, 16, 17, 18 не заполняются.
