Свод правил сооружения магистральных газопроводов производство сварочных работ и контроль качества сварных соединений code of the regulations on contstruction
| Вид материала | Документы |
- Пояснительная записка к проекту Свода Правил сооружения магистральных газопроводов, 1654.68kb.
- Контроль качества сварных соединений трубопроводов стальных, из полимерных материалов,, 375.15kb.
- Темы рефератов. Бактериальная коррозия. Виды бактерий, развивающихся в нефтепроводных, 6.66kb.
- Уважаемые коллеги!, 46.85kb.
- Унифицированная методика контроля основных материалов (полуфабрикатов), сварных соединений, 874.83kb.
- Руководство и технический контроль за проведением сварочных работ, включая работы, 27.64kb.
- Рабочая программа дисциплины «контроль качества сварных соединений» для студентов специальности, 218.7kb.
- "Инструкция по радиографическому контролю сварных соединений трубопроводов различного, 1483.88kb.
- Инструкция по подготовке и хранению сварочных материалов оксту 1208, 518.15kb.
- 6. 19. Устройства наружных сетей газоснабжения, кроме магистральных Требования к выдаче, 196.17kb.
3.3. Двусторонняя механизированная сварка под флюсом
3.3.1. Двустороннюю механизированную сварку под флюсом (ДМСФ) выполняют на трубосварочных базах типа БТС, обеспечивающих полную механизацию сборочно-сварочных и транспортных операций в процессе изготовления трубных секций и гарантирующих сохранность наружной заводской изоляции труб.
3.3.2. Перед сваркой необходимо провести входной контроль труб в соответствие с СП на трубы и исправить обнаруженные дефекты на поверхности и свариваемых кромках в соответствии с разделом 5 настоящих СП.
3.3.3. После загрузки труб на приемный стеллаж трубосварочной базы необходимо очистить внутреннюю полость труб от попавшего внутрь грунта, грязи, снега.
3.3.4. Изготовление трубных секций разрешается выполнять только из труб с одинаковой нормативной толщиной стенки.
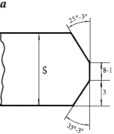
3.3.5. Трубы, подлежащие сварке, должны иметь разделку кромок в соответствии с рис. 3.3.1. Изменение разделки кромок труб производят на трубосварочной базе с использованием станков для механической обработки. Одновременно с обработкой кромок следует очистить до металлического блеска прилегающие к кромкам внутреннюю и наружную поверхности труб на ширину не менее 10 мм. Участки усиления заводских швов, прилегающие к свариваемому торцу, следует удалить заподлицо с поверхностью трубы на расстоянии от торца не менее 10 мм.
![]() | ![]() |
| а - для труб с толщиной стенки 18,3 мм | б - для труб с толщиной стенки 21,8 и 27,1 мм |
Рис. 3.3.1. Разделка кромок труб диаметром 1420 мм для двусторонней механизированной
сварки на трубосварочных базах типа БТС
Сборку выполняют без зазора. На отдельных участках стыка длиной до 100 мм допускается зазор величиной не более 0,5 мм. Смещение кромок труб при сборке не должно превышать 20% от толщины стенки трубы, но не более 3 мм. Измерение величины смещения выполняется сварочным шаблоном по наружным поверхностям труб.
3.3.6. Сборку труб следует выполнять только на внутреннем центраторе, входящем в состав оборудования трубосварочной базы.
3.3.7. При наличии влаги на поверхностях труб независимо от температуры окружающего воздуха, а также при температуре окружающего воздуха ниже +5 °С перед прихваткой или сваркой необходимо произвести просушку торцов труб путем нагрева до температуры +50 °С.
3.3.8. Сборку стыков следует выполнять при помощи одной прихватки длиной не менее 200 мм, выполняемой на режимах сварки первого наружного слоя шва.
После сварки прихватку следует тщательно очистить от шлака, шлифмашинкой сделать пропилы по оси стыка в начале и конце прихватки, после чего повернуть трубную секцию на 180° так, чтобы прихватка расположилась в нижней части стыка, после чего начинают сварку первого слоя шва.
3.3.9. Сварку стыка производят в следующем порядке:
- первый наружный слой шва;
- внутренний слой шва;
- последующие наружные слои шва. Допускается одновременная сварка второго наружного и внутреннего слоев шва.
3.3.10. Минимально допустимое число наружных слоев шва в зависимости от толщины стенки трубы приведено в табл. 3.3.1.
Внутренний слой должен быть сварен однослойным.
Таблица 3.3.1
Число наружных слоев шва при ДМСФ
| Диаметр трубы, мм | Толщина стенки, мм | Минимально допустимое число наружных слоев шва |
| 1420 | 18,3 | 2 |
| | 21,8 | 3 |
| | 27,1 | 4 |
3.3.11. Режимы сварки наружных и внутреннего слоев шва приведены в табл. 3.3.2 и 3.3.3.
Таблица 3.3.2
Режимы сварки под флюсом труб диаметром 1420 мм на трубосварочных базах типа БТС
| Толщина стенки трубы, мм | Порядковый номер слоя | Сварочный ток, А | Напряжение на дуге, В | Скорость сварки, м/ч | Смещение электрода с зенита против вращения трубы, мм |
| Наружная сваркa | |||||
| 18,3 | 1 2 | 700-750 600-700 | 42-44 44-48 | 40-50 40-50 | 60-80 40-60 |
| | 1 | 700-750 | 40-44 | 40-50 | 60-80 |
| 21,8; 27,1 | 2 | 750-800 | 44-46 | 50-60 | 40-60 |
| | 3,4 | 700-800 | 46-48 | 40-50 | 40-60 |
| Bнутренняя сварка | |||||
| 18,3; 21,8; 27,1 | 1 | 500-800 | 40-44 | 40-50 | 15-20* |
Примечание. Сварка током обратной полярности, электродной проволокой диаметром 3 мм при вылете 40-45 мм и угле наклона "вперед" до 30°.
Смещение электрода с надира трубы "по" или "против" вращения трубы.
Таблица 3.3.3
Режимы сварки под флюсом труб диаметром 1420 мм на базах типа БТС с использованием комбинации "флюс OK Flux 10.71 + проволока OK Autrod 12.24 диаметром 4 мм"
| Порядковый номер слоя | Сварочный ток, А | Напряжение на дуге, В | Скорость сварки, м/ч | Смещение электрода с зенита против вращения трубы, мм |
| Наружная сварка | ||||
| 1 | 800-850 | 28-30 | 35-40 | 65-75 |
| 2 и последующие | 750-800 | 29-31 | 32-35 | 60-70 |
| облицовочный | 720-770 | 33-35 | 30-32 | 50-60 |
| Внутренняя сварка | ||||
| 1 | 720-750 | 32-34 | 30-32 | 50-60 ![]() |
Примечание: 1). Сварка током обратной полярности, электродной проволокой диаметром 4 мм при вылете 30-35 мм и угле наклона "вперед" до 15°.
2). Режим сушки-прокалки флюса: 300° С х 24 ч.
3). Смещение электрода с надира трубы "по" направлению вращения трубы, угол наклона электрода "вперед" до 5°.
3.3.12. При заклинивании шлака в разделке во время сварки первого наружного слоя шва и для улучшения сопряжения шва со стенками разделки смещение электрода с зенита трубы рекомендуется увеличить на 5-10 мм по сравнению со значениями, приведенными в табл. 3.3.2.
3.3.13. Начало и окончание сварки стыка следует располагать на расстоянии не менее 100 мм от продольных швов свариваемых труб.
"Замки" смежных слоев шва должны быть смещены на расстояние не менее 100 мм.
3.3.14. Запрещается освобождать жимки центратора до полного завершения процесса сварки первого наружного слоя шва.
3.3.15. Интервал времени между завершением первого наружного слоя шва и началом сварки внутреннего слоя не должен превышать:
- 1 часа при положительной температуре воздуха;
- 30 минут при температуре воздуха ниже нуля.
В конце смены стыки труб должны быть заварены полностью. В порядке исключения разрешается оставлять до следующей смены стык труб с несваренным облицовочным слоем шва.
При невыполнении указанного требования стыки подлежат вырезке.
3.3.16. Запрещается резкий сброс сваренных секций и их соударение, а также их скатывание на мокрый грунт или снег до полного остывания стыка до температуры окружающей среды.
3.3.17. Величина усиления внутреннего и облицовочного наружного слоев шва должна составлять 2±1 мм. Ширина этих швов должна соответствовать данным, приведенным в табл. 3.3.4.
Таблица 3.3.4
Ширина швов при ДМСФ
| Толщина стенки трубы, мм | Ширина наружного шва, мм | Ширина внутреннего шва, мм |
| 18,3 | 17-24 | 16-23 |
| 21,8 | 18-25 | 16-23 |
| 27,1 | 19-26 | 18-25 |
3.3.18. Для контроля геометрических размеров швов в соответствии с СП из одного стыка от каждых двухсот товарных кольцевых стыков вырезают по 3 темплета для изготовления макрошлифов. Темплеты вырезают на любом участке сварного соединения равномерно по периметру стыка, но не ближе 200 мм от места начала или окончания процесса сварки.
При оценке качества сварных соединений по макрошлифам величина перекрытия внутренних и наружных слоев должна быть не менее 3 мм, а смещение их осей не должно превышать 2 мм. Смещение наружного облицовочного слоя шва относительно первого наружного слоя не считается браковочным признаком, если при этом в шве отсутствуют недопустимые дефекты. Глубина проплавления внутреннего шва должна быть не более 7 мм при толщине стенки трубы 18,3 мм и не более 10 мм при толщинах 21,8 и 27,1 мм. В случае несоответствия размеров швов требованиям и наличия на макрошлифах недопустимых дефектов сварку товарных стыков следует остановить. Все стыки, сваренные до вырезки макрошлифов, подлежат разбраковке с участием Заказчика. Затем следует произвести отладку оборудования и корректировку режимов сварки в соответствии с требованиями, приведенными в табл. 3.3.2, и сварить два новых стыка, из которых вырезать макрошлифы. В случае, если размеры швов по макрошлифам соответствуют требованиям, сварку можно продолжить.
В случае повторных неудовлетворительных результатов контроля по макрошлифам Заказчик вправе потребовать новой аттестации технологии сварки.
3.4. Механизированная сварка под флюсом по сваренному вручную корню шва
3.4.1. Механизированную сварку под флюсом по сваренному вручную корню шва выполняют на трубосварочных базах типа ССТ-ПАУ, обеспечивающих сохранность наружной заводской изоляции труб в процессе изготовления трубных секций.
3.4.2. Перед сваркой необходимо провести входной контроль труб и исправить обнаруженные дефекты на их поверхности и свариваемых кромках в соответствии с разделом 5 СП.
3.4.3. После загрузки труб на приемный стеллаж трубосварочной базы необходимо очистить внутреннюю полость труб от грунта, грязи, снега.
3.4.4. Изготовление трубных секций разрешается выполнять только из труб с одинаковой нормативной толщиной стенки.
3.4.5. Трубы, подлежащие сварке, должны иметь разделку кромок в соответствии с ТУ на их поставку.
3.4.6. Сборку труб следует выполнять только на внутреннем центраторе, входящем в состав трубосварочной базы.
3.4.7. Сборку и ручную дуговую сварку корневого слоя стыков трубных секций следует выполнять электродами с покрытием основного вида в соответствии с разделом 2 и 3.2 настоящей Инструкции.
Разрешается периодический поворот свариваемой секции в удобное для сварщиков положение без освобождения жимков центратора.
Перекатывание секции на промежуточный стеллаж разрешается только после полного завершения сварки корневого слоя шва.
3.4.8. Допускается ручная дуговая сварка дополнительных(ого) наружных(ого) слоев(я) шва. Дополнительный(ые) слой(и) сваривают только после полного завершения корневого слоя шва по всему периметру стыка.
3.4.9. Подварку корня шва изнутри трубы можно выполнять или только механизированной сваркой под флюсом на режимах, приведенных в табл. 3.4.1, или вручную электродами с покрытием основного вида в соответствии с технологией, изложенной в разделе 2 настоящей Инструкции.
Подварку корня шва следует выполнять после ручной дуговой сварки наружных слоев шва с интервалом между окончанием сварки корня шва и началом подварки не более 40 мин.
Таблица 3.4.1
Режимы механизированной подварки под флюсом корня шва
| Диаметр электродной проволоки, мм | Сварочный ток, А | Напряжение на дуге, В | Скорость сварки, м/ч | Вылет электрода, мм | Смещение с надира в направлении вращения трубы, мм |
| 3-4 | 450-550 | 44-46 | 25-35 | 40-50 | 30-50 |
Примечание. Ток постоянный, обратной полярности, угол наклона электрода от 0 до 10° ("вперед" или "назад").
3.4.10. Подварку корня шва выполняют по всему периметру стыка.
3.4.11. Для предотвращения увлажнения стыков в случае непогоды (дождь, снег, иней) стыки, сваренные корневым слоем шва, до начала механизированной сварки под флюсом должны быть укрыты влагонепроницаемыми теплоизоляционными поясами шириной не менее 300 мм. Если стыки, сваренные корневым слоем шва, попадают на пост сварки под флюсом со следами влаги на кромках или, если при температуре окружающего воздуха ниже +5 °С стык остыл до температуры ниже +5 °С, его следует просушить нагревом до 50 °С.
3.4.12. Минимально допустимое число наружных слоев шва, выполняемых механизированной сваркой под флюсом, в зависимости от толщины стенки трубы приведено в табл. 3.4.2.
Таблица 3.4.2
Минимально допустимое число слоев шва, свариваемых под флюсом
| Толщина стенки трубы, мм | Число слоев шва (не менее) |
| 18,3 | Три |
| 21,8 | Четыре |
| 27,1 | Пять |
При сварке труб с толщиной стенки 27,1 мм разрешается выполнение каждого слоя шва двумя параллельными проходами (с перекрытием). В этом случае скорость сварки рекомендуется увеличить на 20%, а напряжение дуги уменьшить на 2-4 В.
3.4.13. Режимы механизированной сварки под флюсом заполняющих слоев шва приведены в табл. 3.4.3.
Таблица 3.4.3
Режимы механизированной сварки под флюсом заполняющих слоев шва
| Толщина стенки, мм | Порядковый номер слоя | Сварочный ток, А | Напряжение на дуге, В | Скорость сварки, м/ч | Смещение электрода с зенита против вращения трубы, мм |
| | 1 | 800-850 | 44-46 | 45-55 | 60-100 |
| 18,3 | 2 | 900-950 | 44-46 | 50-60 | 60-80 |
| | 3 | 900-950 | 46-48 | 40-50 | 40-80 |
| | 1 | 800-850 | 44-46 | 45-55 | 60-100 |
| 21,8 | 2 | 900-950 | 44-46 | 50-60 | 60-80 |
| | 3 | 900-950 | 44-46 | 50-60 | 60-80 |
| | 4 | 900-1000 | 46-48 | 40-50 | 40-80 |
| | 1 | 800-850 | 44-46 | 45-55 | 60-100 |
| | 2 | 900-950 | 44-46 | 50-60 | 60-80 |
| 27,1 | 3 | 900-950 | 44-46 | 50-60 | 60-80 |
| | 4 | 900-950 | 44-46 | 50-60 | 60-80 |
| | 5 | 900-1000 | 46-48 | 40-50 | 40-80 |
Примечания: 1. Ток постоянный прямой полярности, проволока диаметром 3 мм; угол наклона электрода "вперед" до 30°, вылет 40-50 мм.
2. При сварке током обратной полярности нижнюю границу сварочного тока уменьшить на 50-100 А, а скорости сварки - на 5 м/ч.
3.4.14. Интервал времени между сваркой предыдущего и каждого из последующих наружных слоев шва не должен превышать двух часов.
Сварные стыки разрешается оставлять в конце смены незаконченными в том случае, если не сварен только один облицовочный слой шва.
При невыполнении указанных требований стыки подлежат вырезке.
3.4.15. Величина усиления внутреннего и облицовочного наружного слоев шва должна составлять 2±1 мм. Ширина этих швов должна соответствовать табл. 6 СП, а в случае механизированной подварки под флюсом изнутри трубы ширина шва должна соответствовать табл. 3.3.4.
3.4.16. Во избежание образования наплыва металла при завершении механизированной сварки внутреннего шва необходимо вначале остановить вращение трубы, а затем выключить подачу проволоки, не выключая сварочного тока до самопроизвольного обрыва дуги.
3.4.17. При изготовлении трубных секций на базах ССТ-ПАУ необходимо соблюдать также требования п.п. 3.3.12; 3.3.13; 3.3.16; 3.3.18.



