1 Проектирование технологического процесса
| Вид материала | Реферат |
- 3 5 Разработка маршрутного технологического процесса, 138.63kb.
- Анализ заводского технологического процесса, 10.4kb.
- Лекция Элементы технологического процесса, 65.91kb.
- Планирование складских помещений 17 основные показатели складской деятельности 20 организация, 820.23kb.
- Курсовая работа по дисциплине «организация и планировнаие производства» на тему: «Организация, 272.28kb.
- «Проектирование технологического процесса механической обработки детали «Полумуфта», 370.42kb.
- Структурная схема автоматизированного технологического процесса, 644.68kb.
- Программный комплекс системы документирования параметров технологического процесса, 119.43kb.
- Кафедра технологии машиностроения и методики профессионального обучения курсовой проект, 88.72kb.
- Кафедра технологии машиностроения и методики профессионального обучения курсовой проект, 81.68kb.
1 2

Содержание
| С | |
Введение | 6 |
1 Проектирование технологического процесса | 9 |
| 1.1 Назначение детали | 9 |
| 1.2 Материал детали | 9 |
| 2 Проектирование технологической оснастки | 11 |
| 2.1 Выбор типа производства | 11 |
| 2.2 Анализ технологичности детали. Качественная и количественная оценка | 12 |
| 2.3 Выбор 2-х вариантов получения заготовки. Технико-экономическое обоснование выбора | 14 |
| 2.4 Выбор методов обработки поверхностей детали. Эскиз детали с нумерацией обрабатываемых поверхностей | 19 |
| 2.5 Выбор баз и их обоснование | 22 |
| 2.6 Анализ типового технологического процесса. Корректировка типового технологического процесса | 24 |
| 2.7 Разработка технологического маршрута обработки детали | 25 |
| 2.8 Подробная разработка операций техпроцесса | 27 |
| 2.9 Расчет режимов резания в САПР ТП «Вертикаль» | 33 |
| 2.10 Расчет норм времени в САПР ТП «Вертикаль» | 41 |
| Заключение | 48 |
| Список используемых источников | 49 |
| Приложение А | |
| Приложении Б | |
| Приложении В |
Введение
Применение современных цифровых информационных технологий коренным образом изменило машиностроение и металлообработку на всех этапах: маркетинга, проектирования изделий, изготовления опытных образцов, технологической подготовки производства, серийного производства, обслуживания в период эксплуатации и ремонта, поставки запасных частей и утилизации отслуживших свой срок деталей и оборудования.
Организация технологического процесса изготовления опытных образцов и изделий серийного производства машиностроения осуществляется с помощью систем автоматизированного проектирования технологических процессов, так называемых САПР. Они обеспечивают наиболее рациональный выбор станочного оборудования, инструментов и режимов обработки деталей.
В настоящее время САПР применяются для решения разнообразных инженерных и конструкторских задач. Использование САПР-технологий позволяет сократить время на выполнение проекта и выпуск изделий, уменьшить число ошибок, повысить качество конструкторской документации, а при использовании программно-управляемого оборудования - готовить необходимые для этого данные в нужном формате.
Наиболее известными и широко распространенным среди таких систем являются САПР ТП «Компас - Автопроект» и новое поколение САПР - САПР ТП «Вертикаль».
«Вертикаль» - САПР технологических процессов нового поколения, предназначенная для автоматизации процессов технологической подготовки производства.
САПР ТП «Вертикаль» - система, имеющая все необходимые инструменты для интеграции в единое информационное пространство. Основными «поставщиками» справочных данных являются корпоративные справочники («Единицы измерения», «Материалы и сортаменты») и Универсальный технологический справочник (УТС). Формирование и ведение пользовательских
баз данных для УТС реализуется в специальном модуле администрирования, графические документы формируются в приложении Компас -3D на этапе конструкторской подготовки производства и в процессе проектирования техпроцессов (эскизы). Включение информационных потоков по технологической подготовке производства в ЕИПП реализуется интеграцией «Вертикаль» с системами управления документооборотом.
Автоматизация расчетов, выполняемых в процессе проектирования ТП, осуществляется специальными приложениями - «Система расчетов режимов резания», «Система расчетов режимов сварки», «Система трудового нормирования» и др. К «Вертикаль» могут также подключатся любые специализированные приложения на основе технологии СОМ.
Полный спектр задач, решаемых с помощью САПР, чрезвычайно богат, и программ, предназначенных для этого, разработано достаточно много. Их использование позволяет существенно сократить длительность проектно-конструкторских работу по-новому реализовать проектные процедуры в результате получить более эффективные технические решения.
В своем курсовом проекте решаю следующие задачи:
- обоснование типа производства, материала в зависимости от служебного
- назначения детали, а также технологичности конструкции
разрабатываемой детали «Шкив» по чертежу;
- выбор 2-х вариантов получения заготовки и обоснование рационального способа получения заготовки;
- разработка технологического маршрута обработки детали с выбором и
обоснованием баз на основе анализа типового техпроцесса;
- выполнение подробной разработки технологического процесса с выбором оборудования и средств технологического оснащения;
- применение САПР ТП «Вертикаль» для оформления технологической
документации, расчета режимов резания и норм времени.
- Общий раздел
1.1 Назначение детали
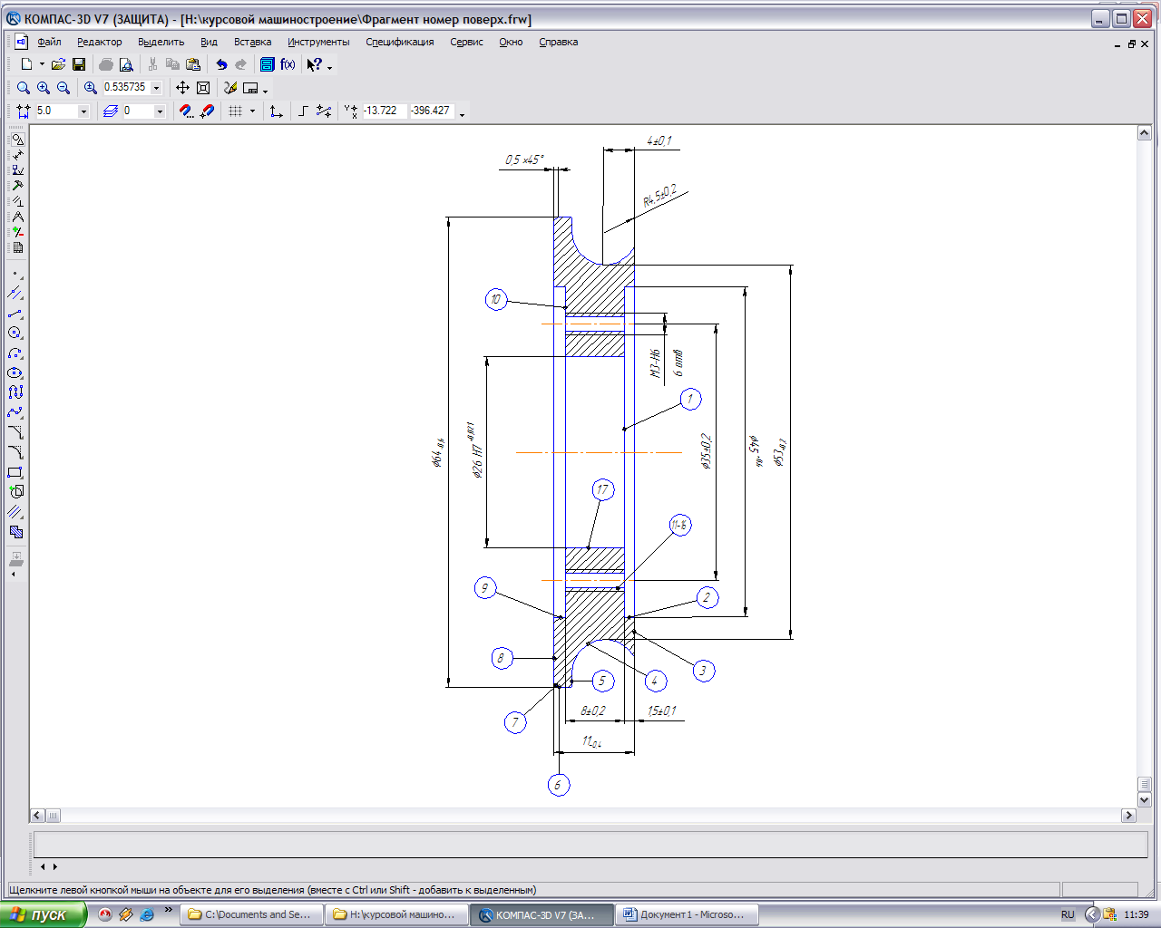
Деталь «Шкив» предназначена для передачи вращения от электродвигателя к редуктору при помощи ременной передачи. Количество ремней один, для него сделана канавка радиального профиля под ремень. Отверстие Ф 26 H7 предназначено для посадки шкива на вал электродвигателя. Шесть отверстий для предотвращения смещения шкива с вала электродвигателя с помощью винтов. Две канавки Ф 45 служат для установления уплотнения колец необходимых для предотвращения соскальзывания.
1.2 Материал и его свойства
Деталь изготовлена из Стали 45-3-5 ГОСТ 1050-74. Сталь углеродистая качественная.
Таблица 1 – Химический состав, % (ГОСТ 1050-88)
| углерод | кремний | марганец | сера | фосфор | хром | никель | мышьяк | азот | медь |
| 0.42-0.50 | 0.17-0.37 | 0.50-0.80 | ≤0.040 | ≤0.035 | ≤0.25 | ≤0.30 | ≤0.08 | ≤0.008 | ≤0.30 |
Таблица 2- Механические свойства
| σ0.2 Н/мм2 | σв2 Н/мм2 | δ, % | ψ, % | KCU, Дж/см2 | HRC | HB | |
| | ≤229 | ||||||
| 355 | 600 | 16 | 40 | 49 | - | - | |
где σ0.2 – предел текучести условный с допуском на величину пластической деформации при нагружении 0,2 %;
σв2 – предел прочности при сжатии;
δ – относительное удлинение после разрыва;
ψ – относительное сужение после разрыва;
KCU – ударная вязкость, определенной на образцах с концентратором
вида U;
HRC – твердость по Рокцеллу (шкала С, конусный наконечник с общей нагрузкой 1471 Н);
HB – твердость по Бринеллю.
2 Технологический раздел
- Выбор типа производства
Тип производства определяется в зависимости от годовой программы выпуска деталей N=12000, и массы детали mдет=0.14 определяю по таблице [7, таблица 3.1.1, с. 17] .
Тип - среднесерийный. Характеристикой ограниченной номенклатурой изделий, изготовленных или ремонтируемых периодически повторяющихся партиями, и сравнительно большим объемом выпуска, на предприятиях данного типа производства значительная часть оборудования состоит из универсальных станков оснащенных как специальными, так и универсальными (УМП) и универсально сборными (УСП) приспособлениями, что позволяет снизить трудоемкость и увеличить производство.
Определяю партию запуска деталей N зап, шт
, (1)где Nзап – величина партии запуска деталей, шт;
N - годовой объем выпуска, шт;
Ру – число рабочих дней в году, дней;
q- необходимый запас деталей; для мелких и средних деталей q=8, для крупных q=5…7
, штПринимаю Nзап=400 шт;
2.2 Анализ технологичности детали. Качественная и количественная оценки
Качественная оценка:
- конструкция детали предусматривает обработку сопрягаемых поверхностей;
- форма детали обеспечивает возможность получения заготовок с минимальными припусками;
- конструкция детали предотвращает деформацию при термической обработке;
- допуски размера детали немного усложняют технологию производства;
- конструкция детали – обеспечивает свободный вход и выход инструмента и удобство выполнения обработки;
- конструкция не обеспечивает возможность обработки их с одной стороны;
На основе качественного анализа технологичности детали типа «Шкив» можно сделать вывод, что конструкция детали технологична кроме того, что конструкция не обеспечивает обработку только сопряженных поверхностей и обработку только одной стороны.
Количественная оценка:
Коэффициент точности обработки, Кт
, (2)где Аср – средний квалитет обработки
, (3)где ni – количество поверхностей с одинаковыми значениями квалитетов;
ITA – соответствующий квалитет;
n – количество всех поверхностей;


Коэффициент качества обработки, Ккач
, (4)где Бср- среднее числовое значение параметра шероховатости
, (5)где ni - количество поверхностей с одинаковой шероховатостью;
Ra – параметр шероховатости, мкм;
n – количество всех поверхностей;


По коэффициенту унификаций, Ку.э
, (6)где Qэ – число конструктивных элементов
Qу.э – число унифицированных элементов
Qэ=17;

Ку.э>0.6
Произведя качественную и количественную оценки можно сделать вывод, что деталь является технологичной по основным параметрам.
- Выбор двух вариантов получения заготовки. Технико – экономическое обоснование выбора
Первым методом для своей детали выбираю круглый сортовой прокат, т.к. форма детали имеет небольшие переходы ступеней.
1 способ – Круглый сортовой прокат

Рисунок 1 – Эскиз заготовки круглый сортовой прокат
Провожу расчет в ниже предложенной последовательности для проката.
Определяю размер заготовки в зависимости от шероховатости и размеров детали Ra 12,5, L=11, Æ=64 с учетом сортамента проката и припуска на торцевые поверхности получаем: Lзаг=16 мм; dзаг=70 мм [3, с. 20]
Назначаем предельные отклонения на размеры заготовки.
Рассчитываю массу заготовки Мз, кг и коэффициент использования материала Ким
Мз=V*p, (7)
где V – объем заготовки, см3;
р – плотность материала, г/см3;
р=7,8 г/см3
, (8)где L- длина заготовки, мм;
D – диаметр заготовки, мм;
см3
кгОпределяю коэффициент использования материала, Ким

, (9)
где Мд- масса детали, кг;
Мз – масса заготовки, кг;
Определяю стоимость заготовки, Смз
Смз=Смм*Мз+Смр, (10)
где Смм- стоимость 1 кг материала, руб; Смм=18,3 руб
Мз- масса заготовки, кг;
Смр – стоимость резки, руб;
Смр=Ст*Тм, (11)
где Ст – тарифная ставка резчика, руб;
Тм – время резки, мин;
Смр=0,3*3=0,9 руб
Смз=18,3*0,48+0,9=9,684 руб
2 способ – штамповка на кривошипном горизонтально – штамповочном прессе [1, с. 178]
Штамповочное оборудование – кривошипный горячештамповочный пресс.
Нагрев заготовок – индукционный
Исходные данные по детали
Материал для детали – сталь 45 – 2-5 ГОСТ 1050-74: С 0.42-0,-0.50; Si 0.17-0.37; Mn 0.50-0.80; S≤0.040; P≤0.035; Cr≤0.25; Ni≤0.30; As≤0.08; N≤0.008; Cu ≤0.30;
Масса детали – 0.14
Исходные данные для расчета:
-Масса поковки (расчетная) – 0.252 (NI=2)
-Расчетный коэффициент Кр – 1.8; [8, таблица 20, с. 31]
0,14*1.8=0,252 кг;
-Класс точности – Т4 (КТ=4); [8, таблица 19, с. 28]
-Группа стали – М2 (MS=2) [8, таблица 1, с. 8]
-Степень сложности С1 (ST=1) [8, таблица 6, с. 30]
-Исходный индекс – 9;
ИН=NI+(MS-1)+(ST-1)+2(KT-1)=2+(2-1)+(1-1)+2(4-1)=9
Припуски и кузнечные напуски приведены в таблице 3.
Таблица 3 - Основные припуски на размеры
| Наименование размера | Величина размера, мм | Шероховатость поверхности, мкм | Припуск, мм |
| Диаметр | 64 | 12,5 | 1,1 |
| » | 26 | 1,6 | 1,3 |
| Толщина | 11 | 2,5 | 1,0 |
Дополнительные припуски, учитывающие:
- смещение по поверхности штампа – 0,1 мм [8 таблица 5, с. 14 ]
- отклонение от плоскости – 0,3 мм [8 таблица 5, с. 14]
Штамповочный уклон:
- на наружной поверхности – не более 5
- на внутренней поверхности не более 7º
Размеры поковки и их допускаемые отклонения
Размеры поковки, мм:
-диаметр 64+(0,3+1,1)*2=66,8 мм
-диаметр 26+(1,3+1,1)*2=30,8 мм
-толщина 11+(1,0+1,1)*2=15,4 мм
Эскиз заготовки, полученной методом штамповки представлен на рисунке 2.

Рисунок 2 – Эскиз заготовки поковки
Коэффициент использования материала (штампа), Ким
,
, (12)где V – объем штампованной заготовки, см3;
- удельный вес материала, г/см3;
=7,8, г/см3Объем заготовки Vзаг2, см3
V=V1-V2, (13)
см3
см3Vзаг2=35,369-5,837=29,532, см3;
mзаг=7,8*29,532=230,349 г≈0,23, кг

Определяю стоимость заготовки, Сзаг
, (14)где КТ=0,9 в зависимости от класса точности; [2, с. 39]
Кm=1 в зависимости от марки материала; [2, с. 39]
Кс=0,75в зависимости от сложности; [2, с. 39]
Кв=2 в зависимости от массы; [2, с. 39]
Сзаг=18,3*0,23*0,9*1*0,75*2=5,682 руб
Таблица 4 – Сравнительная таблица двух способов получения заготовки
| Вид получения заготовки | Штамповка | Прокат |
| Ким | 0,608 | 0,29 |
| Стоимость заготовка, руб | 5,682 | 5,93 |
Исходя из сопоставления по коэффициенту использования материала и стоимости заготовки следует, что более экономичным вариантом получения заготовки является заготовка, полученная методом штамповки.
- Выбор методов обработки поверхностей детали
Таблица 5 - Выбор методов обработки поверхностей детали
| № обр. повер | Наименование поверхности | Номинальный размер поверхности | Квалитет точности | Предельные отклонения размера | Парам. шерох. | Метод обработки |
| 1 | торец | 45 | IT 14/2 | ± 0,1 | Ra 12,5 | Торцевое растачивание |
| 2 | внутренняя цилиндрическая | Æ 45 | H 14 | + 0,6 | Ra 12,5 | Растачивание черновое |
| 3 | торец | 11 | h14 | - 0,4 | Ra 12,5 | Торцевое точение |
| 4 | дуга | R 4,5 | IT 14/2 | ± 0,2 | Ra 12,5 | Обтачивание черновое |
| 5 | торец | Æ 64/60 | IT 14/2 | ± 0,15 | Ra 12,5 | Торцевое точение |
| 6 | наружная цилиндрическая | Æ 64 | h 14 | - 0,6 | Ra 12,5 | Обтачивание черновое |
| 7 | фаска | 1х45 | IT 14/2 | ± 0,125 | Ra 12,5 | Обтачивание черновое |
| 8 | торец | 64 | IT 14/2 | - 0,6 | Ra 12,5 | Торцевое точение |
| 9 | внутренняя цилиндрическая | Æ 45 | H 14 | + 0,6 | Ra 12,5 | Растачивание черновое |
| 10 | торец | 45 | IT 14/2 | ± 0,1 | Ra 12,5 | Торцевое растачивание |
| 11-16 | отверстия | М 3 | H 6 | + 0,1 | Ra 12,5 | Сверление, нарезание резьбы |
| 17 | Внутренняя цилиндрическая поверхность | Æ 26 | H 7 | + 0,021 | Ra 3,2 | Растачивание черновое , растачивание чистовое, шлифование |

Рисунок 3- Эскиз детали с нумерацией обрабатываемых поверхностей
2.5 Выбор и обоснование технологических баз
В основе решений о базировании заготовки в процессе ее обработки лежит знание функций поверхностей детали и размерных связей между ними, установленных в соответствии со служебным назначением детали.
При выборе технологических баз для обработки большинства поверхностей заготовки, прежде всего, необходимо проанализировать размерные связи между поверхностями детали, требования к точности их относительного положения и выявить поверхности, относительно которых задано чертежом и наиболее строго лимитировано положение большинства других поверхностей детали. В нашем случае положение большинства поверхностей задано чертежом и наиболее строго лимитировано относительно основных баз детали. Стремясь к достижению требуемой точности линейных размеров кратчайшим путем, в качестве технологических баз используем поверхности детали, относительно которых задано положение большинства других ее поверхностей, если таковые удовлетворяют требованиям, предъявляемым к технологическим базам. На первой операции нам необходимо подготовить базы, необходимые для закрепления на последующих операциях.
Любая схема базирования может обеспечить одинаковое положение всех заготовок партии только в том случае, если у них не будет погрешностей в размерах и относительном расположении поверхностей. В действительности же погрешности всегда имеют место и влияют на положение заготовки в приспособлении. Отклонение положения заготовки при базировании от требуемого положения влияет на точность получаемых размеров.
Схемы базирования заготовки для разработанного технологического процесса представлены в таблице 6.
Таблица 6 –Схемы базирования заготовки детали «Шкив»
| Номера обрабатываемых поверхностей | Схемы базирования заготовки | Комплект технологических баз |
| 6, 7, 8, 9, 10, 17 | ![]() | 1, 2, 3 – технологическая явная установочная; 4, 5 – технологическая двойная опорная; 6 – технологическая опорная скрытая |
| 1, 2, 3, 4, 5, 17 | ![]() | 1, 2, 3 – технологическая явная установочная; 4, 5 – технологическая двойная опорная; 6 – технологическая опорная скрытая |
| 11-16 | ![]() | 1, 2, 3 – технологическая явная установочная; 4, 5 – технологическая двойная опорная; 6 – технологическая опорная скрытая |
| Окончание таблицы 6 17 | ![]() | 1, 2, 3 – технологическая явная установочная; 4, 5 – технологическая двойная опорная; 6 – технологическая опорная скрытая |
- Анализ типового технологического процесса. Корректировка типового технологического процесса
На основании технических требований рассматриваемой детали скорректировала типовой технологический процесс и записала последовательность операций технологического процесса.
| № операции | Содержание операции |
| 005 010 015 020 025 030 035 040 | Литье Малярная Токарно-специальная Токарно-специальная Комбинированная Слесарная Моечная Контрольная |
На основании технологических требований рассматриваемой детали
скорректировала типовой технологический процесс и записала последовательность операций технологического процесса.
| операции | Содержание операции |
| 005 010 015 020 025 030 035 | Заготовительная Токарно-винторезная Токарно-винторезная Вертикально-сверлильная Круглошлифовальная Моечная Контрольная |
- Разработка технологического маршрута обработки детали
После установления последовательности обработки поверхностей заготовки, учитывая конструктивные особенности детали и требования к ее качеству, методы получения размеров детали, свойства заготовки (материал, масса, размеры, припуски на обработку), возможности имеющегося технологического оборудования, необходимость в термической обработке, организацию производственного процесса и другие факторы, составим технологический маршрут обработки детали «Шкив».
Устанавливаем оптимальную последовательность технологических операций для получения требуемой точности и шероховатости поверхностей детали «Шкив», исходя из методов и ступеней обработки (черновая, получистовая, чистовая) требуемым показателям качества обработки детали. Полученный технологический процесс сводим в таблицу 7.
Таблица 7 - Технологический процесс изготовления детали «Шкив»
| Операция | Наименование или содержание операции | Оборудование | Оснастка |
| 010 | Токарно-винторезная 1. Установить и закрепить 2. Подрезать торец 8, выдерживая размеры , l=13-0,273. Точить поверхность 6, выдерживая размеры Æ 64-0,6, l=3-0,18 4. Точить фаску 7, выдерживая размер 0,5х45º 5. Расточить отверстие17, начерно Æ 24,5, H14, l=13-0,27 6. Расточить канавку 9 и дно 10, выдерживая размеры Æ 45 +0,6, l=1,5±0,1 7. Открепить и снять деталь | 16К20 | Трехкулачковый патрон |
| 015 | Токарно-винторезная 1. Установить и закрепить 2. Подрезать торец 3, выдерживая размеры , l=11-0,43. Точить поверхность и торец 5, выдерживая размеры Æ 60-0,2, l=8,5-0,4 4. Расточить отверстие 17 предварительно под шлифование l=9,5-0,2 5. Расточить канавку 2 и дно 1, выдерживая размеры Ø 45 +0,6, l=1,5±0,1 6. Точить дугу 4 выдерживая размеры Ø 60 -0,2, l=8,5-0,4 , R=45±0,2 7. Открепить и снять деталь | 16К20 | Трехкулачковый патрон |
| 020 | Вертикально-сверлильная 1. Установить и закрепить 2. Сверлить отверстия 11-16, выдерживая размеры l= 8±0,2, Ø=35±0,2 3. Нарезать резьбу в отверстиях 11-16, выдерживая размеры М3-Н6, l=8±0,2, Ø=35±0,2 4. Открепить и снять деталь | 2Н135 | Трехкулачковый патрон |
| 025 | Круглошлифовальная 1. Установить и закрепить 2.Шлифовать отверстие 17, выдерживая размеры Ø26+0,021 Н7, l=8±0,2 7. Открепить и снять деталь | 3М153А | Трехкулачковый патрон |
- Подробная разработка операций техпроцесса
Исходя из типа производства, рационального метода получения заготовки выбрала вид технологического оборудования для токарной обработки детали. Привела краткую технологическую характеристику выбранного станка.
Номер операции № 010 токарно-винторезная.
Станок токарно-винторезный модель 16К20.
Техническая характеристика станка:
- наибольший диаметр обрабатываемой заготовки, мм над станиной 400
- над поперечными салазками суппорта 220
- расстояние между центрами, мм 1000
- число ступеней вращения шпинделя 24/22 различных значений
- ряд частот вращения (n об/мин): 12,5; 16; 20; 21,5; 25; 40; 50; 63; 80; 100; 125; 160; 200; 250; 315; 400; 500; 630; 800; 1000; 1250; 1600.
- пределы подач, мм/об: продольных 0,05…2,8; поперечных 0,25…1,4;
- мощность электродвигателя главного привода 10 кВт,
- габаритные размеры станка, мм: длина 2700; высота 1470; ширина 1195
масса станка, 3800 кг
Содержание операции с указанием переходов и размеров обработки, получаемых на данной операции с допускаемыми отклонениями.
- Установить и закрепить
- Подрезать торец 8, выдерживая размеры
, l=13-0,27
- Точить поверхность 6, выдерживая размеры Ø 64-0,6, l=3-0,18
- Точить фаску 7, выдерживая размер 0,5х45º
- Расточить отверстие17, начерно Ø 24,5, H14, l=13-0,27
- Расточить канавку 9 и дно 10, выдерживая размеры Æ 45 +0,6, l=1,5±0,1
- Открепить и снять деталь
Для выполнения операции выбрала станочное приспособление [6, c 183]:
- Трехкулачковый патрон 7100-0005 ГОСТ 2675-80
Для каждого технологического перехода выбрала режущий инструмент, вспомогательный и измерительный инструмент.
Таблица 8 – Выбор режущего, вспомогательного и измерительного инструмента
| Технологический переход | Режущий инструмент | Вспомогательный инструмент | Измерительный инструмент |
| 1- Подрезать торец 8 | Резец токарный подрезной отогнутый с пластинами из твердого сплава Резец 2112-0005 ГОСТ 18880-73 [6, c 247] | Резцедержатель с цилиндрическим хвостовиком с перпендикулярным пазом Резцедержатель 1-30 ОСТ 2П 15-3-84 [6, c 313] | Штангенциркуль ШЦ1 – двусторонний с глубиномером для наружных и внутренних измерений для измерения глубин ШЦ1-1 ГОСТ 166-88 |
| 2 - Точить поверхность 6 | Резец проходной прямой с пластиной из твердого сплава при угле φ, равном 45 Резец 2100-0409 ГОСТ 18878-73 [6, c 246] | Штангенциркуль ШЦ1 – двусторонний с глубиномером для наружных и внутренних измерений для измерения глубин ШЦ1-1 ГОСТ 166-88 | |
| 3 - Точить фаску 7 | Резец токарный подрезной отогнутый с пластинами из твердого сплава Резец 2112-0005 ГОСТ 18880-73 [6, c 247] | Шаблон | |
| 4 - Расточить отверстие17 | Токарный расточной резец с пластинами из твердого сплава для обработки глухих отверстий Резец 2141-0002 ВК4 ГОСТ 18883-73 [6, c 247] | Штангенциркуль ШЦ1 – двусторонний с глубиномером для наружных и внутренних измерений для измерения глубин ШЦ1-1 ГОСТ 166-88 | |
| 5 - Расточить канавку 9 и дно 10 | Токарный расточной резец с пластинами из твердого сплава для обработки глухих отверстий Резец 2141-0002 ВК4 ГОСТ 18883-73 [6, c 251] | Штангенциркуль ШЦ1 – двусторонний с глубиномером для наружных и внутренних измерений для измерения глубин ШЦ1-1 ГОСТ 166-88 |
Номер операции № 015 токарно-винторезная.
Станок токарно-винторезный модель 16К20.
Техническая характеристика станка:
- наибольший диаметр обрабатываемой заготовки, мм над станиной 400
- над поперечными салазками суппорта 220
- расстояние между центрами, мм 1000
- число ступеней вращения шпинделя 24/22 различных значений
- Ряд частот вращения (n об/мин): 12,5; 16; 20; 21,5; 25; 40; 50; 63; 80; 100; 125; 160; 200; 250; 315; 400; 500; 630; 800; 1000; 1250; 1600.
- пределы подач, мм/об: продольных 0,05…2,8; поперечных 0,25…1,4;
- мощность электродвигателя главного привода 10 кВт,
- габаритные размеры станка, мм: длина 2700; высота 1470; ширина 1195;
- масса станка, 3800 кг
Содержание операции с указанием переходов и размеров обработки, получаемых на данной операции с допускаемыми отклонениями.
- Установить и закрепить
- Подрезать торец 3, выдерживая размеры
, l=11-0,4
- Точить поверхность и торец 5, выдерживая размеры Ø 60-0,2, l=8,5-0,4
- Расточить отверстие 17, предварительно под шлифование l=9,5-0,2
- Расточить канавку 2 и дно 1, выдерживая размеры Ø 45 +0,6, l=1,5±0,1
- Точить дугу 4, выдерживая размеры Ø 60 -0,2, l=8,5-0,4 , R=45±0,2
- Открепить и снять деталь
Для выполнения операции выбрала станочное приспособление [6, c 183]:
- Трехкулачковый патрон 7100-0005 ГОСТ 2675-80
Для каждого технологического перехода выбрала режущий инструмент, вспомогательный и измерительный инструмент.
Таблица 9 – Выбор режущего, вспомогательного и измерительного инструмента
| Технологический переход | Режущий инструмент | Вспомогательный инструмент | Измерительный инструмент |
| 6 – Подрезать торец 3 | Резец токарный подрезной отогнутый с пластинами из твердого сплава Резец 2112-0005 ГОСТ 18880-73 [6, c 247] | Резцедержатель с цилиндрическим хвостовиком с перпендикулярным пазом Резцедержатель 1-30 ОСТ 2П 15-3-84 [6, c 313] | Штангенциркуль ШЦ1 – двусторонний с глубиномером для наружных и внутренних измерений для измерения глубин ШЦ1-1 ГОСТ 166-88 |
| 7 - Точить поверхность и торец 5 | Токарный подрезной отогнутый с пластинами из твердого сплава Резец 2103-0007 ВК 6 ГОСТ 18879-73 [6, c 247] | Штангенциркуль ШЦ1 – двусторонний с глубиномером для наружных и внутренних измерений для измерения глубин ШЦ1-1 ГОСТ 166-88 | |
| 8 - Расточить отверстие 17 | Резец токарный подрезной отогнутый с пластинами из твердого сплава Резец 2112-0005 ГОСТ 18880-73 [6, c 247] | Штангенциркуль ШЦ1 – двусторонний с глубиномером для наружных и внутренних измерений для измерения глубин ШЦ1-1 ГОСТ 166-88 | |
| 9 - Расточить канавку 2 и дно 1 | Токарный расточной резец с пластинами из твердого сплава для обработки глухих отверстий Резец 2141-0002 ВК4 ГОСТ 18883-73 [6, c 247] | Штангенциркуль ШЦ1 – двусторонний с глубиномером для наружных и внутренних измерений для измерения глубин ШЦ1-1 ГОСТ 166-88 | |
| 10- Точить дугу 4 | Токарный расточной резец с пластинами из твердого сплава для обработки глухих отверстий Резец 2141-0002 ВК4 ГОСТ 18883-73 [6, c 247] | Шаблон |
Номер операции № 020 вертикально-сверлильная.
Станок Вертикально-сверлильный модель 2H135.
Техническая характеристика станка:
- наибольший условный диаметр сверления в стали 35
- рабочая поверхность стола 450х500
- наибольшее расстояние от торца шпинделя до рабочей поверхности стола 750
- вылет шпинделя 300
- наибольший ход шпинделя 250
- наибольшее вертикальное перемещение: сверлильной головки 170; стола 300
- конус Морзе отверстия шпинделя 4
- число скоростей шпинделя 12
- частота вращения шпинделя, об/мин 31-1400
- число подач шпинделя 9
- подача шпинделя, мм/об 0,1-1,6
- мощность электродвигателя привода главного двигателя, кВт 4,0
- габаритные размеры: длина 1030; ширина 825; высота 2535;
- масса станка, 1200 кг
- Содержание операции с указанием переходов и размеров обработки, получаемых на данной операции с допускаемыми отклонениями.
- Установить и закрепить
- Сверлить отверстия 11-16, выдерживая размеры l= 8±0,2, Ø=35±0,2
- Нарезать резьбу в отверстиях 11-16, выдерживая размеры М3-Н6, l=8±0,2, Ø=35±0,2
- Открепить и снять деталь
Для выполнения операции выбрала станочное приспособление [6, c 183]:
- Трехкулачковый патрон 7100-0005 ГОСТ 2675-80
Для каждого технологического перехода выбрала режущий инструмент, вспомогательный и измерительный инструмент.
Таблица 10 – Выбор режущего, вспомогательного и измерительного инструмента
| Технологический переход | Режущий инструмент | Вспомогательный инструмент | Измерительный инструмент |
| 11 - Сверлить отверстия 11-16 | Метчик с хвостовиком для метрической резьбы ГОСТ 3266-81 Исполнение 1 [6, c 222] | Втулки переходные быстросменные жесткие для метчиков Втулка 6143-0101 ГОСТ 5936-70 [6, c 343] | Двусторонняя пробка для контроля резьбового отверстия М10х1, 25 с полем допуска 6Н Пробка 8221-30456Н ГОСТ 17758-72 |
Номер операции № 025 круглошлифовальная.
Станок Круглошлифовальный 3М153.
Техническая характеристика станка:
- наибольшие размеры устанавливаемой заготовки: диаметр 140; длина 500;
- рекомендуемый диаметр шлифования: наружного 50; внутреннего -;
- наибольшая длина шлифования: наружная 450; внутренняя -;
- высота центров над столом 90;
- наибольшее продольное перемещение стола 50
- угол поворота стола, º: по часовой стрелке 6; против часовой стрелке 7;
- скорость автоматического перемещения стола, м/мин 0,02-5
- частота вращения, об/мин 50-1000
- конус Морзе шпинделя передней бабки и задней бабки 4
- наибольшие размеры шлифовального круга: наружный диаметр 500; высота 63;
- перемещение шлифовальной бабки: наибольшее 100; на одно деление лимба 0,0025;
- частота вращения шпинделя шлифовального круга, об/мин при шлифовании: наружном 1900; внутреннем -;
- габаритные размеры: длина 2700; ширина 2540; высота 1950;
- масса, кг 4000
[9, с. 29]
- Содержание операции с указанием переходов и размеров обработки, получаемых на данной операции с допускаемыми отклонениями.
- Установить и закрепить
- Шлифовать отверстие 17, выдерживая размеры Ø26+0,021 Н7, l=8±0,2
- Открепить и снять деталь
Для выполнения операции выбрала станочное приспособление [6, c 183]:
- Трехкулачковый патрон 7100-0005 ГОСТ 2675-80
Для каждого технологического перехода выбрала режущий инструмент, вспомогательный и измерительный инструмент.
Таблица 11 – Выбор режущего, вспомогательного и измерительного инструмента
| Технологический переход | Режущий инструмент | Вспомогательный инструмент | Измерительный инструмент |
| 13 - Шлифовать отверстие 17 | ПП 20х20х8; 25 А СМ-5-К ГОСТ 2424-83 [6, c 382] | Оправка для крепления шлифовального круга при станке | Гладкий двухсторонний калибр-пробка Калибр - пробка 8133-0954Н8 ГОСТ 14810-68 |
- Расчет режимов резания в САПР ТП «Вертикаль»
Приложение «Система расчета режимов резания» предназначено для расчета режимов механической обработки и вспомогательного времени на основной переход технологического процесса.
По геометрическим параметрам обрабатываемой поверхности и параметрам обработки (припуску, толщине срезаемого слоя, шероховатости и т.д.), введенным пользователем, приложение позволяет рассчитать подачу инструмента (S, мм/об), скорость резания (V, м/мин), частоту вращения шпинделя (п, об/мин), основное (машинное) время (То, мин), силу резания (Pz, кгс) мощность резания (Л/м, кВт), энергозатраты (Рэ, кВт-ч) и вспомогательное время1 (Тв, мин). Все параметры рассчитываются для текущего основного перехода технологического процесса.
1 Запуск приложения
Перед запуском приложения необходимо в дерево ТП добавить к операции как минимум два объекта:
- основной переход;
- применяемый режущий инструмент.
Кроме того, после ввода основного перехода следует проверить заполнение поля Код блока расчета. В данное поле заносится код блока обработки — набора настроечных данных, определяющих методику расчета режимов резания для данного перехода. Из формулировок основных переходов на токарную обработку и обработку отверстий приложение определяет код блока расчета автоматически (при условии использования справочника основных переходов, содержащего в том числе и обсуждаемые коды). Но для целого ряда основных переходов автоматически выбрать методику расчета режимов не представляется возможным. В этом случае вручную укажите нужный вариант расчета, используя справочник «Код блока расчета».



Запуск приложения осуществляется из контекстного меню дерева ТП.При этом курсор в дереве должен быть установлен на тот основной переход, для которого рассчитываются режимы.
2 Интерфейс приложения
Главное диалоговое окно приложения показано на рисунке 4. В окне отображается информация, которую приложение получило из активного техпроцесса и справочных баз данных.

Рисунок 4- Главное диалоговое окно приложения
Все данные, используемые при расчете режимов, сгруппированы следующим образом:
| Группа | Данные |
| Схема обработки | Изображение схемы обработки, соответствующее выбранному блоку расчета. При наведении курсором на изображение появляется текст текущего основного перехода («всплывающая подсказка»). |
| Наименование оборудования | Наименование оборудования, на котором выполняется основной переход (из атрибутов объекта «Оборудование» дерева ТП). |
| Геометрия поверхности | Таблица с геометрическими параметрами обрабатываемой поверхности . Пользователю следует ввести данные в таблицу до начала расчета режимов. Если требуемые геометрические параметры были указаны в качестве параметров основного перехода то значения этих параметров копируются в таблицу автоматически. |
| Материал детали | Данные по обрабатываемому материалу, автоматически извлекаемые приложением из атрибутов ДСЕ активного техпроцесса. При указании материала детали необходимо использовать справочную БД. Для техпроцессов изготовления сборочной единицы возможен выбор обрабатываемого материала вручную. |
| Инструмент | Данные по режущему инструменту, автоматически извлекаемые приложением из дерева ТП и справочной БД. Информация об инструменте должна вводиться в дерево ТП только с использованием соответствующей базы данных Универсального технологического справочника. Если в дереве ТП задан вспомогательный инструмент или для режущего инструмента указаны параметры режущей части, то они также отображаются в окне приложения. |
| Паспортные данные оборудования | Паспортные данные используемого оборудования (станка). Приложение автоматически загружает необходимые столбцы из таблицы паспортных данных оборудования, указанного в дереве ТП (подчиненного операции). Следует учесть, что для извлечения паспортных данных сведения о станке должны вводиться только из справочника. |
| Параметры обработки | Параметры обработки, указываемые технологом до начала расчета режимов обработки: припуск; толщина срезаемого слоя; количество проходов; признак чистовой обработки; точность и шероховатость поверхности при чистовой обработке; данные по дополнительной термообработке; таблица с дополнительными условиями, влияющими на расчет. Для ввода значений точности и шероховатости поверхности установите маркер напротив опции Чистовая обработка. |
| Результаты расчета | Результирующие параметры режимов и вспомогательного времени на основной переход механической обработки. |
Кроме размеров, приложение также автоматически загружает параметры точности и шероховатости, указанные для основного перехода в таблице параметров. Следует также отметить, что для автоматического переноса значений из перехода в приложение необходимо соблюдать условие: имя переменной в таблице параметров перехода должно совпадать с именем переменной в геометрических параметрах схемы обработки.
3 Последовательность расчета режимов резания
После загрузки приложения введите недостающие значения в таблицу геометрических параметров (столбец Значение) и укажите параметры обработки. Для запуска процедуры расчета нажмите кнопку Рассчитать. Приложение анализирует введенные данные и при отсутствии ошибок производит вычисление режимов обработки. Расчеты проводятся по алгоритму, который определяется значением кода блока расчета для текущего основного перехода. При этом автоматически выполняются следующие операции:
-считываются параметры, введенные пользователем в параметрах основного
перехода и в главном диалоговом окне приложения;
-загружаются данные по материалу детали, оборудованию, режущему инструменту и виду материала режущей части инструмента;
-загружаются данные по дополнительным условиям, влияющим на расчет
параметров;
-определяется припуск, толщина срезаемого слоя и количество проходов. Если в настройках приложения задан автоматический расчет этих параметров, то в окне приложения они недоступны для редактирования;
-на основании полученных данных рассчитываются режимы резания в соответствии с алгоритмом, определенным в настройках приложения для выбранного блока расчета. Алгоритмы могут содержать операции, корректирующие расчетные значения режимов (в том числе и по паспортным данным оборудования).
Рассчитанные значения отображаются в таблице результатов главного окна приложения.
В некоторых случаях значения подачи и частоты вращения шпинделя могут выбираться технологом напрямую (минуя расчет) из паспортных данных станка. Выбор значений осуществляется двойным щелчком мыши или нажатием
При необходимости пользователь может провести повторный расчет, не закрывая приложения. В этом случае внесите требуемые изменения в исходные данные и нажмите кнопку Рассчитать. Перед запуском повторного расчета приложение запрашивает подтверждение на использование ранее рассчитанных значений режимов. Чтобы пересчитать значение режима, снимите соответствующую галочку в окне Параметры расчета.
Для сохранения результатов расчета нажмите кнопку ОК. Приложение завершит свою работу, а из рассчитанных параметров обработки будет сформирована строка в дереве ТП. Значения некоторых параметров расчета доступны для просмотра и редактирования на вкладке Атрибуты.
Для выхода из приложения без сохранения результатов расчета нажмите кнопку Отмена.
Для получения сведений о методике, формулах и значениях параметров, используемых в текущем расчете, нажмите кнопку Дополнительные сведения.
4 Расчет вспомогательного времени на основной переход
Для доступа к расчету вспомогательного времени на основной переход дважды последовательно щелкните мышью в ячейке значения переменной tv и нажмите скрытую кнопку.
Процедура расчета вспомогательного времени на основной переход недоступна в случаях:
отсутствия нормировочных данных для текущего варианта расчета;
работы приложения в демонстрационном режиме.
Вид диалогового окна расчета вспомогательного времени.
Расчет вспомогательного времени на переход проводится по следующему алгоритму:
1. Двойным щелчком мыши на нужной записи таблицы Измеряемый
размер укажите размер, значение которого контролируется в процессе обработки.
2. В правом углу окна Характер обработки нажмите кнопку раскрывающегося списка и выберите нужный характер обработки.
3. При необходимости в окне Дополнительное время на проход двойным щелчком мыши выберите записи с условиями, влияющими на вспомогательное время одного прохода инструмента. Выбранные записи выделяются желтым цветом. Отмена выбора осуществляется повторным двойным щелчком мыши на записи.
4. При необходимости в окне Дополнительное время на переход двойным
щелчком мыши выберите записи с условиями, влияющими на вспомогательное
время на основной переход (напомним, что здесь приведены условия, не зависящие от количества прохода инструмента). Выбранные записи выделяются желтым цветом. Отмена выбора осуществляется повторным двойным щелчком мыши на записи.
5. При условии многоинструментальной обработки измените значение в поле Кол. инст.
6. Нажмите кнопку Рассчитать для запуска процесса расчета. По результатам расчета приложение заполняет поля.
7. Для сохранения результатов расчета нажмите кнопку ОК. Полученное значение вспомогательного времени скопируется в поле Тв главного окна приложения. Кроме того, в атрибуты строки режимов копируется номер нормировочной карты, поданным которой были проведены расчеты.
5. Настройка текущего варианта расчета режимов
Пользователь, не имеющий прав администратора, может просмотреть и при необходимости скорректировать значения всех использованных параметров (кодов, параметров инструмента и оборудования).
Для доступа к указанным данным нажмите кнопку Доп. сведения главного окна приложения — откроется окно Дополнительные сведения, представляющее всеобъемлющую информацию по текущему расчету. Все данные, отображаемые в окне Дополнительные сведения, сгруппированы на двух вкладках Расчет и Администрирование.
В правой части окна располагается группа Отладка с управляющими кнопками, где последовательно указываются значения параметров, полученные в процессе расчета. Использование отладки (тестирования) позволяет полностью проконтролировать процесс расчета и быстро обнаружить ошибки в текущем алгоритме расчета и несоответствие или неполноту используемых данных.
Для запуска процедуры тестирования нажмите кнопку Запустить отладку. Тестирование выполняется пошагово для каждой формулы, указанной в группе Расчетные формулы.
После нажатия кнопки Запустить отладку приложение выполняет считывание значений параметров, указанных в главном окне приложения, а также из соответствующих баз данных по материалу детали, оборудованию, режущему инструменту и виду материала режущей части инструмента. Все полученные имена переменных и их значения отображаются в таблице группы Отладка.
Получив значения всех необходимых параметров, приложение начинает расчет по формулам. Тестирование алгоритма всегда начинается с первой формулы. Чтобы перейти к расчету по следующей формуле алгоритма, нажмите кнопку Следующая формула.
Результаты расчета по формуле записываются в конец таблицы группы Отладка. Формула, до которой проведены все расчеты, выделяется в группе Расчетные формулы синим цветом. Значения, полученные на текущем шаге расчета, выделяются синим цветом в таблице группы Отладка. Значения, полученные на предыдущих этапах расчета, изменяют свой цвет на черный. Если по текущей (тестируемой) формуле производится перерасчет параметра, вычисленного ранее (например, корректировка значения подачи), то новое значение параметра заменяет в таблице предыдущее значение и выделяется красным цветом.
Если в процессе тестирования обнаружена ошибка, не позволяющая продолжить расчет, то детальные сведения об ошибке и (при необходимости) соответствующий SQL-запрос указываются в окне Отладка.
По окончании процедуры тестирования выводится сообщение «Отладка успешно завершена».
Для сохранения измененных параметров в текущем сеансе работы нажмите кнопку ОК. При нажатии на кнопку Отмена приложение восстанавливает измененные пользователем данные.
Сводную таблицу режимов резания для всех технологических операций привожу в Приложении Б.




