Повышение эффективности энергетического использования древесных отходов 05. 17. 08 Процессы и аппараты химических технологий
| Вид материала | Автореферат |
СодержаниеОбщая характеристика работы В четвертой главе В приложении Основные положения диссертации опубликованы в следующих работах Тимербаев, Н.Ф. Тимербаев, Н.Ф. |
- Методические рекомендации к курсовому проекту по процессам и аппаратам химических, 806.99kb.
- Комбинированный массообменный барботажно-пленочный аппарат 05. 17. 08 Процессы и аппараты, 195.82kb.
- Моделирование тепло-массообменных процессов в технологии получения порошков полиолефинов, 250.09kb.
- Рабочая программа по дисциплине дс №09 Машины и аппараты химических производств для, 240.33kb.
- Государственный Технический Университет, Институт Компьютерного Проектирования Машиностроительных, 40.2kb.
- Повышение эффективности управления отделом продаж за счет использования информационных, 33.38kb.
- Повышение эффективности использования информационных ресурсов электроэнергетического, 248.02kb.
- Повышение энергетической эффективности сталеплавильного производства на основе использования, 281.2kb.
- Повышение эффективности использования газового топлива в газодизельных двигателях, 298.58kb.
- Технология и аппаратурное оформление абсорбционной очистки трифторида азота от тетрафторметана, 349.17kb.
На правах рукописи
Тимербаев Наиль Фарилович
ПОВЫШЕНИЕ ЭФФЕКТИВНОСТИ ЭНЕРГЕТИЧЕСКОГО
ИСПОЛЬЗОВАНИЯ ДРЕВЕСНЫХ ОТХОДОВ
05.17.08 – Процессы и аппараты химических технологий
АВТОРЕФЕРАТ
диссертации на соискание ученой степени
кандидата технических наук
Иваново – 2007
Работа выполнена в Государственном образовательном учреждении высшего профессионального образования «Казанский государственный технологический университет».
| Научный руководитель | – | доктор технических наук, профессор Сафин Рушан Гареевич; |
| Официальные оппоненты: | – – | доктор технических наук, профессор Зайцев Виктор Александрович доктор технических наук, профессор Авдюнин Евгений Геннадьевич |
| Ведущая организация | – | Волжско-Камский научно-исследовательский институт лесной промышленности (ВКНИИЛП) |
Защита диссертации состоится 4 июля 2007 года в 14.00 часов на заседании диссертационного совета Д 212.063.05 в Ивановском государственном химико-технологическом университете по адресу: 153000, г. Иваново пр. Ф.Энгельса 7, ауд. Г-205.
С диссертацией можно ознакомиться в библиотеке Ивановского государственного химико-технологического университета.
Автореферат разослан 31 мая 2007 г.

Ученый секретарь диссертационного совета,
доктор физико-математических наук, профессор Г.А. Зуева
Общая характеристика работы
Актуальность темы. Основной движущей силой современной цивилизации являются энергоносители. Традиционно в промышленности используются такие энергоносители как нефтепродукты, газ и уголь. Однако цены на традиционные энергоносители за последние несколько лет на Мировом рынке выросли более чем в 2,5 раза, что обусловило необходимость более широкого использования возобновляемых источников энергии, одним из которых является древесная биомасса. В большинстве Европейских стран реализуются программы по переводу энергетики на использование альтернативных видов топлива. Наиболее актуальным в данном аспекте видится использование биотоплива, и в частности древесины, как основного вида возобновляемых энергетических ресурсов. Ее использование позволит: во-первых, решить проблему утилизации древесных отходов на деревообрабатывающих предприятиях, во-вторых, получать дешевую энергию, в-третьих, снизить количество экологически вредных выбросов в атмосферу, так как выделяющийся при сгорании древесного топлива углекислый газ повторно используется в процессе прироста биомассы и не нарушает естественного баланса углекислого газа в атмосфере земли. Одной из важнейших задач развития Российской энергетики, является частичная замена ископаемого топлива на возобновляемые ресурсы, что в свете Киотского протокола и квот на выбросы углекислого газа выглядит весьма целесообразным.
Оценка возможности переработки древесных отходов показывает широкие перспективы их энергетического использования. Однако количество влажной древесины в общей массе древесных отходов достигает 70%, что приводит к определенным трудностям при использовании ее в качестве топлива в существующих топочных устройствах. Это вызвано тем, что повышенная влажность снижает эффективность процесса горения, увеличивает объем и токсичность образующихся дымовых газов.
В связи с этим исследование процессов, протекающих при сжигании древесного топлива, разработка методов расчета оборудования и режимных параметров энергетического использования влажных древесных отходов, усовершенствование существующих топочных устройств и процессов, является актуальной задачей.
Работа выполнялась в соответствии с постановлением Правительства РФ от 24 января 1998г. № 80 «О федеральной целевой программе «Энергосбережение России на 1998 – 2005 годы»»
Цель работы состоит в разработке методов расчета и аппаратурного оформления процесса термической переработки высоковлажных древесных отходов.
В связи с этим в настоящей работе были поставлены следующие задачи:
1. Совершенствование схемы процесса энергетического использования древесного сырья.
2. Разработка методики расчета установки для энергетического использования древесного сырья с эффективной схемой предварительной подготовки топлива.
3. Математическое моделирование технологического процесса предварительной сушки древесных отходов отходящими топочными газами котельного агрегата.
4. Разработка промышленной установки.
Научная новизна.
- Предложена усовершенствованная технологическая схема термической переработки влажных древесных отходов, позволившая увеличить эффективность их энергетического использования, а также снизить выделение токсичных веществ в окружающую среду.
- Впервые разработана обобщенная методика расчета предложенной технологической схемы, которая учитывает взаимосвязь процесса предварительной сушки с процессом сжигания древесных отходов.
- Разработан моделирующий алгоритм, позволяющий определить эффективную высоту слоя топлива в сушильном бункере в зависимости от свойств древесных отходов.
- Разработан экспериментальный стенд для исследования совмещенных процессов сжигания и сушки влажных древесных отходов, в котором применены современные средства регистрации и обработки данных. (Патент РФ № 2274851)
Практическая ценность. На основе результатов проведенных исследований и моделирования процесса термической переработки, разработана инженерная методика расчета установки для сжигания влажных древесных отходов с использованием бросового тепла отработанных топочных газов.
Создана установка для термической переработки влажных древесных отходов. Использование данной установки позволяет повысить эффективность сжигания древесных отходов на 15-30 %, и обеспечивает комплексное использование сырьевых ресурсов на предприятии.
Реализация работы. Результаты теоретических и экспериментальных исследований реализованы при создании методики расчета и при проектировании промышленной установки для термической переработки влажных древесных отходов, а также в учебном процессе на базе экспериментального стенда для изучения совмещенных процессов сжигания и сушки древесных частиц. Промышленная установка внедрена на ЗАО «Ласкрафт», с годовым экономическим эффектом в размере 380 тыс. руб. Использование созданного экспериментального стенда в учебном процессе позволяет студентам в ходе практических занятий по дисциплине «Технологические процессы и оборудование деревообрабатывающих производств» осуществлять всестороннее изучение процессов горения и сушки древесины.
Автор защищает:
- Предложенную технологическую схему установки для сжигания влажных древесных отходов.
- Методику расчета рациональных параметров установки для сжигания влажных древесных отходов.
- Результаты математического моделирования и экспериментального исследования.
- Конструкцию экспериментального стенда для исследования взаимосвязанных процессов горения и сушки влажных древесных отходов.
- Конструкцию промышленной установки для эффективного сжигания влажных древесных отходов.
Апробация работы. Основные положения диссертации докладывались на научных сессиях КГТУ (Казань, 2004-07), Международной конференции «ММТТ-18» (Казань, 2005), III Республиканской школе студентов и аспирантов “ЖИТЬ В XXI ВЕКЕ” (Казань, 2004), Международных симпозиумах «Ресурсоэффективность и энергосбережение» (Казань, 2005-06), научно практической конференции « Проблемы использования и воспроизводства лесных ресурсов» (Казань, 2006), Всероссийской научно-практической конференции «Лесной и химический комплексы- проблемы и решения» (Красноярск, 2006).
Технология и конструкция установки для термической переработки древесных отходов отмечена дипломами на III международной специализированной выставке «Нефтепереработка, нефтехимия, экология, энергетика» и 2-ом экологическом форуме «Человек. Природа. Наука. Техника».
Публикации. По теме диссертации опубликована 21 печатная работа, из них 2 статьи и 3 патента РФ на изобретения.
Объем и структура работы. Диссертационная работа состоит из введения, четырех глав, заключения, списка литературы и приложений. Основное содержание диссертации изложено на 116 страницах машинописного текста.
На всех этапах работы в качестве научного консультанта активное участие принимал кандидат технических наук, доцент Грачев А.Н.
Содержание работы
Во введении обоснована актуальность темы диссертации, определена цель исследований, отмечена научная новизна и практическая ценность работы.
В первой главе рассмотрены основы теории сжигания древесного топлива. Дан анализ современного состояния процесса сжигания биомассы, используемых для данных целей конструкций топочных устройств, а также приведен обзор используемых методов повышения эффективности топочных процессов. Установлено, что одним из наиболее эффективных направлений в области усовершенствования топочных процессов является предварительная подготовка топлива, а именно снижение его рабочей влажности. В существующих конструкциях топочных устройств, сушка влажного топлива осуществляется, как правило, на колосниковой решетке, что приводит к понижению концентрации реагирующих веществ в области гомогенного горения и снижает эффективность процесса горения.
Анализ литературных данных позволил сделать вывод о том, что существует потенциальная возможность использования тепла отходящих топочных газов для предварительной сушки влажного древесного топлива, с целью улучшения его характеристик.
Однако, в связи с отсутствием известных методов реализации предлагаемого технологического решения в данной работе на базе современных представлений о процессе сжигания древесной массы, конвективном тепломассообмене, протекающем при сушке древесины в высокотемпературных средах, а также сорбционно-кинетических, тепловых и массопроводных свойствах древесины, ставится задача исследования и совершенствования процесса сжигания высоковлажных древесных отходов, путем их сушки отходящими топочными газами котельного агрегата.
Во второй главе приводятся физическая картина и результаты теоретических исследований процесса термической переработки высоковлажных древесных отходов с предварительной сушкой топочными газами.
Схема процесса представлена на рисунке 1. Процесс состоит из трех основных стадий: сушки топлива, его сжигания, и утилизации образовавшегося тепла в котле. Все эти процессы имеют жесткую взаимосвязь, и при составлении методики расчета рассматривались в совокупности. Соответственно методика расчета включает в себя: математическое описание процесса сушки древесных отходов топочными газами в противоточном слое, задачей которого является определение эффективной высоты слоя материала в сушильном бункере; математическое описание процесса сжигания топлива в топке; описание теплообменных процессов протекающих в котле.

Рис 1. Схема процесса термической переработки древесных отходов с предварительной сушкой отработанными топочными газами
При прохождении топочного газа сквозь слой дисперсного материала в сушильном бункере, вследствие тепло-массообмена, происходит изменение влагосодержания и температуры топочного газа по высоте слоя, которые можно определить из уравнений материального и теплового балансов записанных в следующем виде:
, | (1) |
. | (2) |
Одновременно с этими процессами вследствие тепломассопроводности происходит изменение влажности и температуры внутри древесной частицы, которые в условиях сушильного бункера, при отсутствии общего градиента давления и фазовых превращений внутри древесной частицы, можно определить с помощью системы дифференциальных уравнений тепломассопереноса:
, | (3) |
. | (4) |
Начальные условия для выражений (1)-(4) запишутся в виде:
| Xг(0) =Xгк | (5) |
| Tг(0) =Тгк | (6) |
![]() | (7) |
. | (8) |
Влагосодержание топочного газа Xгк на выходе из сушильного бункера можно определить из выражения материального баланса процесса сушки:
. | (9) |
Температура Тгк топочного газа на выходе из сушильного бункера определяется из технологических соображений при заданной степени насыщения топочного газа водяными парами. Для этого необходимо решить уравнение
![]() | (10) |
относительно температуры при заданной относительной влажности φ, где давление насыщения можно определить с помощью уравнения:
![]() | (11) |
Граничные условия для выражений (3), (4) запишутся в виде: на поверхности частицы:
, | (12) |
![]() | (13) |
в центре частицы при условии симметрии:
![]() | (14) |
Равновесное влагосодержание древесины Up в зависимости от температуры и относительной влажности топочного газа можно определить из уравнения:
![]() , | (15) |
где предел гигроскопичности для древесины Uпг в зависимости от температуры определяется соотношением:
. | (16) |
Теплоту парообразования в граничном условии (13) в зависимости от температуры древесины можно определить выражением:
. | (17) |
Объем образовавшихся влажных топочных газов определяется из уравнений материального баланса процесса горения древесины:
| V = V +V +V +( -1)V0; | (18) |
Для решения численным способом полученного математического описания на ЭВМ, был разработан моделирующий алгоритм. Блок-схема алгоритма расчета, включает расчет процесса сжигания и сушки древесного топлива в энергетическом агрегате. Расчет ведется в следующем порядке. Вводятся исходные данные, представляющие собой сведения об основных характеристиках энергетического агрегата, характеристики топлива, а также необходимые для расчета коэффициенты. Далее в цикле, при заданных начальных температуре и влажности топочного газа, с учетом материального и теплового баланса процесса горения рассчитывается изменение влагосодержания и температуры топочного газа по высоте сушильного бункера, до поиска стационарного, сходящегося до определенной точности решения.
В третьей главе изложены результаты математического моделирования и экспериментальных исследований процесса сушки и сжигания влажных древесных отходов, а также результаты проверки полученной модели на адекватность реальному процессу.
В качестве модельного материала для математических расчетов и экспериментальных исследований кинетики сушки и сжигания была выбрана порода древесины – сосна, с учетом наибольшей распространенности в промышленности, и наличия в справочной литературе сведений о ее теплофизических свойствах.
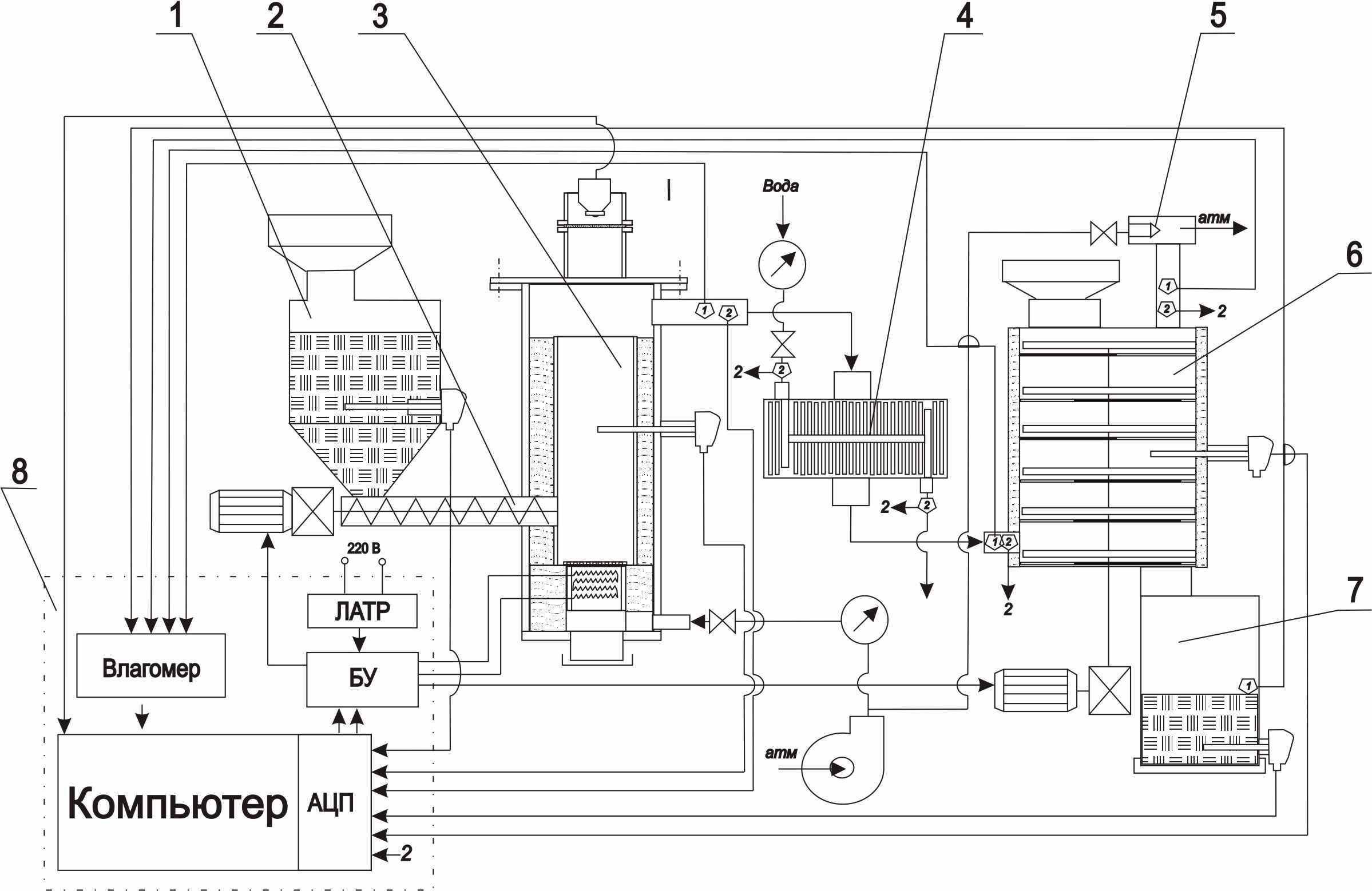
Для проверки разработанной математической модели процесса термической переработки высоковлажных древесных отходов с предварительной сушкой топочными газами на адекватность был создан экспериментальный стенд, схема которого приведена на рис. 2. Проведенные на данном стенде эксперименты по исследованию влияния влажности древесины на процесс ее сжигания показали, что влажность является основным параметром, от которого зависит эффективность энергетического использования древесных отходов.

Рис. 2. Схема экспериментального стенда для исследования процесса сжигания и сушки древесных частиц (патент РФ № 2274851): 1 – загрузочный бункер, 2 - шнековый питатель,
3 – камера сжигания, 4 – теплообменник, 5 – эжектор, 6 – сушильный бункер,
7 - сборник, 8 – блок управления и регистрации данных.
О

Рис. 3. Зависимость степени насыщения
топочного газа от его температуры
чевидно, что для повышения КПД энергоагрегатов работающих на древесных отходах, особенно на высоковлажных отходах (лесопильные цеха, лесхозы, производство фанеры), целесообразно использование предварительной сушки топлива подаваемого в топку, а в качестве сушильного агента разумно использовать отработанные топочные газы, которые в традиционных схемах энергоагрегатов отводятся в атмосферу с температурой около 150-200 ºС. Анализ влажности топочных газов показал что, несмотря на большое количество влаги, образующейся в процессе сжигания влажной древесины, топочные газы при данных температурах имеют большой потенциал влагопоглощения (см. рис. 3), и могут быть использованы в качестве сушильного агента.
В связи с этим были проведены эксперименты по сушке древесных отходов различной влажности и гранулометрического состава топочными газами, полученными в результате сжигания отходов фиксированной влажности в 30% и охлажденными в теплообменнике до 150 ºС. Для обеспечения фиксированных параметров топочных газов влажность и расход топлива, а так же коэффициент избытка воздуха в ходе экспериментов оставались постоянными. Установлено что оптимальным является время пребывания, за которое сушильный агент (топочный газ) в результате сушки древесных отходов достигает уровня степени насыщения близкого к значению 0,95. Более длительное пребывание топочного газа в сушильном бункере нежелательно, так как в верхней части сушильного бункера, начинается процесс конденсации топочных газов на поверхности холодных древесных частиц поступающих из загрузочного шлюза.
В результате обработки экспериментальных данных получены графические зависимости, описывающие процесс сушки древесных частиц отработанными топочными газами, при различных режимных параметрах процесса сушки.
Расчетные данные получены решением математической модели, включающей уравнения (1)-(18), численным методом в программной среде MathCAD 11. Сравнение опытных и расчетных данных позволяет говорить о достаточно удовлетворительном описании разработанной математической моделью реальных процессов сжигания и сушки топлива. Для повышения адекватности математической модели было проведено уточнение известных функциональных зависимостей, а также коэффициентов тепломассопереноса, путем обобщения и аппроксимации данных из литературных источников. Максимальное расхождение между теоретическими и экспериментальными данными не превышает 22 %.
М
Рис. 4. Распределение влагосодержания по сечению частицы в различных сечениях слоя
оделирование проводилось для частиц, имеющих форму пластины толщиной 0,01м.; при коэффициенте избытка воздуха α`=1,2; начальной температуре частиц Тн =25 °С; расходе топлива 0,055 кг/с; зольности топлива А=2 %; плотности топлива ρ0=516 кг/м3; до условия достиженеия сушильным агентом степени насыщения φ=0,95.
На рисунке 4 представлено распределение влагосодержания по сечению частицы в различных по высоте аппарата слоях, при начальной температуре отработанных топочных газов Tг=150°С и влажности топлива Uн=70%, которое показывает эволюцию поля влагосодержания при продвижении частицы в слое. Следует отметить, значительное снижение влажности на поверхности частицы, как за счет сушки так и за счет термодиффузии в глубь частицы, что в свою очередь положительно сказывается при воспламенении частицы в топке.
На рисунке 5 представлено распределение средних влагосодержаний материала, температуры топочного газа и температуры материала по высоте слоя. Как видно из данной зависимости скорость сушки по высоте бункера возрастает. Необходимо отметить, что данные кривые являются рабочими линиями процесса сушки при заданных входных параметрах по материалу и выходных по газу.
Н
Рис. 5 Распределение средних влагосодержания, температуры материала, и температуры топочного газаа рисунке 6 представлена зависимость эффективной высоты слоя от начального влагосодержания топлива при различных температурах топочного газа на выходе из котельного агрегата. Как видно из данной зависимости, при увеличении начального влагосодержания топлива и снижении температуры отходящих газов, требуемая поверхность тепломассообмена, выраженная через высоту слоя, уменьшается вследствие снижения влагоемкости сушильного агента.
В результате математического моделирования: определены характер изменения температуры и влажности древесных отходов в сушильном бункере, расчетным путем установлена эффективная высота слоя в зависимости от влажности топлива и температуры отработанных топочных газов. Проведенные расчеты подтвердили возможность повышения теплонапряжения топочного устройства за счет подогрева и снижения влажности подаваемого в него топлива, что в свою очередь увеличивает общий КПД энергоустановки.
Моделирование изучаемого процесса показало, что на эффективность сушки топочными газами оказывают влияние начальная влажность топлива, температура отработанных топочных газов, фракционный состав материала, и начальная температура топлива.
Рис. 6. Зависимость эффективной высоты слоя от начального влагосодержания топлива.
Результаты математического моделирования могут быть использованы при разработке и расчете конструкций аппаратов для предварительной сушки высоковлажного древесного топлива отходящими топочными газами.
В четвертой главе приведены результаты исследований по структурно-механическим свойствам древесных отходов лесопильного цеха. На основе результатов теоретических и экспериментальных исследований разработана инженерная методика расчета процессов, протекающих при сжигании и сушки древесных отходов. Данная методика позволяет в первом приближении рассчитать основные размеры топки, котла, сушильного бункера при конструировании и модернизации этих устройств.
На рис. 7 представлена схема опытно-промышленной установки для термической переработки высоковлажных древесных отходов.

Рис. 7. Схема установки для термической переработки высоковлажных древесных отходов
1- сушильный бункер, 2 – шнековый питатель, 3 - дымосос,
4 – газогенератор, 5 – камера сгорания, 6 – котел, 7 – система очистки.
В опытно-промышленной установке для термической переработки высоковлажных древесных отходов реализованы новые конструктивные особенности, которые увеличивают КПД установки до 20% и позволяют сократить количество токсичных выбросов в атмосферу за счет использования адсорбционной системы очистки (патент № 2229923), что дает возможность использования данной установки в черте города.
Разработанная конструкция энергетической установки мощностью 120 кВт внедрена в составе сушильного комплекса с термической утилизацией древесных отходов на ЗАО «Ласкрафт»
Проведенный технико-экономический анализ подтвердил эффективность разработанной конструкции. Ожидаемый годовой экономический эффект от внедрения установки сжигания составляет более 380 тыс. руб.
В приложении к работе представлена программа расчета процесса сушки топочными газами на ЭВМ, результаты статистической обработки полученных данных и акты внедрений, подтверждающие практическое использование основных результатов проделанной работы.
Основные результаты и выводы
- Разработана схема предварительной подготовки влажного древесного топлива с использованием бросового тепла отходящих топочных газов, позволяющая повысить КПД существующих котлоагрегатов до 20%.
- Создана математическая модель термической переработки высоковлажных древесных отходов с предварительной сушкой топочными газами, позволяющая оценить влияние различных режимных параметров на интенсивность процесса сушки древесных отходов и определить эффективную высоту слоя топлива в сушильном бункере.
- Разработан алгоритм расчета процесса сушки, позволяющий осуществить математическое моделирование данного процесса на компьютере и выбрать рациональные режимные и конструктивные параметры процесса.
- Разработан и изготовлен экспериментальный стенд. (Патент РФ № 2274851)
- Проведены экспериментальные исследования процессов сушки и сжигания в зависимости от влажности топлива, значений температуры и скорости циркуляции сушильного агента.
- Разработана инженерная методика расчета сушильного бункера и других элементов котлоагрегата.
- Разработана и внедрена промышленная энергоустановка мощностью 120 кВт, снабженная системой очистки (патент № 2229923), с ожидаемым экономическим эффектом в размере более 380 тыс. рублей.
- Результаты теоретических и практических исследований использованы для разработки углевыжигательной печи. (Патент РФ № 2256686)
- Экспериментальный стенд для исследования процесса сжигания и сушки древесных частиц внедрен в учебном процессе и позволяет студентам в ходе практических занятий изучать процессы сжигания и сушки древесных материалов.
Основные обозначения:
Х, X0 – влагосодержание топочного газа, дутьевого воздуха, кг/кг; h – высота слоя, м.; j – поток вещества, кг/ (м2·с); f – удельная поверхность, м2/м3; ρ – плотность, кг/м3; ε– порозность, м3/м3; w – скорость, м/с; B – массовый расход топлива кг/с; L – массовый расход газа, кг/с; Т – температура 0С; q – удельный тепловой поток, Дж/м2·с; c – удельная теплоёмкость Дж/кг·К, U – влагосодержание, %; Г – параметр, зависящий от формы частиц; aм – коэффициент массопроводности, м2/c; δ – термоградиентный коэффициент %/°С; λ– коэффициент теплопроводности. Вт/(м·К); φ – относительная влажность %; p– парциальное давление, Па; β – коэффициент массоотдачи, м/с; – коэффициент теплоотдачи, Вт/(м2·К); r – скрытая теплота парообразования, Дж/кг; х– координата, м; M – молярная масса, г/моль; V0 – объем дутьевого воздуха м3, %; ` - коэффициент избытка воздуха.
Индексы: x –координата; в – вода; м – материал; г – газ; с.г – сухой газ; о – абсолютно сухое состояние; б – бункер; к – конечный; н – начальный; р- равновесный, п – поверхность, ц – центр, пг – предел гигроскопичности, дес – десорбция, т - топка.
Основные положения диссертации опубликованы в следующих работах:
- Тимербаев, Н.Ф. Моделирование процесса сушки влажных древесных отходов отработанными газами котельных установок [Текст] / Н.Ф. Тимербаев, А.Н. Грачев, Р.Г. Сафин - Известия высших учебных заведений. Химия и химическая технология. - Иваново 2006 том 49 вып. 11 с. 103-106
- Пат. № 2274851 РФ, МПК G01N 25/50. Устройство для определения параметров воспламенения и горения твердых материалов/ Н.Ф. Тимербаев, А.Н. Грачев, Р.Р. Сафин и др.; патентообладатель НТЦ РТО; опубл. 20.04.2006
- Пат. № 2256686 РФ, МПК С10В 1/04. Углевыжигательная печь/ Н.Ф. Тимербаев, А.Н. Грачев, Р.Г. Сафин и др.; патентообладатель НТЦ РТО; опубл. 20.07.2005
- Пат. № 22279923 РФ, МПК 7В01D53/04. Адсорбционная установка рекуперации растворителей / Н.Ф. Тимербаев, Р.Г. Сафин В.Н. Башкиров и др.; патентообладатель НТЦ РПО; опубл. 20.04.2006
- Тимербаев, Н.Ф. Экспериментальный стенд для исследования процесса сжигания древесных частиц [Текст] / Тимербаев Н.Ф., Башкиров В.Н., Грачев А.Н. - Успехи в химии и химической технологии./ Казань Т.XVIII.№3(43). - 2004. - С.95-97
- Тимербаев, Н.Ф. Сжигание отходов деревообработки, с предварительной сушкой отходящими топочными газами [Текст] / Тимербаев Н.Ф., Грачев А.Н., Исхаков Т.Д - VI Международный симпозиум «Ресурсоэффективность и энергосбережение» / Казань: КГУ, 2006. –С. 333-334.
- Тимербаев, Н.Ф. Установка для пирогенетической переработки древесных отходов [Текст] / Тимербаев Н.Ф. Валеев И.А., Сафин Р.Р. - Всероссийская научно-практическая конференция «Лесной и химический комплексы- проблемы и решения» / Красноярск, 2004 г., с. 65.
- Тимербаев, Н.Ф. Совершенствование технологических процессов, сопровождающихся выбросами токсичных веществ [Текст]/ Тимербаев Н.Ф. Башкиров В.Н. Зиатдинова Д.Ф. - Межвузовский тематический сборник научных трудов «Тепломассо-обменные процессы и аппараты химической технологии» / Казань, КГТУ, 2002. С.68-72.
- Тимербаев, Н.Ф. Оптимизация сжигания летучих компонентов топлива [Текст] / Тимербаев Н.Ф., Исхаков Т.Д., Грачев А.Н. - Материалы научно практической конференции « Проблемы использования и воспроизводства лесных ресурсов» / Казань, 2006. –С. 118-119.
- Тимербаев, Н.Ф. Экспериментальная установка для исследования взаимосвязанных процессов термического разложения и выгорания летучих [Текст] / Тимербаев Н.Ф., Исхаков Т.Д., Сафин Р.Г. - Материалы научно практической конференции « Проблемы использования и воспроизводства лесных ресурсов» / Казань, 2006. –С. 190-192.
- Тимербаев, Н.Ф. Математическое описание сушки влажных древесных отходов отработанными топочными газами [Текст] / Тимербаев Н.Ф., Грачев А.Н., Исхаков Т.Д. - Материалы научно практической конференции « Проблемы использования и воспроизводства лесных ресурсов» / Казань, 2006. –С. 116-117.
- Тимербаев, Н.Ф. Пути повышения эффективности установок для сжигания биомассы [Текст] / Тимербаев Н.Ф., Грачев А.Н., Сафин Р.Г. - Труды VI Международного симпозиума «Ресурсоэффективность и энергосбережение» / Казань: КГУ, 2006. –С. 335-336.
- Тимербаев, Н.Ф. К вопросу энергетического использования древесных отходов [Текст] / Тимербаев Н.Ф., Грачев А.Н. - Материалы научно-практической конференции « Проблемы использования и воспроизводства лесных ресурсов» / Казань, 2006. –С. 185-186.
- Тимербаев, Н.Ф. Исследование процесса сжигания древесных отходов [Текст] / Тимербаев Н.Ф., Сафин Р.Г., Башкиров В.Н. - Аннотации сообщений научной сессии / Казань: КГТУ, 2004. -С.136.
- Тимербаев, Н.Ф. Математическая модель технологических процессов, сопровождающихся локальными выбросами [Текст] / Тимербаев Н.Ф. Сафин Р.Г., Башкиров В.Н. - Математические методы в технике и технологиях.- «ММТТ-16» / Ростов-на-Дону, - РГАСХМ, 2003. - С.37-39.
- Тимербаев, Н.Ф. Исследование процесса горения древесных материалов [Текст] / Тимербаев Н.Ф., Грачев А.Н., Сафин Р.Г. - Методические указания к лабораторным работам. / КГТУ, 2005. – C.16.
- Тимербаев, Н.Ф. Экспериментальный стенд для исследования процесса сжигания древесных частиц [Текст] / Тимербаев Н.Ф., Валеев И.А., Башкиров В.Н., - Успехи в химии и химической технологии. - Т.XVIII.№3(43). / Казань 2004. - C.95-97.
- Тимербаев, Н.Ф. Технологические процессы и оборудование деревообрабатывающих производств [Текст] / Тимербаев Н.Ф., Сафин Р.Г., Иманаев Р.М. и др. - Методические указания к лабораторным работам 8-11. / Казань КГТУ, 2006. – C.80.
- Тимербаев, Н.Ф. Совершенствование термической переработки древесных отходов [Текст] / Тимербаев Н.Ф., Грачев А.Н., Башкиров В.Н. - III Республиканская школа студентов и аспирантов “ЖИТЬ В XXI ВЕКЕ”. / Казань, 2004. - С.118-119.
- Тимербаев, Н.Ф. Использование некондиционной древесины в качестве возобновляемых источников энергии [Текст] / Тимербаев Н.Ф., Грачев А.Н. - Труды VI Международного симпозиума «Ресурсоэффективность и энергосбережение». / Казань: КГУ, 2006. –С. 340-341.
- Тимербаев, Н.Ф. Пути повышения эффективности установок по сжиганию отходов деревообрабатывающих предприятий [Текст] / Тимербаев Н.Ф., Грачев А.Н. - Труды VI Международного симпозиума «Ресурсоэффективность и энергосбережение». / Казань: КГУ, 2006. –С. 335-336.
Соискатель Н.Ф. Тимербаев
Заказ Тираж 80 экз.
Офсетная лаборатория Казанского государственного
технологического университета
420015, Казань, К.Маркса, 68

,
.
,
.
.
.

,


,
.
.
= V
+V
+V
+(
-1)V0;