Растениеводческих предприятий
| Вид материала | Автореферат |
СодержаниеВнедрение результатов исследований П е р е ч е н ь опубликованных работ автора |
- Аннотация к патенту РФ из №2 361 388, 22.34kb.
- Отчет о работе муниципальных предприятий и муниципальных унитарных предприятий за 2008, 199.93kb.
- Разнообразие форм собственности предприятий и их влияние на организацию финансов предприятий, 288.91kb.
- Особенности автоматизации электроснабжения промышленных предприятий, 94.88kb.
- Вниманию руководителей машиностроительных, приборостроительных, электротехнических, 66.22kb.
- Рабочей программы дисциплины Организация и планирование деятельности предприятий сервиса, 26.97kb.
- Конкурс «Инновационные направления развития пищевых предприятий и предприятий питания», 192.76kb.
- Программы адаптации новых сотрудников. На примере пермских предприятий. Оценка труда, 10.6kb.
- В ред. Постановлений Совмина рсфср от 28., 841.26kb.
- В ред. Постановлений Совмина рсфср от 28., 902.58kb.
ВНЕДРЕНИЕ РЕЗУЛЬТАТОВ ИССЛЕДОВАНИЙВнедрение результатов диссертационного исследования осуществлялось по трем основным направлениям – в нормативные и рекомендательные документы, научно – исследовательские работы, реальные проекты. I. Н о р м а т и в н ы е и р е к о м е н д а т е л ь н ы е документы:
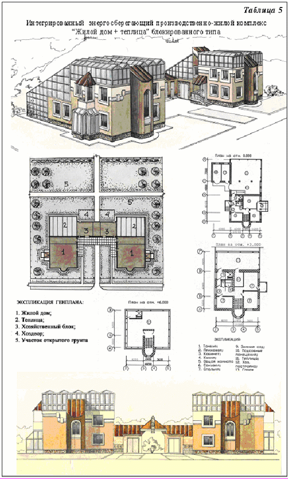
3. Рекомендации по проектированию генеральных планов плодопитомнических комплексов аграрно-промышленного типа. –Орел: Гипронисельпром, 1987. 4. Рекомендации по проектированию генеральных планов тепличных комплексов по производству рассады. –Орел: Гипронисельпом, 1990. II. Основные н а у ч н о - и с с л е д о в а т е л ь с к и е р а б о т ы, выполненные автором. 1. Разработка основных положений формирования генеральных планов плодопитомнических комплексов (аналитический обзор). Гипронисельпром,(г. Орел), 1984, ГР 01830062624, инв. № 0284 0081130. 2. Разработка основных положений формирования генеральных планов плодопитомнических комплексов. Гипронисельпром, (г. Орел), 1984, ГР 01830062643, инв. № 02850001561. 3. Разработать рекомендации по проектированию генеральных планов промышленных площадок плодопитомнических комплексов. г. Орел, Гипронисельпром, (г.Орел) 1985, ГР 01850073122, инв. № 0286.009122 / 9 434. 4. Рекомендации по проектированию генеральных планов тепличных комплексов по производству рассады. Гипронисельпром,(г. Орел), 1989, ГР 01.900027411, инв.№ 02.90.0023739. 5. Предложения по совершенствованию технологических и архитектурно-планировочных решений репродукционных теплиц. Гипронисельпром, (г.Орел), 1989, ГР 01.890083803, инв.№ 02.8.90.064.219. 6. Разработать предложения по проектированию генеральных планов комплексов по производству лимонов. Гипронисельпром, (г.Орел), 1990, ГР 01900047713, инв.№ 029.10031754. III. Типовые и экспериментальные п р о е к т ы растениеводческих предприятий защищенного грунтаы, выполненные автором 1. Типовой проект селекционной теплицы площадью 1300 м2 (многократно применен). 2.Селекционный комплекс Чишминского ОПХ Башкирской АССР. (построен). 3. Селекционный комплекс ВНИИМК в г. Запорожье (построен). 4. Типовой проект прививочной мастерской мощностью 0,3 млн. прививок в год. (в составе авторского коллектива; многократно применен). 5. Типовой проект рассадно - посадочного комплекса (Госконтракт №1255/26 от 27 сентября 2002 «Разработка и внедрение в производство ресурсосберегающих технологий промышленного производства овощных культур для выращивания методом многоярусной узкостеллажной гидропоники») (в составе авторского коллектива). 6. Блок теплиц пл. 2.0 га в ТОК «Тепличное» Ульяновской области. (построен). 7. Цех субстратов тепличного предприятия «Память Ильича» Московской области (в стадии строительства). П Е Р Е Ч Е Н Ь ОПУБЛИКОВАННЫХ РАБОТ АВТОРАПО ТЕМЕ ДИССЕРТАЦИИ 1. М о н о г р а ф и и 1. Колесникова Т.Н. Основы формирования архитектуры растениеводческих сооружений и предприятий защищенного грунта. Монография. –Орел: Изд-во ОрелГАУ, 2003, (11,5 п..л.) 2. Колесникова Т.Н. Эволюция архитектуры тепличных сооружений и предприятий. Монография. – М.: Издательство АСВ, 2005, (12, 5 п.л.). 2. Нормативно – методические документы 3. Колесникова Т.Н, Петров М.В, Щербакова М.В. Номенклатура питомнических комплексов для садоводства и виноградарства. - Орел: Гипронисельпром , ОНТИ, 1983 г., 15 стр. 4. Колесникова Т.Н., Костенецкий В.И, Шапорина В.В. Рекомендации по проектированию генеральных планов плодопитомнических комплексов аграрно-промышленного типа. - Орел: Гипронисельпром, ОНТИ, 1987 г., 72 стр. 5. Колесникова Т.Н., Костенецкий В.И. Рекомендации по проектированию генеральных планов тепличных комплексов по производству рассады . - Орел: Гипронисельпром, ОНТИ, 1990 г., 67 стр. 6. Колесникова Т.Н. Основы архитектурной графики. Методическое пособие. – Орел: изд-во ОрелГТУ, 2006, 119 стр. 7. Колесникова Т.Н. Планировка и застройка жилого комплекса (микрорайона). Методическое пособие по разработке курсового проекта. - Орел: изд-во ОГАУ, 2000 г., 54 с. 3. С т а т ь и 8*. Колесникова Т.Н. Производственные здания плодопитомнических комплексов. – М.: Агропромиздат, ж. «Плодоовощное хозяйство», №9, 1986 г. 9*. Колесникова Т.Н., Петров М.В., Щербакова М.В. Рекомендации по проектированию прививочных мастерских. - М.: «Колос», ж. «Садоводство», № 12, 1983 г. 10*. Колесникова Т.Н. Современные направления использования теплиц в экологической реабилитации архитектурной среды исторических городов. - М.: Стройиздат, «Промышленное и гражданское строительство», № 6, 1999 г, с. 53-54. 11. Колесникова Т.Н. Принципы градостроительного размещения семейных растениеводческих предприятий в структуре населенных мест // Актуальные проблемы теории и практики инженерных исследований: сборник научных трудов, 331 стр /. - М.: «Машиностроение», 1999, стр.172-174 12. Колесникова Т.Н. Архитектурные решения энергосберегающих и энергоактивных растениеводческих производственно-жилых комплексов //Строительная механика инженерных конструкций и сооружений: межвузовский сборник научных трудов, вып.9, 160 с./. - М.: Изд-во АСВ, 2000 г., с. 154-155 13. Колесникова Т.Н. Структура функциональных взаимосвязей на территории промзоны плодопитомнического комплекса и ее влияние на планировочные решения производственных зданий //Сооружения защищенного грунта, сб. научн. трудов/.- Орел: ОНТИ Гипронисельпром, 1988 г. с.149-155. 14. Колесникова Т.Н., Кузнецов И.Н. К вопросу расчета естественного освещения в курсовом и дипломном проектировании.- Орел: ОГСХА, сб. трудов, 1995 г. 15. Колесникова Т.Н. Экологические аспекты архитектурного формирования малых семейных растениеводческих предприятий в России. //Проблемы теории и практики в инженерных исследованиях: сб. научн. трудов РУДН/. - М.: Изд-во АСВ, 1998, с 47-49. 16. Колесникова Т.Н. Современная архитектурная типология растениеводческих сооружений и их комплексов //Совершенствование архитектурно-строительных решений предприятий, зданий и сооружений: сборник научных трудов ЦНИИПромзданий/. - М.: изд-во ГУП ЦПП, 2001, с. 35-40 17*. Колесникова Т.Н. Эволюция архитектурной типологии растениеводческих сооружений защищенного грунта. - М.: Стройиздат, «Промышленное и гражданское строительство», № 9, 2004 г., с. 20-22. 18. Колесникова Т.Н., Волкова Л.А. Экореконструкция промышленных районов города.// Повышение качества среды жизнедеятельности города и сельских поселений архитектурно - строительными средствами: сборник научных трудов/. -Орел: изд-во ОГАУ, 2005, стр. 235 –236. 19. Колесникова Т.Н. Система факторов, влияющих на формирование архитектурной типологии тепличных сооружений и предприятий //Повышение качества среды жизнедеятельности города и сельских поселений архитектурно - строительными средствами: сборник научных трудов/. - Орел: изд-во ОГАУ, 2005, стр. 236 –240. 20. Колесникова Т.Н. Тепличные семейные предприятия как элемент создания комплексной экологической инфраструктуры поселений в рамках программы «Славянские корни». - Орел: изд-во ОрелГТУ, Известия ОрелГТУ. Научный журнал, Серия «Строительство. Транспорт», №1, 2005, с.19-21. 21. Колесникова Т.Н. Световой климат местности как важный фактор формирования формирования рациональных энергоэкономичных архитектурных решений теплиц. - Орел: изд-во ОрелГТУ, Известия ОрелГТУ. Научный журнал, Серия «Строительство. Транспорт», №3-4 (7-8), 2005, с.41-45. 22. Колесникова Т.Н. Принципы формирования объемно – планировочных решений основных зданий и сооружений растениеводческих предприятий. – М.: изд-во РУДН, Вестник Российского университета дружбы народов, 2006 г. стр. 27-28. 23*. Колесникова Т.Н. Экологический потенциал тепличных сооружений в формировании качественной архитектурной среды поселений. - М.: Стройиздат, «Промышленное и гражданское строительство», № 2, 2006 г., с. 28-29. 24. Колесникова Т.Н., Дорофеева И.А. Некоторые тенденции эволюции архитектуры аграрных предприятий России на современном этапе (на примере растениеводческих предприятий защищенного грунта). -Орел: изд-во ОрелГТУ, Вестник центрального регионального отделения РААСН, периодическое научное издание, выпуск 5, 2006 г., стр.59 – 68. 25. Колесникова Т.Н. Универсальные и специфические принципы формирования архитектурно – планировочной структуры основных зданий и сооружений растениеводческих предприятий //Прогрессивные архитектурно-строительных решений предприятий, зданий и сооружений: сборник научных трудов ЦНИИПромзданий/. -М.: изд-во ГУП ЦПП, 2006, с.35-41. 26. Колесникова Т.Н. Основы формирования объемно-пространственной структуры основных зданий и сооружений растениеводческих предприятий. – Орел: изд-во ОрелГТУ, Вестник центрального регионального отделения РААСН. Периодическое научное издание, выпуск 5, 2006 г., стр.53 – 58. 27*. Колесникова Т.Н. Градостроительные проблемы формирования архитектуры растениеводческих предприятий защищенного грунта в новых экономических условиях. – М.: Стройиздат, «Промышленное и гражданское строительство», № 11, 2006 г., с. 43-44. 28* Колесникова Т.Н. Система факторов, влияющих на формирование архитектуры растениеводческих сооружений защищенного грунта. – Екатеринбург: «Архитектон: Известия вузов», №15, 2006, сайт ссылка скрыта 29. Природные условия и их влияние на архитектуру тепличных сооружений и предприятий. –Орел: Изд-во ОрелГТУ, Научный журнал, Серия «Строительство», №1-2 (9-10), 2006, с.55-57 30* Колесникова Т.Н. Эволюция архитектуры растениеводческих сооружений в России (XVII – начало XX в.в.). –Екатеринбург: «Архитектон: Известия вузов», №15, 2006 ,сайт ссылка скрыта /2006_03/print.html?pr=TA/ta43 31. Колесникова Т.Н. Технология - как основа формирования архитектурных решений растениеводческих сооружений и предприятий защищенного грунта. – Орел: Изд-во ОрелГТУ, Научный журнал, Серия «Строительство», №1-2 (11-12), 2006, с.55-57. 32*. Колесникова Т.Н. Принципы и рекомендации по архитектурному формированию основных зданий современных тепличных предприятий. -М.: Стройиздат, «Промышленное и гражданское строительство», № 1, 2007г. 33*. Колесникова Т.Н. Современные подходы к градостроительному размещению семейных тепличных предприятий в структуре поселений. –М.: ИПК «Московская правда», ж. «Сельское строительство», 2007, №.1 34*. Колесникова Т.Н. Объемно-пространственная организация энергосберегающего тепличного производственно-жилого комплекса. –М.: ж. «Жилищное строительство», №2 4. О п у б л и к о в а н н ы е д о к л а д ы, сделанные на международных, всероссийских, вузовских конференциях и семинарах 35. Колесникова Т.Н. Архитектурная типология растениеводческих сооружений за рубежом XY - XIX веков. Тезисы докладов XXXII научной конференции РУДН, -М., РУДН,1996, с. 26. 36. Колесникова Т.Н., Кузнецов И.Н. Архитектурные проблемы формирования новых типов растениеводческих предприятий России. //Агропромышленный комплекс России: актуальные проблемы и пути их решения: Материалы научно-практических конференций/,- Орел, изд-во ОГСХА, 1997, с. 103-105. 37. Колесникова Т.Н., Кузнецов И.Н. Садово-парковые ансамбли в усадьбах Орловской области на примере Мансуровского парка. //Агропромышленный комплекс России в период глубокого реформирования: актуальные проблемы и пути их решения: Материалы научно-практической конференции/, -Орел, ОГСХА,1997, апрель, с.120-122. 38. Колесникова Т.Н. Эволюция архитектурной типологии растениеводческих сооружений защищенного грунта //Агропромышленный комплекс России в период глубокого реформирования: актуальные проблемы и пути их решения: Материалы научно-практической конференции,1997, апрель/ - Орел, изд-во ОГСХА, 1997, с 116-118. 39. Колесникова Т.Н. Особенности архитектурных решений растениеводческих предприятий. //Тезисы докладов XXXIII научной конференции РУДН/. -М., РУДН, 1997, С.49. 40. Колесникова Т.Н., Кузнецов И.Н. Новые подходы к проектированию ограждающих конструкций зданий. // Естественно-научные и технологические аспекты развития АПК: опыт и проблемы 9-10 апреля 1998 г./, -Орел, изд-во ОГСХА, 1999 г., стр. 74-76. 41. Колесникова Т.Н. Градостроительные аспекты архитектурного формирования малых семейных растениеводческих предприятий. //Естественнонаучные и технологические аспекты развития АПК - опыт и проблемы: материалы научно-практической конференции, 9-10 апреля 1999 г./, -Орел, изд-во ОГАУ, 1999г., с. 97 –102. 42. Колесникова Т.Н. Особенности архитектурных решений энергосберегающих и энергоактивных индивидуальных растениеводческих предприятий. // Материалы научно-практической конференции «Энерго- и ресурсосбережение при строительстве и эксплуатации зданий и сооружений», 2-4 февраля 1999 г./. -Орел, изд-во ОГАУ, 1999, с. 34-38. 43. Колесникова Т.Н., Кузнецов И.Н. Экологические аспекты формирования архитектуры семейных растениеводческих предприятий - важнейший структурный элемент программы «Славянские корни». // Основные направления совершенствования архитектуры и строительства с учетом современных экологических требований: сборник научных трудов Всероссийской научно-технической конференции /, -Орел, изд-во ОГАУ, 2000, с.22-26. 44. Колесникова Т.Н. Градостроительное размещение растениеводческих предприятий защищенного грунта в новых экономических условиях. //Материалы международной научно - практической конференции «Город и время»/. -Уфа, изд-во УГНТУ,2000, с. 111-114. 45. Колесникова Т.Н. Объемно-пространственная организация энергосберегающего растениеводческого производственно-жилого комплекса блокированного типа. //Архитектура и строительство XXI века: сборник научных трудов Всероссийской научно-практической конференции/ -Орел, изд-во ОГАУ, 2002, с.28-33. 46. Колесникова Т.Н. Взаимосвязь классификационных признаков как основа формирования архитектурной типологии растениеводческих сооружений и их комплексов. //Архитектура и строительство XXI века: сборник научных трудов Всероссийской научно - практической конференции /. - Орел, изд-во ОГАУ, 2002, с.46-51. 47. Колесникова Т.Н. Эволюция архитектуры растениеводческих сооружений в России (XVII-середина XVIII в.в.). //Теория и практика научных исследований: Материалы научной конференции аспирантов, преподавателей и молодых ученых 22-25 апреля 2002 г./, -М., Изд-во РУДН, 2003, с. 216-217. 48. Колесникова Т.Н. Волкова Л.А. Перспективные направления экологической реабилитации застройки промышленных районов городов. //Теория и практика научных исследований: Материалы научной конференции аспирантов, преподавателей и молодых ученых 22-25 апреля 2002 г./, -М., Изд-во РУДН, 2003, с. 217-218. 49. Колесникова Т.Н. Эволюция архитектуры зимних садов за рубежом от возникновения до начала XIX века. //Садово-парковое и ландшафтное строительство: сборник материалов I Всероссийской научно - практической конференции/, - Орел, изд-во ОГАУ, 2004, с.50-55. 50. Колесникова Т.Н. Архитектурно-ландшафтные аспекты урбоэкологии. //Садово-парковое и ландшафтное строительство: сборник материалов I Всероссийской научно - практической конференции /. - Орел, изд-во ОГАУ, 2004, с.56-60. 51. Колесникова Т.Н. Современные подходы в использовании солнечной радиации при формировании энергосберегающих архитектурных решений теплиц. //Ресурсосберегающие технологии при хранении и переработке сельскохозяйственной продукции: сборник материалов VII Международного научно – практического семинара 28-30 июня 2004 года/. - Орел, изд-во ОГАУ, 2004, стр. 118-126. 52. Колесникова Т.Н. Развитие архитектуры теплиц в России (середина XIX - начало XX в.в.). //Современные инженерные технологии: материалы научно-технической конференции преподавателей, сотрудников и аспирантов инженерного факультета, 26-30 апреля 2004 г./. -М., Изд-во РУДН, 2004, с.16-17. 53. Колесникова Т.Н., Волкова Л.А.. Совершенствование архитектурных решений промышленных предприятий с учетом требований видеоэкологии. //Современные инженерные технологии: материалы научно-технической конференции преподавателей, сотрудников и аспирантов инженерного факультета, 26-30 апреля 2004 г./, -М., Изд-во РУДН, 2004, с.17-19. 54. Колесникова Т.Н Современные направления разработки архитектурных решений ресурсосберегающих экологически чистых сооружений для села. //Ресурсосбережение – XXI век: сборник материалов международной научно-технической конференции 1-6 июля 2005 г., г. Санкт-Петербург/, -Орел, изд-во ОГАУ, 2005, стр.262-266. 55. Колесникова Т.Н. Научные основы архитектурной организации основных зданий и сооружений растениеводческих предприятий. //Прогрессивные архитектурно-строительные решения промышленных и сельскохозяйственных предприятий: сборник научных трудов международной научно-практической конференции/, - Орел, изд-во ОГАУ, 2006, стр. 55 –58. *Публикации в рецензируемых журналах и изданиях Всего по теме диссертации опубликовано 55 работ, в т.ч. две монографии, 5 нормативно – методических документов, 48 статей. Основные научные результаты диссертации опубликованы в 11 ведущих рецензируемых журналах и изданиях, из них за последние пять лет - 8 публикаций. ![]() ![]() ![]() ![]() ![]() |





