Курсовая работа по дисциплине информационные сети и телекоммуникации
| Вид материала | Курсовая |
- А. С. Попова Факультет «Информационные сети» Кафедра «Сети связи» Конспект, 640.18kb.
- Рабочая программа по дисциплине «Информационные сети и телекоммуникации» По специальности, 326.83kb.
- Курсовая работа Тема: Работа в среде Microsoft Office (Access), разработка приложения, 211.42kb.
- Темы рефератов по дисциплине Сети ЭВМ и телекоммуникации (2006г.) гр. 432-1, 50.76kb.
- Программа дисциплины «информационные сети» Индекс дисциплины по учебному плану: опд., 123.28kb.
- Конспект лекций по дисциплине «Компьютерные сети и телекоммуникации», 770.6kb.
- 1 Основные понятия, состав и типы вычислительных сетей, 20.16kb.
- Сети ЭВМ и телекоммуникации пособие к выполнению лабораторных работ начальные сведения, 441.17kb.
- Учебно-методический комплекс по дисциплине б б 06 Сети и телекоммуникации для направления, 767.28kb.
- Учебно-методический комплекс по дисциплине вычислительные системы, сети и телекоммуникации, 610.87kb.
Министерство образования и науки РФ
ЧЕРЕПОВЕЦКИЙ ГОСУДАРСТВЕННЫЙ УНИВЕРСИТЕТ
Институт информационных технологий
Кафедра автоматизации и систем управления
КУРСОВАЯ РАБОТА
ПО ДИСЦИПЛИНЕ
ИНФОРМАЦИОННЫЕ СЕТИ И ТЕЛЕКОММУНИКАЦИИ
Выполнили студенты группы 1ЗАТ-51
Соловьёв Н.В.
Принял доцент кафедры АиСУ
Волков А. Н.
Отметка о зачете: ________________
«____» _________________________
Череповец
2011
СОДЕРЖАНИЕ
ВВЕДЕНИЕ
ОСНОВНАЯ ЧАСТЬ
- Выбор конфигурации рабочих станций
- Выбор конфигурации сервера
- Выбор стандарта и конфигурации сети
- Расчет длины кабелей
- Выбор сетевого ПО
- Расчет стоимости оборудования
ЗАКЛЮЧЕНИЕ
СПИСОК ЛИТЕРАТУРЫ
ВВЕДЕНИЕ
Задание:
- Выбрать конфигурации новых рабочих станций, которые будут располагаться в соответствии с рис. 1. Старые рабочие станции имеют предопределенные низкопроизводительные конфигурации.
- Спроектировать локальную сеть, соединяющую все компьютеры. Причем необходимо соблюсти следующие положения:
- Новые компьютеры должны работать в сети на скорости не менее 100 Мбит/с;
- Старые компьютеры допустимо подключить к сети на скорости 10 Мбит/с;
- Проводить кабеля следует через дверные проемы, сверлить отверстия в стенах не допускается;
- В сети должен быть один мощный файловый сервер;
- Сеть должна иметь минимальную стоимость.
- Новые компьютеры должны работать в сети на скорости не менее 100 Мбит/с;
- Выбрать программное обеспечение для сервера и рабочих станций сети.

Рисунок 1. Расположение компьютеров в зданиях
ОСНОВНАЯ ЧАСТЬ
1. Выбор конфигурации рабочих станций
При выборе конфигурации ПК необходимо учитывать область применения компьютера и сложность решаемых задач, а также стоимость комплектующих.
Так как необходимо закупить довольно значительный парк компьютеров, то сделать это лучше в Москве по оптовым ценам, тогда стоимость оборудования будет значительно ниже. Выберем в качестве поставщика компьютерный супермаркет «НИКС». Подбор комплектующих будем производить по электронному прайслисту содержащему около 8000 наименований. По правилам супермаркета «НИКС» оптовая цена действует при разовой покупке на сумму свыше 150000 рублей за наличный расчет. Потребуется заказать грузовой транспорт для доставки комплектующих в Череповец.
Для решения современных офисных задач (бухгалтерии) достаточно использовать ПК с процессорами Celeron. Аудио и видео можно использовать интегрированные в материнскую плату. Для установки ПО на рабочих станциях потребуются DVD-ROM. Для организации сети потребуется сетевая карта. Необходимо также в соответствии со стандартами на предельные уровни излучения установить жидкокристаллические мониторы.
Возьмем современную среднюю бюджетную офисную конфигурацию:
- Процессор ссылка скрыта (1415 рублей)
- ОЗУ ссылка скрыта (566 рубля)
- Материнская плата ссылка скрыта (1468,4 рубля)
- Корпус ссылка скрыта (1726 рубля)
- Жесткий диск ссылка скрыта (1298 рубля)
- Видеокарта (встроенная)
- Звуковая карта (встроенная)
- ссылка скрыта (644,8 рубля)
- Встраиваемый карт-ридер SEMA SFD-321F/TS41UB (267 рублей)
- Сетевая карта D-Link
PCI 10/100/1000Mbps (450,8 рубля)
- Клавиатура Genius Comfy KB-06X Ergo Black
104КЛ (165,2 рубля)
- Мышь Genius XScroll Optical Wheel Mouse
3btn Roll PS/2 <31010144101> (148,4 рублей)
- Монитор 17" MONITOR Acer V173Dob
(LCD, 1280 x 1024) (4560 рублей)
- Источник бесперебойного питания UPS 350VA Back CS APC
USB (1624 рубля)
- Клавиатура Genius Comfy KB-06X Ergo Black
В скобках указана оптовая цена комплектующих.
Полная цена рабочей станции – 14331 рублей.
2. Выбор конфигурации сервера
От серверных станций требуется гораздо более высокая производительность, поэтому необходимо использовать более мощные процессоры от компании Intel. Аудио также можно использовать интегрированные. На серверах необходимо устанавливать также значительный объем ОЗУ (4 Гб), так как требуется держать резидентными значительное число программ по обеспечению сетевых сервисов.
Сервер должен обеспечивать возможность резервного копирования данных с рабочих станций. Для этого нужно установить большой объем ПЗУ. Для обеспечения высокого уровня надежности хранения данных на сервере необходимо установить систему зеркалирования данных, то есть использовать два одинаковых высокоёмких жестких дисков на контроллере RAID. Дополнительно нужно обеспечить возможность резервного копирования на оптические диски, то есть требуется DVD-рекордер.
Для сервера потребуется более мощный блок питания (360 Вт), а также более мощный источник бесперебойного питания.
В сети потребуется наличие хотя бы одного принтера. Для связи также потребуется модем.
С учетом предъявленных требований получим следующую конфигурацию серверной станции:
- Процессор ссылка скрыта (6258 рубля)
- ОЗУ 2 шт. ссылка скрыта (1458 рублей)
- Материнская плата ссылка скрыта (3082 рубля)
- Корпус ссылка скрыта (1726 рублей)
- Жесткий диск 2 шт. ссылка скрыта (4780 рублей)
- Видеокарта (встроенная в CPU)
- Звуковая карта (встроенная)
- ссылка скрыта (644 рублей)
- Встраиваемый карт-ридер SEMA SFD-321F/TS41UB (267 рублей)
- Сетевая карта D-Link
PCI 10/100/1000Mbps (450,8 рубля)
- Клавиатура Genius Comfy KB-06X Ergo Black
104КЛ (165,2 рубля)
- Мышь Genius XScroll Optical Wheel Mouse
3btn Roll PS/2 <31010144101> (148,4 рубля)
- Монитор 17" MONITOR Acer V173Dob
(LCD, 1280 x 1024) (4560 рублей)
- Источник бесперебойного питания UPS 500VA Back CS APC
USB (2324 рубля)
- Принтер hp OfficeJet 4500
(A4, 28 стр/мин, 64Mb, струйное МФУ, факс, ADF, USB2.0, сетевой) (3176 рублей)
- Модем D-Link DU-562M EXT 56K (RTL) USB V.92 (708,4 рубля)
- Клавиатура Genius Comfy KB-06X Ergo Black
Полная цена серверной станции составляет 30017,8 рубля.
3. Выбор стандарта и конфигурации сети
Сети стандарта Ethernet на сегодняшний день являются наиболее распространенными, а потому являются совместимыми с наиболее распространенными сетевыми программными средствами.
В связи с широкой распространенностью стандарта и большим количеством производителей составных элементов Ethernet-сетей стоимость оборудования является невысокой.
Сети стандарта Ethernet поддерживают возможность дальнейшего увеличения скорости передачи информации (Fast Ethernet, Gigabit Ethernet) без замены физической среды передачи (витая пара).
Компьютеры в проектируемой сети будут находиться на небольших расстояниях (менее 50 метров), что позволяет не использовать репитеры при организации сети по стандарту Ethernet.
Описанные выше положения предопределяют выбор стандарта в пользу Fast Ethernet.
Сеть нужно спроектировать так, чтобы через улицу между зданиями проходило как можно меньше проводов, так как на улице вероятность воздействия агрессивных сред на витую пару существенно возрастает. Через улицу нужно прокладывать витую пару, уложенную в гофрированную защитную трубку из специального пластика.
Также для уменьшения количества протягиваемых проводов через дверные проемы компьютеры находящиеся в одной комнате нужно включать в один концентратор.
Для сервера желательно выделить отдельную комнату. За отсутствием отдельной поместим серверную станцию в южной комнате восточного здания, где всего вместе располагается 3 компьютера.
Таким образом, карта расположения концентраторов, рабочих станций и сервера будет выглядеть следующим образом (рис. 2).

Рисунок 2. Карта расположения оборудования сети
4. Расчет длины кабелей
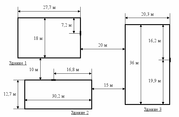
Расчет длины кабелей между зданиями будем производить по рис. 3.
Длина кабеля от здания 1 до здания 3 (от К2 до К4) составляет 21,6 м + 20 м + 4,5 м + 20,3 м + 16,2 м + 2 м = 84,6 м.
Длина кабеля от здания 2 до здания 3 (от К3 до К4) составляет 16,8 м + 16,8 м + 18,4 м + 20,3 м + 19,9 м + 2 м = 94,2 м.

Рисунок 3. Размеры зданий и расстояния между ними
Расчет длины кабелей и защитных коробов в здании 1 будем проводить по рис. 4. Расстояния от концентраторов до рабочих станций и между концентраторами представлены в таблице:
| Расстояние от | К1 | до | РС1 | 2,25 м |
| К1 | РС2 | 6,75 м | ||
| К1 | РС3 | 11,25 м | ||
| К1 | РС4 | 15,75 м | ||
| К2 | РС5 | 3,6 м | ||
| К2 | РС6 | 10,8 м | ||
| К2 | РС7 | 25,6 м | ||
| К2 | РС8 | 32,8 м | ||
| К1 | К2 | 29,9 м |

Рисунок 4. Внутренняя планировка здания 1
Расчет длины кабелей и защитных коробов в здании 2 будем проводить по рис. 5. Расстояния от концентратора К3 до рабочих станций представлены в таблице:
| Расстояние от | К3 | до | РС9 | 53,4 м |
| К3 | РС10 | 49,2 м | ||
| К3 | РС11 | 45,0 м | ||
| К3 | РС12 | 2,2 м | ||
| К3 | РС13 | 6,4 м | ||
| К3 | РС14 | 10,6 м |

Рисунок 5. Внутренняя планировка здания 2
Расчет длины кабелей и защитных коробов в здании 3 будем проводить по рис. 6. Расстояния от концентраторов до рабочих станций и между концентраторами представлены в таблице:
| Расстояние от | К5 | до | РС15 | 31,0 м |
| К5 | РС16 | 23,4 м | ||
| К5 | РС17 | 18,4 м | ||
| К5 | РС18 | 13,4 м | ||
| К5 | РС19 | 3,0 м | ||
| К5 | РС20 | 9,0 м | ||
| К5 | РС21 | 15,0 м | ||
| К6 | С | 3,0 м | ||
| К6 | РС22 | 9,0 м | ||
| К6 | РС23 | 15,0 м | ||
| К4 | РС24 | 26,8 м | ||
| К4 | РС25 | 31,6 м | ||
| К4 | РС26 | 36,4 м | ||
| К4 | К5 | 39,9 м | ||
| К4 | К6 | 46,2 м |

Рисунок 6. Внутренняя планировка здания 3
5. Выбор сетевого ПО
В качестве сетевой ОС для рабочих станций выбрана ОС Microsoft Windows 2000 Professional (RUS), для сервера – Microsoft Windows 2000 Server (RUS). На сервере при необходимости предполагается использовать СУБД Microsoft SQL Server 2000 (Standard Edition). Старые РС, входящие в сеть, могут управляться ОС Windows 98.
Системные требования:
ОС Windows 2000 Professional – Pentium 133 МГц, 64 Мб ОЗУ, 1 Гб места на диске, поддерживает до 2-х процессоров.
ОС Windows 2000 Server – Pentium 133 МГц, 128 (рек. 256) Мб ОЗУ, 1 Гб места на диске, поддерживает до 4-х процессоров.
СУБД SQL Server 2000 – Pentium 166 МГц (рек. Pentium-III), 64 Мб ОЗУ, 180 Мб места на диске, рек. ОС Windows 2000 Server.
Windows 2000 представляет собой операционную систему нового поколения, при разработке которой основной упор делался на развитие сетевых возможностей системы. Windows 2000 Professional представляет собой клиентскую операционную систему в линейке Windows 2000, представляющую собой эквивалент NT Workstation. Операционная система способна поддерживать до двух процессоров. Windows 2000 Server - серверная операционная система, рассчитанная на рынок небольших сетей. Изначально планировалась, что система будет поддерживать серверы с не более чем двумя процессорами, однако позднее Microsoft заявила о поддержке до четырех процессоров. Предполагается использование этой системы для управления серверами печати и файлов, Web-серверами и серверами приложений начального уровня в сетях масштаба предприятия.
Из огромного количества нововведений можно выделить несколько наиболее существенных: служба каталогов Active Directory; отказ от использования NetBIOS; динамическая DNS (DDNS); протокол аутентификации Kerberos; поддержка новых сетевых технологий (ATM, Frame Relay); служба маршрутизации и удаленного доступа; служба дистанционного управления (Terminal Service). Самое революционное изменение произошло в идеологи, в подходе к построению сети. Microsoft отказалась от плоской доменной модели, которая использовалась во всех предыдущих версиях ее систем. В Windows 2000 используется иерархическая доменная модель наподобие пространства имен DNS.
Cоздателями Windows 2000 проделана огромная работа по обеспечению совместимости с предыдущими версиями системы. Помимо того, что пользователи могут спокойно продолжать работать с предыдущими версиями Windows, они получают дополнительные преимущества, предоставляемые Windows 2000. С операционной системой поставляется клиентское ПО, позволяющее использовать для аутентификации клиентов протокол Kerberos, работать с распределенной файловой системой (DFS), осуществлять поиск объектов в Каталоге и многое другое. Более того, в переходном режиме функционирования домен Windows 2000 позволяет использовать в качестве резервных контроллеров домена серверы под управлением Windows NT 4.0. Введение DDNS позволяет отказаться от использования UNIX-систем в корпоративных сетях. Появление DDNS вызвало определенный переполох среди UNIX-администраторов. В Америке многие из UNIX-администраторов воспринимают появление этой службы в составе Windows 2000 как потенциальную угрозу их увольнения. Действительно, теперь обслуживание серверов DNS может быть выполнено непосредственно системными администраторами в процессе обслуживания системы в целом.
В Windows 2000 служба дистанционного управления (Terminal Service) поставляется непосредственно в составе системы. При этом клиенты Terminal Services могут выполняться на различных платформах: MS-DOS, Windows, UNIX, Macintosh. Клиенты Terminal Services для MS-DOS и семейства операционных систем Windows поставляются в составе Windows 2000. Поддержка клиентов Terminal Services для систем UNIX и Macintosh пока только заявлена Microsoft. Планируется, что они будут поставляться отдельно.
Сравнение Windows 2000 и NetWare 5.0. По заверениям Microsoft, новая операционная система существенно превосходит Novell NetWare 5.0. Достаточно продолжительное время Novell в своих системах использовала в качестве основного транспортного протокола патентованный стек протоколов IPX/SPX, являющийся их собственной разработкой. Возможностей этого стека протоколов было достаточно для использования в локальных сетях. Однако стремительное развитие Интернета и желание крупных корпораций интегрироваться в эту глобальную сеть вынудили корпорацию Novell использовать в своей новой операционной системе TCP/IP в качестве основного транспортного стека протоколов. Одновременно была реализована поддержка сетевых служб DHCP и DNS. Тем не менее Windows 2000 обходит своего конкурента. Огромное количество служб, реализованных в Windows 2000, либо просто не имеют аналогов в NetWare 5.0, либо, чтобы получить возможность использовать аналогичные службы, потребитель должен приобрести дополнительное программное обеспечение (речь идет о таких продуктах, как, например, BorderManager).
Сравнение Windows 2000 и UNIX-систем. Если Windows 2000 в возможностях организации сетевого взаимодействия заранее имела преимущество над NetWare 5.0, то в случае с UNIX-системами ситуация была обратная. UNIX-системы обладают значительно большими сетевыми возможностями, представляя для Microsoft постоянный источник упреков. Связка UNIX—Интернет настолько прочно укоренилась в сознании информационного сообщества, что процесс, интеграции в Интернет зачастую рассматривается как процесс интеграции с UNIX-системами. С другой стороны, Microsoft традиционно делала ставку на создание дружественного интерфейса. В то время как UNIX-системы традиционно предоставляли администраторам больше возможностей конфигурирования операционной системы. Специалисты выделяют несколько наиболее существенных недостатков, присущих UNIX-системам. Несовместимость существующих версий. Выпущено огромное количество разнообразных версий, которые зачастую несовместимы друг с другом. Приложения, предназначенные для одной версии UNIX, могут не функционировать на другой. Это существенно ограничивает распространение UNIX-систем, поскольку, помимо конкуренции со своими явными соперниками (Windows и NetWare), они вынуждены конкурировать друг с другом. С другой стороны, Microsoft уделяет особое внимание вопросу обеспечения совместимости между существующими версиями Windows. Несмотря на то, что Windows 2000, по сути дела, является операционной системой нового поколения, она способна сосуществовать с предыдущими версиями Windows. Аналогичным образом обстоит дело с существующим программным обеспечением. Большая часть приложений, разработанных для предыдущих версий Windows, могут быть использованы в среде Windows 2000. UNIX-системы славятся своей надежностью. Однако для того, чтобы получить надежную систему, необходимо ее соответствующим образом сконфигурировать. Многие администраторы, привыкшие к удобному графическому интерфейсу Windows, теряются перед необходимостью производить настройку системы практически вручную. У всех UNIX-систем графические возможности традиционно являются слабым местом. Естественный режим функционирования всех UNIX-систем — консольный режим. Благодаря применению дополнительных компонентов (таких как Х Window Server) существует возможность реализовать графическую оболочку. Однако найдется очень мало серьезных графических пакетов под UNIX, а существующие уступают по своей производительности аналогичным пакетам, реализованным для Windows. Связано это с тем, что графические возможности Windows реализованы на уровне ядра, в то время как UNIX реализует их в качестве надстройки над операционной системой, функционирующей в пользовательском режиме.
Из всего вышесказанного можно сделать вывод, что основным преимуществом сетевых ОС семейства Windows 2000 является простота настройки и использования, вследствие наличия развитого графического интерфейса и совместимости с предыдущими версиями ОС. Благодаря чему значительно снижаются требования к уровню подготовки персонала, особенно системных администраторов, что в конечном итоге снижает стоимость обслуживания сети.
СУБД Microsoft SQL Server 2000. SQL Server 2000 под управлением Windows 2000 обеспечивает наивысшее быстродействие по данным тестов SAP R/3 Sales and Distribution Standard Benchmark для системы Windows, поддерживая 7500 одновременно происходящих продаж и распределенно работающих пользователей, обладая при этом на 53 % более высокой масштабируемостью, чем Oracle под управлением Windows 2000. SQL Server 2000 получил сертификат C2 — высочайшую оценку безопасности по классификации, официально принятой в США. SQL Server 2000 Standard Edition — предпочтительный вариант для малых и средних организаций, которым не требуется повышенная масштабируемость и работа в отказоустойчивых конфигурациях, а также расширенные возможности Analysis Services. SQL Server Standard Edition может использоваться на 4-х процессорных системах, обеспечивая поддержку до 2Гб оперативной памяти. Стоимость данной СУБД зависит от числа пользователей и вида лицензии и находится в пределах от 400 до 5500 $.
6. Расчет стоимости оборудования
В полную стоимость разработанной сети входит стоимость следующего оборудования:
- Стоимость рабочих станций и сервера: 19×14331 + 30017,8 = 302306,8 рубля;
- Стоимость концентраторов (D-Link Fast Ethernet Switch 8-port): 6×602 = 3612 рублей;
- Стоимость кабеля (UTP 4 пары категории 5e ExaLan PLUS бухта 305 м): 3×1363,6 = 4090,8 рубля;
- Стоимость внешних розеток RJ-45 категории 5: 27×37,8 = 1020,6 рубля;
- Стоимость коннекторов RJ-45 категории 5 со вставками и изолирующими колпачками (упаковка 100 штук): 453,6 рубля;
- Стоимость гофрированной защитной трубки диаметром 16 мм (по 100 метров) для наружной проводки: 2×462 = 924 рубля;
- Стоимость кабельных каналов (32×16, Efapel по 2 м): 173·×89,6 = 15500,8 рубля;
- Стоимость операционных систем для рабочих станций и сервера: 19×3864 + 7×1456 + 16380 = 99980 рублей.
Общая стоимость сети по оптовым ценам в Москве, включая стоимость сетевых ОС, но без учета стоимости работ по монтажу сети и настройки ПО составит 427888,6 рублей.
ЗАКЛЮЧЕНИЕ
В данной работе спроектирована локальная информационная сеть, включающая компьютеры расположенные в трех зданиях.
Сеть содержит 7 старых низкопроизводительных рабочих станций, 19 новых рабочих станций и 1 серверную станцию. Старые рабочие станции имеют конфигурацию способную работать только в 10-мегабитных сегментах Ethernet. Конфигурации новых рабочих станций выбраны в соответствии с требованиями к конфигурации современного бухгалтерского ПК, с требованиями по безопасности жизнедеятельности, а также в соответствии с требованиями по минимизации стоимости комплектующих. Конфигурация сервера выбрана в соответствии со сложностью выполняемых им сетевых функций.
Для сети выбран наиболее распространенный на сегодняшний день стандарт Fast Ethernet. Сеть также включает сегменты стандарта Ethernet для объединения старых компьютеров. Сеть построена на основе 6 концентраторов D-Link, способных разделять сегменты 10- и 100-мегабитных стандартов Ethernet.
В сети в качестве физической среды передачи выбрана неэкранированная витая пара категории 5e содержащая 4 пары медных проводов. Данный кабель обеспечивает полнодуплексную систему связи в стандарте Fast Ethernet, поэтому скорость передачи информации в сети может достигать 200 Мбит/с в обе стороны. Кабели протягиваемые через улицу защищены специальной гофрированной трубкой. Кабели протягиваемые внутри помещений проложены в специальных защитных кабельных каналах закрепленных на уровне пола.
В качестве операционной системы высокопроизводительных рабочих станций выбрана Microsoft Windows 2000 Professional (RUS). Для низкопроизводительных рабочих станций выбрана ОС Windows 98 Second Edition (RUS). Для серверной станции выбрана ОС Microsoft Windows 2000 Server (RUS). Данные ОС позволяют обеспечить реализацию всех сетевых функций ведения бухгалтерии малого предприятия.
Рассчитана стоимость всех компьютеров сети, стоимость всего сетевого оборудования, а также стоимость лицензионных ОС. Полная стоимость разработанной сети составляет 427888,6 рублей. Стоимость лицензионных ОС составляет 99980 рублей. Доля стоимости операционных систем составляет 23,3% полной стоимости сети. Однако в зависимости от целей функционирования сети также необходимо закупить соответствующее программное обеспечение.
СПИСОК ЛИТЕРАТУРЫ
Электронный прайс-лист компьютерного супермаркета «НИКС», Internet, .ru
- «Иллюстрированный самоучитель по локальным сетям», Internet, doc.ru
- Курс лекций и практических занятий по дисциплине «Информационные сети и телекоммуникации»

31010144101>31010144101>
