Project spine: output 6 – fact sheet n. 15 16
| Вид материала | Документы |
- Project Expert 0, 587.79kb.
- Microsoft Project Server. Microsoft Project Web Access Web-интерфейс для отчет, 98.46kb.
- Point Team Services, входящий в состав ms project Server. Основные термины задача, 197.38kb.
- Член Project Management Institute (pmi). Certified Senior Project Manager (cpm) Сертифицированный, 27.46kb.
- Software Project Management ) (базовый) по направлению: 511600 факультеты: фупм кафедра:, 41.85kb.
- Microsoft Project Portfolio Server Пример внедрения: решение, 374.46kb.
- В 1995 году Рэй Сантилли, лондонский музыкальный киножурналист, выпустил в свет фильм,, 4135.59kb.
- Microsoft Office Project 2007-2010 программа, 121.65kb.
- Одним из лидирующих инструментов планирования бизнеса в условиях рынка, разработки, 42.42kb.
- Исправна, 29.26kb.
P
roject SPINE: OUTPUT 6 – fact sheet n. 15 - 16Інформаційний бюлетень n. 15
Раціональне освітлення 1
Кондиціювання та проектні рішення
Інформаційний бюлетень n. 16
Раціональне освітлення 2
Рішення при впровадженні фотоелектрики
Відновлення будинку для підлітків Don Leandro Rossi-Lodi

Архітектори, які найбільш налаштовані на розгляд факторів і морфологічних характеристик сталої архітектури швидко стали пропагандистами нової архітектурної поетики. В рамках архітектурного дизайну неможливо повністю уникнути змінення форми або навіть змінити її частково, другий варіант повинен бути орієнтований на будівництво нової архітектури, починаючи з нових морфологічних і архітектурних "інгредієнтів ".
Інформаційний бюлетень n. 15
Кондиціювання та проектні рішення
Це дослідження має сприяти збільшенню теоретичного інтересу (варто згадати відому лекцію Р. Банхама) до відображення архітектурних рішень, що витікають із нової енерго-екологіічної парадигми і стосується моментів інтеграції форми будівлі та послуг, що в ній надаються, що є сильним інноваційним інженерним мотиваційним підходом. Цей інтерес не повинен відступати перед фактом, що неминуче деякі стилістичні особливості, які присутні в поточних архітектурних обговореннях будуть застарівати. Показовим прикладом цього явища є Фонд Don Leonardo Rossi’s Casa для неповнолітніх в Лоді, призначений для надання оселі десятьом неповнолітнім з сімейними проблемами. Цей невеликий, але винятковий будинок здається ототожнює злиття трьох директив по проектуванню: функціональної та просторової придатності у зв'язку з конкретною категорією користувачів, економії енергії та експериментальні технологічні інновації, пошук подальших оригінальних архітектурних характеристик. Ці визначення легко читаються в цій архітектурній організації, яка відверто дидактична і вони були втілені шляхом синтезу, який може бути визначений як "вітрувіанський" (від латинського поета Vitruvio).

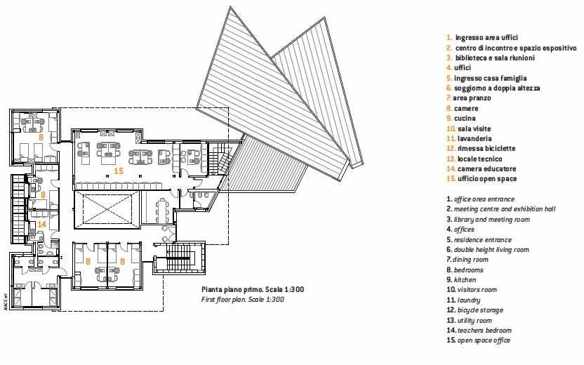
Функціональну і просторову доцільність (користь) можна побачити на плані розміщення, на якому всі житлові кімнати навколо двосвітні, де справжнє місце колективного життя знаходиться у центрі: велика кухня, їдальня, яка була задумана як продовження вітальні і діє як фільтр стосовно огородженого зовнішнього простору, де влітку можна поставити обідній стіл, спальня для дітей і для вчителів, балкон на першому поверсі з видом на вітальню, туалети.

У цій будівлі немає житлових приміщень, в яких не можна було б легко простежити і що не знаходились би під постійним контролем вчителів. Загальні приміщення (конференц-зал, бібліотека і службові приміщення) відокремлені і розділені не тільки за допомогою архітектурної форми і кольору, але і за допомогою незалежного входу до приміщень офісу і конференц-зали, як ззовні так і всередині будівлі.
Енергозбереження та технологічні інновації (що можна розглядати як доповнення до загальних рекомендацій поточної продуктивності будівлі) цілком очевидні на плані приміщення і морфології будівлі. Південна сонячна стіна обладнана фотоелектричними панелями і готова до встановлення теплових сонячних панелей, вона також забезпечує природну вентиляцію через вікно в даху і завдяки двосвітності житлових кімнат; ці доповнення також продемонстровані окремими проектними рішеннями для різних частин оболонки.
Різні технологічні інновації були використані у дизайні цього центру: комбінована конструкція зі сталі і листової деревини; вертикальне огородження, що складається з сендвіч-панелей з дерев'яного листа з додаванням полістиролу і закінчуючи різними типами стін, оснащених отворами для вентиляції, які висять на горизонтальних панелях (ці панелі складаються з 12 см поліуретану і з вентиляційних профілів, які усувають містки холоду), вікна з підвищеною теплоізоляцією (U = 1,1 W/m2K); металева покрівля з тепловою ізоляцією для ефективного перехоплення літом сонячного випромінювання і нахилена всередину, щоб полегшити збирання дощової води для зрошення ділянок і садів; підлога з підігрівом.




Бажання експериментувати з новими технологіями продиктувало прийняття рішення використовувати різні матеріали для вентиляційної оболонки: фіброцемент різного кольору, теракоту і штукатурний розчин заводського виготовлення. Нарешті Вітрувіанська концепція краси, сенс якої завжди дуже нечіткий, завжди дискутується і є упередженим - після обстеження представниками громадськості та фахівців у цій області, отримала задовільну оцінку. Проект додає новизни з точки зору парадигми сталої архітектури, по відношенню до його внутрішнього морфологічного значення. Це робить його не суперечливим по відношенню до свого скромного контексту та стосовно різних функціональних компонентів будівлі.
Задача енергозбереження та підтримання навколишнього середовища була головною для різних інженерних робочих направлень при науковій підтримці Департаменту BEST Міланської Політехніки та виробників, що приймали участь у проекті. Цей проект є експериментальним процесом, який залучив різних виробників і постачальників зацікавлених у сприянні дуже цікавій програмі, а також зацікавлених у тестуванні застосування їх найбільш інноваційних рішень.
Інтегровані гіпсокартонні системи
1
. Прошарки даху:- 12/10 мм алюмінієвий хвилястий лист зовнішньої обшивки
- 120 мм самозагасаючі екструдовані пінополіуретанові ізоляційні панелі
- Вторинна структура: 30x100x50x100x30 мм оцинковані стальні симетричні профілі з товщиною 3 мм
- Основна структура: 25x52x198x52x25 мм
С-образні сталеві профілі холодного віджиму і нахил
45x150x80x150x45 мм
симетричні профілі
- 40 мм панелі з мінеральної вати з щільністю 40 кг/м3
- Гіпсокартонна підвісна стеля з 8/12/50 на якій чередуються отвори і яку підтримує 12,5 мм подвійний металевий каркас
2. Прошарки вертикального огородження:
- 9 мм екологічні фіброцементні панелі, які кріпляться до конструкції скобами і шурупами
- 120 мм самозагасаючі екструдовані пінополіуретанові ізоляційні панелі
- TNT розділовий шару
- 1,5 мм гнучкий синтетичний шар гідроізоляції
- 12,5 мм панель, що складається з інертних матеріалів та цементу, укріплена сіткою зі скловолокна
- Повітря / водо затримуючий бар'єр з поліетиленового волокна
- 40 мм потрійна панель з мінеральної вати з 40 кг/м3 щільністю
- 12,5 мм панель з подвійний покриттям з гіпсокартону зі вставленою пароізоляцією, що складається з алюмінієвої фольги
3. Прошарки підлоги на балконі:
- 40x40x25 мм тротуарної плитки з натурального каменю, що розміщена на округлих пластикових дисках
- 1,5 мм гнучкий синтетичний шар гідроізоляції
- TNT розділовий шар
- 120 мм самозагасаючі екструдовані пінополіуретанові ізоляційні панелі
- 180 мм залізобетонна плита на вертикальній несучій конструкції, що складається зі сталевих колон HEB 200
- Гіпсокартонна підвісна стеля, що підтримується 12,5 мм подвійним металевим каркасом
4. Парапет з оцинкованої сталі:
- Плоскі вертикальні профілі прикріплені болтами на анкерні пластини
- Горизонтальні елементи з 30x60 мм металевими гратами 5. прошарків вертикального огородження.
- 7 мм вологопропускаючої штукатурки
- 80 мм поліуретанові ізоляційні панелі з 20 кг/м3 щільністю
- 12,5 мм панель, що складається з інертних матеріалів та цементу, укріплена сіткою зі скловолокна
- Повітря / водо затримуючий бар'єр з поліетиленового волокна
- 40 мм потрійна панель з мінеральної вати на металевому каркасі з щільністю 40 кг/м3
- 12,5 мм панель з подвійний покриттям з гіпсокартону зі вставленою пароізоляцією, що складається з алюмінієвої фольги
Дизайн сфокусовано на надзвичайно експериментальних елементах, але з використанням будівельних технологій на основі многошарової гіпсокартонної системи (у два шари і покривний шар): композиції зі світла і функціональні спеціальні матеріали були використані для створення технічних елементів, і вони були зібрані двосторонніми методами. Аналогічні процеси дозволяють знизити енергію, використовувану для будівництва будівлі, а також дозволяють робити швидкий монтаж на місці, оптимізують матеріали, забезпечують легкість у проведенні ремонтних робіт і технологічних оновлень. На додаток до цього можна вибірково видаляти компоненти з будівлі і утилізувати їх. Структура це генеративний елемент цієї системи: вона включає в себе процес будівництва, який вже випробуваний і оснований на приєднаних болтами з’єднаних панелях, які були піддані холодному штампуванню та згинанню і які з’єднанні для того, щоб сформувати суміжний каркас з малими відсіками (це називається розсіяною структурою) для заміни традиційної "крапкової "структури.
Система була розроблена для забезпечення ефективного управління етапом будівництва завдяки легким компонентам, простим з’єднанням та можливості різання та оброблення профілів на місці; зведення цього проекту була завершено лише за 7 днів .
Змішана структура, що складається із сталевих колон і листових дерев’яних балок була використана для іншої частини комплексу разом з інноваційною системою для структурних з’єднань, що дозволяють посилити каркас, не вдаючись до традиційних скоб.

Інформаційний бюлетень n. 16
Раціональне освітлення 2
Рішення при впровадженні фотоелектрики
Контроль надходження сонячної енергії
І
снують різні системи, які регулюють внесок сонячної енергії у зниження енергоспоживання будівлі в літній і зимовий періоди. Похилий дах (крила), що спроектований вгору до 2,20 м і фасад (загальний підкіс близько 3,50 м) роблять природне затінення влітку у спекотні години, коли сонячне випромінювання знаходиться на піку і дозволяє використовувати вільні надходження сонячної енергії протягом зимових місяців.Тестування технологічних рішень для фасаду привело до розробки нової огороджувальної системи для захисту прозорого вертикального приміщення: "технологічний затвор", що найближчим часом буде встановлено дозволить збільшити, при закриті, теплову ізоляцію та контролювати випромінювання сонячного світла (світловий потік і теплове випромінювання). Система складається з алюмінієвої рами і тонкої регульованої лопаті зробленої з панелей з фіброцементу (що нагадує тонку оболонку фасаду) та полістиролу. Це має подвійну функцію: огородити від сонячної радіації дві складові частини - вертикальну і горизонтальну. Вертикальне випромінювання огороджено завдяки орієнтації лопатей, у той час як горизонтальне зменшується блокувальною системою, що дозволяє затвору відкриватись назовні.
Світловий люк у центрі даху двосвітної вітальні забезпечує протягом дня хороший світловий комфорт (500 люкс), таким чином зменшується споживання енергії завдяки штучному освітленню. Щоб уникнути перегріву і будь-якого парникового ефекту на зовнішні роликові віконниці були встановлені датчики, які контролюють необхідність світла і падаючого випромінювання. Цей пристрій робить непотрібною будь-яку систему охолодження.
1
. сонячні прошарки стіни:- 10/10 мм фальшпанелі зроблені з попередньо пофарбованого сірого спресованого, вигнутого і з формою алюмінієвого листа
-1622x814x40 мм фотоелектричні панелі з сонячними батареями , що з'єднані послідовно і складаються з монокристалічного кремнію
2. Прошарки даху:
- 1,5 мм гнучкий синтетичний шар гідроізоляції
- TNT розділовий шар
- 120 мм самозагасаюча екструдована пінополіуретанова ізоляційна панель
- нахилена залізобетонна стяжка з дуговим зварюванням сталевої сітки
- вторинна конструкція: 50 мм низьке ламінарне дерев’яне перекриття, 150 мм полістирол, 50 мм бетонна стяжка
- основна конструкція: 200x320 мм, 200x360 мм, 200x440 мм ламінарні балки з сосни зі змінним перетином
3. 4 +12 +4 мм пофарбовані алюмінієві вікна з низько емісійним склом і опалубка з оцинкованого листа; електричні роликові жалюзі
4. вертикальне огородження
5. внутрішніх прошарки підлоги:
- 2 мм гумова підлога
- 40 мм бетонна стяжка змішана з
домішка
- 120 мм стяжка легкого бетону
- 250 мм дерев'яний вторинний каркас
- сосновий основний каркас
6. (3+3)+12+(3+3) мм складане вікно з 6 віконницями і в горі з заскленою фрамугою, що відкривається, каркас виготовлений з пофарбованого алюмінію з подвійним термальним, низько емісійним склом, яке не б'ється і опалубка з оцинкованого листа.



Проект, підрядники, постачальники:
Головні підрядники: Lodi Costruzioni, Cornegliano Laudense (Lo); Будівництво та менеджери проекту: Matteo Ruta, Matteo Brasca; Команда: Gabriele Masera, Marco Bonomi, Davide Dell’Oro, Andrea Vanossi; Консультанти: Giuseppe Turchini, Sergio Croce, Niccolò Aste, Lavinia Tagliabue; Дизайн дерев’яної конструкції: Woodengineering Gruppo Nulli - Giovanni Spatti; Дизайн сталевих та залізобетонних конструкцій: Francesco Iorio; Massimo Pradelli; Aiace Srl - Oscar Pagani; Технічне обслуговування і охорони здоров'я: Digierre3 - Ferruccio Galmozzi; Дизайн електропроводки: Massimo Forlani
Ізоляція оболонки: Brianza Plastica - www.brianzaplastica.it; Огорожа та перегородки: Vanoncini spa - www.vanoncini.it; Оболонка з фіброцементу: Edilit spa - www.edilit.com; Гідроізоляційні матеріали: Sika-Sarnafil - www.sika.it/roofing; Електричні системи: Forlani impianti - www.forlani.it; Дерев’яні вікна: Faliselli - www.faliselli.it; Алюмінієві вікна: Chiari Bruno - www.chiaribruno.it; Встановлення технічного обслуговування: Termoidraulica; Змішані сталево-дерев’яні конструкції і перегородки: Woodbeton - www.woodbeton.it; Санітарно-технічні вироби та оздоблення: Ideal Standard - www.idealstandard.it; Дерев’яний і гумовий настил: Mondo - www.mandoworldwide.com; Штори: Resstende - www.resstende.com; сонячна стінна огорожа: Seccosistemi - www. seccosistemi.it




Project funded by the European Union 