Рекомендации авок р нп "авок" 1-2008 квартирные тепловые пункты в многоквартирных жилых домах apartment heating units in multicompartment buildings
| Вид материала | Реферат |
- Положение о порядке переустройства и перепланировки жилых помещений в многоквартирных, 658.77kb.
- Об организации переустройства и (или) перепланировки жилых и нежилых помещений в многоквартирных, 1011.57kb.
- В. В. Ильин (ооо «Лой энд Хутц Рус») руководитель; > М. М. Бродач, канд техн наук,, 1246.39kb.
- Мессе Дюссельдорф Москва» Научно-исследовательский институт строительной физики (ниисф), 97.42kb.
- Статья опубликована в журнале aвок Е. О. Шилькрот, вице-президент нп «авок», 75.98kb.
- Предлагаемый порядок накопления и использования денежных средств собственников жилых, 79.42kb.
- Дома, многоквартирные, многоэтажные, 28.25kb.
- Рекомендации по подготовке и проведению общих собраний собственников помещений в многоквартирных, 301.75kb.
- Правительство российской федерации, 1863.05kb.
- Администрация города балаково постановление 21 сентября 2011 №897, 27.45kb.
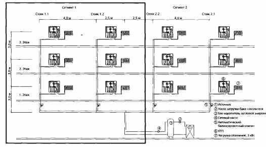
| Г.6 Расширение сегмента расчета Г.6.1 После получения расчетных параметров подключения первого сегмента (стояка, этажа) к нему добавляется участок, содержащий группу КТП следующего стояка/этажа (до места слияния с последующим участком). Далее расширенный сегмент рассматривается в совокупности (рисунок Г.18). ![]() Рисунок Г.18 - Расширение рассматриваемого сегмента Г.6.2 Определяется коэффициент одновременности потребления горячей воды для расширенного сегмента. Для рассматриваемого примера коэффициент одновременности составляет 3 (согласно диаграмме на рисунке Г.8). Г.6.3 Согласно изложенной в Г.4.1 методике определяются расчетные диаметр магистрали, расход теплоносителя и требуемый перепад давления в точке подключения рассматриваемого сегмента. С учетом коэффициента одновременности ГВС (рисунок Г.19) расчетный расход теплоносителя в точке подключения расширенного сегмента составляет: Gceгм = 3735 + 3131,54 = 2599,62 л/ч. ![]() Рисунок Г.19 - Определение коэффициента одновременности ГВС и расчетных расходов теплоносителя для расширенного сегмента Так как в рассматриваемом примере стояки абсолютно симметричны, то также одинаковы параметры в точках их подключения к распределительной магистрали. При несимметричной схеме требуется отдельно производить расчет для каждого стояка (ответвления). Примечание - Рекомендуется принимать запас по гидравлическому сопротивлению на случай несоответствия монтажной схемы проектной. Принимается на усмотрение проектировщика. ![]() Рисунок Г.20 - Определение расчетных параметров участков системы для расширенного сегмента ![]() Рисунок Г.22 - Диаграммы «Коэффициент одновременности потребления горячей воды в зависимости от количества квартир рассматриваемого участка»: а - количество квартир 15-45; б - количество квартир 45-100; в - количество квартир 100-200 В случае применения диаграммы одновременности Г.8 расчетный расход для всего здания составляет 3 кв 12 л/мин. = 36 л/мин. Вывод: данные применяемой диаграммы совпадают с российскими нормами. Г.6.5.2 Расчет системы ХВС производится согласно СНиП 2.04.01-85* «Внутренний водопровод и канализация зданий». При этом стояк ХВС проектируется с учетом расчетной пропускной способности по холодной воде и воде для дальнейшего нагрева. Суммарный расчетный расход теплоносителя с учетом одновременности ГВС для всего здания составляет: Gcyм = 3735 + 9131,54 = 3388,86 л/ч. Согласно Г.4.1 выполняется полный расчет финального участка сети теплоснабжения. Г.6.6 Для выполнения расчета принималось: - материал трубопроводов внутридомовой сети теплоснабжения - медь; - расчетная скорость на участках не выше 0,8 м/с; - запас на погрешность расчетов и возможное несоответствие монтажной и проектной схем 30 %. Г.6.7 Результаты расчета Расчетный перепад давления в системе: 0,3802 бар. Расчетный расход теплоносителя в системе: 3388,86 л/ч. По полученным параметрам производится подбор сетевого насоса системы 4 рисунка Г.23. ![]() Рисунок Г.23 - Завершенный расчет схемы СТС с КТП Приложение Д (справочное) Расчет бака-накопителя тепловой энергии и определение расчетной тепловой мощности источника теплоснабжения для систем с малой тепловой аккумулирующей способностью при применении схемы с КТП Характерной особенностью применения схемы с КТП является резкопеременный режим работы системы при возникновении пиковой нагрузки ГВС, которая характеризуется высокими параметрами потребляемой тепловой мощности при проточном нагреве воды для хозяйственно-бытовых нужд. Для систем теплоснабжения высокой теплоаккумулирующей способности этот фактор не принимается во внимание, т.к. сама система выполняет роль аккумулятора тепловой энергии и позволяет избежать «провалов» тепловой мощности в системе при возникновении пикового режима ГВС. Однако для систем с малой суммарной расчетной тепловой нагрузкой (ориентировочно до 500 кВт) пиковый режим ГВС ведет к снижению температуры обратной линии, что при малой емкости системы и мощности источника ведет к снижению температуры подающей линии и, соответственно, снижает комфорт ГВС. Поэтому для систем малой тепловой емкости, например при применении КТП в проектах таун-хаусов с пристроенной котельной или для обеспечения функции ГВС или станций ГВС в частных домах с собственной котельной, необходимо применять буферную емкость теплоносителя (при малой емкости самой системы). Рассмотрим пример расчета необходимой емкости бака-аккумулятора тепловой энергии для схемы объекта, рассмотренного в приложении Г. Д.1 Исходные данные Количество потребителей (квартир): 12 кв. Коэффициент одновременности ГВС: 3 кв. Расчетная отопительная нагрузка для 12 квартир, расчетным теплопотреблением на отопление помещений 3 кВт каждая: 123 = 36 кВт. Расчетная тепловая мощность для обеспечения режима ГВС одной квартиры: 38 кВт, что соответствует потреблению 12 л/мин. горячей воды температурой 50 °С (рисунок Б.1). При этом средняя тепловая мощность для ГВС составляет 15 кВт (5 л/мин) (рисунок Д.1). Средняя продолжительность одного критического разбора горячей воды составляет (европейские опытные данные): 5 мин. (при длительности максимального водоразбора 3 мин. (рисунок Д.2)). Время реакции источника теплоснабжения при возникновении пикового режима ГВС в системе (включение на полную мощность): 3 мин. Максимально допустимое понижение температуры подающей линии при возникновении пикового режима ГВС в системе: 10 °С (температура подающей линии для летнего температурного графика не ниже 55 °С). Д.2 Расчет требуемой тепловой энергии для обеспечения пикового режима ГВС Из исходных данных получаем количество требуемой тепловой энергии для обеспечения пикового режима ГВС: 3 кв. 38 кВт/кв. 5 мин. = 570 кВтмин. Д.3 Расчет объема теплоносителя для покрытия потерь энергии системы при пиковом режиме ГВС V = A/(CpT), где V - объем теплоносителя, л; А - тепловая энергия, кВтмин; Cp - теплоемкость воды, кВтч/(кгК); - плотность воды, кг/л; T - допустимое понижение температуры, °С. V = 570 кВтмин / (1,163 10-3 кВтч/(кгК) 0,9805 кг/л 10К 60 мин) = 833 л. Примечание - На усмотрение проектировщика в расчетах можно также учитывать емкость источника теплоснабжения и магистральных трубопроводов. Д.4 Расчет дополнительной мощности источника для покрытия пикового режима ГВС в системе с КТП Согласно европейским нормам, восстановление тепловой энергии системы не должно превышать 10 мин. для покрытия возникновения следующего пикового режима ГВС. N = А / (нормативное время загрузки) = 570 кВтмин / 10 мин. = 57 кВт. Д.5 Определение потерь тепловой энергии системы при пиковом режиме ГВС с учетом времени реакции источника и его включении на полную мощность (5 - 3 = 2 мин.): 570 - 572 = 456 кВтмин. Д.6 Выполняется уточнение объема буферной емкости: V = 456 кВтмин / (1,163 10-3 кВтч/(кгК) 0,9805 кг/л 10 К 60 мин) = 666,5 л. Д.7 Для рассмотренной схемы примера получаем: - расчетная мощность источника теплоснабжения должна составлять: 93 + 57 = 84 кВт; - расчетная емкость буферного накопителя теплоносителя - 666,5 л (750) л. ![]() Рисунок Д.1 - Диаграмма потребления горячей воды одним потребителем при пиковом режиме ГВС (согласно исследованиям института теплоэнергетики г. Дрезден для 32-квартирного дома с применением схемы с КТП) ![]() Рисунок Д.2 - Диаграмма «Частота длительности одного разбора горячей воды» (согласно исследованиям института теплоэнергетики г. Дрезден для 32-квартирного дома с применением схемы с КТП) Ключевые слова: квартирные тепловые пункты, КТП, приборы отопительные, система отопления, система децентрализованного ГВС, станции ГВС, многоквартирный жилой дом |







