Методические указания к выполнению курсового проекта по дисциплине «Металлические конструкции, включая сварку» для студентов специальности «Промышленное и гражданское строительство» всех форм обучения
| Вид материала | Методические указания |
- Методические указания по изучению дисциплины и выполнению курсового проекта для студентов, 717.64kb.
- Технология возведения монолитных зданий методические указания к выполнению курсового, 647.04kb.
- Методические указания к выполнению курсового проекта по дисциплине «Микропроцессорные, 194.17kb.
- Пищевых продуктов проектирование торговых предприятий методические указания к выполнению, 253.91kb.
- Методические указания по выполнению курсового проекта для студентов всех форм обучения, 363.24kb.
- Методические указания к выполнению курсового проекта по дисциплине «Технология машиностроения», 629.41kb.
- Методические указания к выполнению курсового проекта для студентов специальности 290300, 119.98kb.
- Методические указания к выполнению курсового проекта Красноярск 2002, 2057.27kb.
- Методические указания к курсовому проекту по дисциплине «технология строительных процессов», 344.43kb.
- Методические указания к выполнению курсового проекта по учебной дисциплине "Управленческого, 430.87kb.
Министерство образования и науки Российской Федерации
Федеральное агентство по образованию
Саратовский государственный технический университет
Балаковский институт техники, технологии и управления
ПРОЕКТИРОВАНИЕ ПОДКРАНОВЫХ
КОНСТРУКЦИЙ
Методические указания к выполнению курсового проекта
по дисциплине «Металлические конструкции, включая сварку»
для студентов специальности
«Промышленное и гражданское строительство»
всех форм обучения
Одобрено
редакционно-издательским советом
Балаковского института техники,
технологии и управления
Балаково 2009
ВВЕДЕНИЕ
Компоновка поперечной рамы и проектирование подкрановых конструкций выполняются на начальных этапах разработки курсового проекта по теме “Стальной каркас одноэтажного производственного здания”. При этом компоновка подкрановых конструкций и компоновка стальной поперечной рамы каркаса тесно взаимосвязаны и должны рассматриваться совместно. В связи с тем, что при компоновке конструктивной системы каркаса одноэтажного производственного здания, оборудованного мостовыми кранами, студенты встречаются с определенными трудностями, указанные вопросы в данных методических указаниях рассматриваются достаточно подробно.
Методические указания предназначены для студентов всех форм обучения специальности “Промышленное и гражданское строительство”. Их целью является оказание практической помощи студентам в процессе работы над проектом стального каркаса одноэтажного производственного здания. Кроме того, использование настоящих методических указаний должно способствовать закреплению теоретического материала и углубленному пониманию работы подкрановых конструкций.
Методические указания составлены в соответствии с программой курса “Металлические конструкции, включая сварку” специальности ”Промышленное и гражданское строительство”.
В данных методических указаниях значительный объем занимают вопросы расчета и проектирования подкрановых конструкций: стальной подкрановой балки, тормозной конструкции и их элементов. Подкрановые балки являются ответственными элементами конструктивной системы одноэтажного производственного здания, от надежности которых, в первую очередь, зависит безопасная эксплуатация подъемно-транспортного оборудования (мостовых кранов). В связи с этим изучение вопросов действительной работы, расчета и проектирования подкрановых конструкций имеет важное значение в процессе профессиональной подготовки инженера-строителя.
При проектировании подкрановых конструкций должны быть решены следующие вопросы:
- компоновка подкрановых конструкций в составе каркаса здания;
- определение нагрузок на подкрановые конструкции, установление опасного положения подвижных нагрузок, передаваемых кранами, вычисление расчетных усилий в элементах подкрановых конструкций;
- вычисление основных размеров подкрановой балки из условий прочности и жесткости;
- проверка прочности и устойчивости подкрановой балки и ее элементов.
В курсовом проекте разрабатывается конструктивное решение стальной поперечной рамы c жестким сопряжением ригеля-фермы со ступенчатыми стальными колонами. Последовательность компоновки поперечной рамы и проектирования подкрановой балки иллюстрируется соответствующими численными расчетами.
При расчетах и конструировании элементов стального каркаса следует руководствоваться действующими нормами проектирования строительных конструкций.
- КОМПОНОВКА ОДНОПРОЛЕТНОЙ СТАЛЬНОЙ
ПОПЕРЕЧНОЙ РАМЫ
- Исходными данными для компоновки поперечной рамы являются:
L – пролет, м;
ℓ – шаг поперечных рам, м;
Н 1 – отметка головки рельса (расстояние от уровня чистого пола до верха кранового рельса, м):
Q – грузоподъемность мостовых кранов, т.
Число мостовых кранов – не менее двух, в задании указывается группа режима работы кранов.
В курсовом проекте разрабатываются конструктивные системы стальных каркасов с шагом поперечных рам ℓ = 12 м.
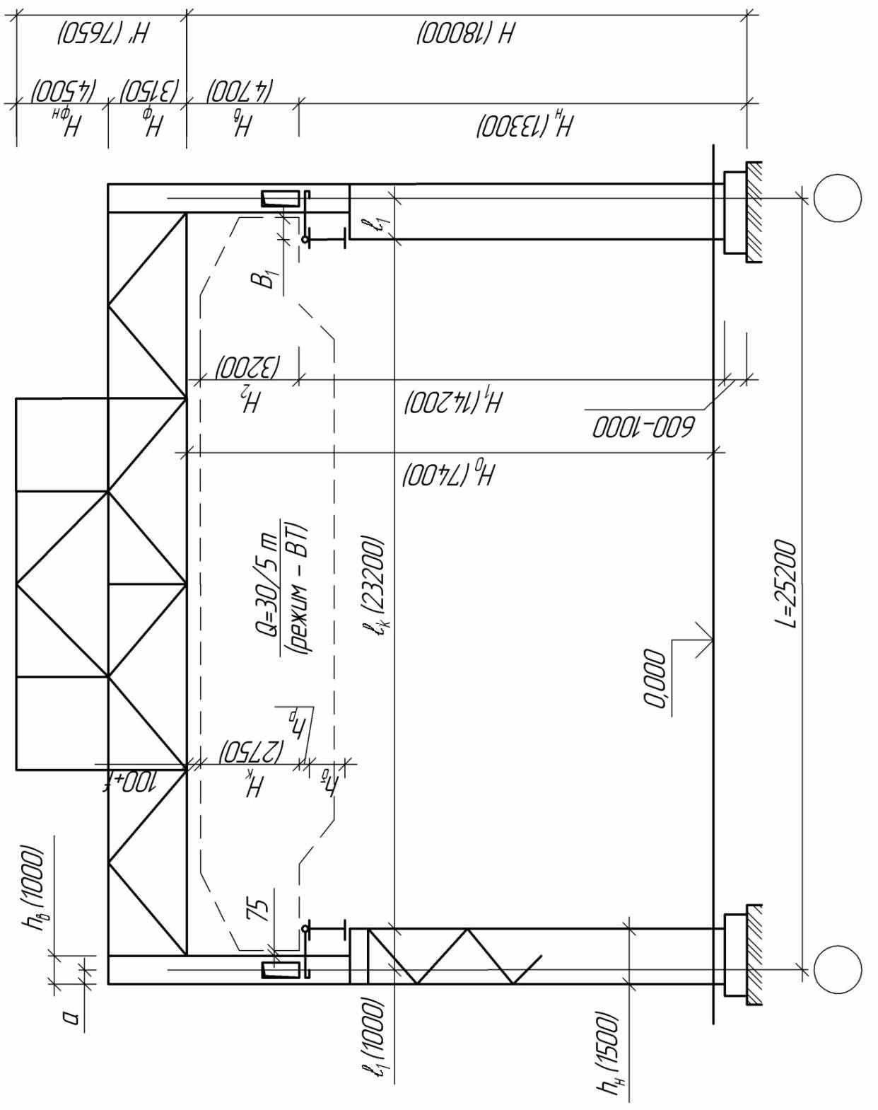
Компоновочная схема рамы показана на рис.1.
Габаритные размеры поперечной рамы по вертикали определяются технологическими условиями производственного процесса.
1.2.Устанавливаются основные вертикальные размеры рамы:
Н1 – расстояние от головки кранового рельса до уровня пола (указывается в задании);
Н2 – расстояние от головки кранового рельса до низа несущих конструкций покрытия; Н2 = Нк + а1 + ƒ ,
где Нк – высота мостового крана, принимаемая по прил.1[1] в зависимости от пролета здания и грузоподъемности крана;
ƒ– размер, учитывающий возможные перемещения (прогибы и др.) конструкций покрытия и принимаемый в зависимости от величины пролета (ƒ = 200 - 400 мм);
а1 – зазор между тележкой крана и конструкциями покрытия, принимаемый равным 100 мм.
Размер Н2 рекомендуется принимать кратным 200 мм.
Высота цеха от уровня пола до низа стропильных ферм
Н0 = Н1 + Н2.
Размер Н0 принимается кратным 1,2 м при высоте цеха до 10,8 м; при большей высоте – кратным 1,8 м. Связано это с применением типовых ограждающих конструкций цеха. Допускается принимать Н0 кратным 0,6 м. Для выполнения указанных условий следует (при необходимости) несколько увеличить размер Н1, а размер Н2 оставить минимально необходимым.
Устанавливают размеры верхней и нижней частей колонны:
Нв= hб + hр + Н2;
Нн = Н0 – Нв + (600…1000),
где hб – высота подкрановой балки, предварительно принимаемая равной (1/8 – 1/10)ℓ;
ℓ - пролет балки (шаг колонн);
hр- высота кранового рельса, принимаемая предварительно равной 200 мм; можно принимать hб и hр по приложению 1 [1];
(600…1000) мм – заглубление опорной плиты башмака колонны ниже нулевой отметки пола.
Высота колонны рамы Н от низа опорной плиты базы до низа фермы:
Н = Нв + Нн.
Окончательно размеры Нв и Нн уточняются и при необходимости корректируются после рассчета подкрановой балки (см. раздел 4).
Высота участка колонны в пределах опорной зоны ригеля Нф зависит от принятой конструкции стропильных ферм и пролета здания; высота Нфн определяется светотехническим или теплотехническим расчетом с учетом высот типовых фонарных переплетов ([1], с. 335).
1.3. Устанавливаются основные горизонтальные размеры рамы
Расстояние от оси подкрановой балки до оси колонны должно составлять ℓ1 ≥ В1 + ( hв – а ) + 75,
где В1 – размер части кранового моста, выступающей за ось рельса, принимаемый по ГОСТ на краны (см. прил.1 [1]);
5 мм – зазор между краном и колонной, обеспечивающий безопасную эксплуатацию кранов;
а – привязка наружной грани колонны к оси колонны, которая принимается равной 250 или 500 мм; привязка а = 500 мм принимается для относительно высоких зданий с кранами грузоподъемностью 100 т и более, а также в случаях, когда в колоннах предусматривается устройство проемов для прохода обслуживающего краны персонала;
hв – высота сечения верхней части колонны, которая принимается равной 450, 700 или 1000 мм; при этом верхняя часть колонны проектируется сплошная, двутаврового сечения.
Высота сечения верхней части ступенчатой колонны hв должна составлять из условия жесткости не менее 1/12 ее высоты Hв. Габариты прохода: ширина – 400 мм, высота – 2000 мм. Если проход располагается в стенке колонны, то hв следует принимать равным 1000 мм. Размер ℓ1 должен быть кратным 250 мм.
Высота сечения нижней части колонны:
Hн = ℓ1 + а;
при этом по условию обеспечения жесткости hн ≥ (1/20) Н, а в цехах с интенсивной работой мостовых кранов (для групп режимов работы мостовых кранов 8К, 7К) – hн ≥ (1/15)·Н.
Нижнюю часть колонны рекомендуется проектировать сплошной при hн ≤ 1 м, а при hн > 1 м более экономичной является сквозная колонна.
Пример 1. Компоновка поперечной рамы. Исходные данные: однопролетный цех пролетом 25,2 м, оборудован двумя мостовыми кранами грузоподъемностью 30/5 т весьма тяжелого (ВТ) режима работы. Группа режима 8К. Отметка головки рельса Н1 =14,2 м. Здание отапливаемое.
Схема поперечной рамы и ее элементов показана на рис. 1.
Вертикальные размеры: (Нк =2750 мм по прил. 1 [1])
Н2 = 2750 + 100 + 300 = 3150 мм; принимаем Н2 = 3200 (кратно 200 мм);
Н0 = 14200 + 3200 = 17400 мм ;оставляем Н0 = 17400 мм (кратно 600 мм ).
![]() | Рис.1. Схема компоновки поперечной рамы |
Высоту балки и рельса ориентировочно принимаем равными:
hб = 1/9·12000 ≈ 1300 мм; hр = 200 мм.
Высота верхней части колонны:
Нв = 1300 + 200 + 3200 = 4700 мм.
Высота нижней части колонны:
Нн = 17400 – 4700 + 600 = 13300 мм.
Полная высота колонны:
Н = 4700 + 13300 = 18000 мм.
Принимаем высоту фермы Нф = 3150 мм (L > 24м) и высоту фонаря Нфн = 4500 мм.
Горизонтальные размеры. Так как группа режима крана 8К, то необходим проход для осмотра и ремонта путей, который проектируем в стенке верхней части колонны, шириной 400 мм и высотой 2000 мм. Привязку колонн к оси принимаем равной а =500 мм, а высоту сечения верхней части колонны hв = 1000 мм; при этом
hв > (1/12)Нв = 4700/12 + 3900 мм;
В1 = 300 мм (см.прил.1 [1] );
min ℓ1 = 300 + (1000 - 500) + 75 = 875 мм.
Назначаем ℓ1 = 1000 мм (кратно 250 мм).
Высота сечения нижней части колонны
hн = 1000 + 500 = 1500 мм,
при этом для кранов с интенсивной работой
hн ≥ (1/15)·Н = 18000/15 = 1200 мм.
Пролет мостового крана:
ℓк = L1 - 2ℓ1 = 25200 - 2∙1000 = 23200 мм.
Сечение верхней части колонны назначаем сплошным в виде составного сварного двутавра, сечение нижней части – сквозным (т.к. hн > 1 м).
- РАСЧЕТ ПОДКРАНОВОЙ БАЛКИ
- Нагрузки на подкрановую балку
- Нагрузки на подкрановую балку
По прил.1 [1] в зависимости от грузоподъемности крана Q находятся максимальное вертикальное давление колеса крана Fкн, вес тележки Gт, тип кранового рельса.
Расчет подкрановых конструкций по несущей способности производится на нагрузки от двух сближенных кранов, тележки которых с подвешенными грузами приближены к одному из рядов колонн, так что на подкрановую балку действуют максимальные вертикальные нагрузки, при этом одновременно на подкрановые конструкции передаются колесами крана максимальные горизонтальные поперечные нагрузки.
На рис.2а приведена схема крановых нагрузок. Расчетные значения вертикальных и горизонтальных сил определяются по формулам:
Fк= γн ∙ k 1∙ γf ∙ψ ∙Fкн; Тк= γн∙k2∙ γf ∙Ψ∙Ткн,
где γn – коэффициент надежности по назначению, γn=0,95;
ki – коэффициенты динамичности, учитывающие ударный характер нагрузки при движении крана. При шаге колонн не более 12 м k1 принимается равным 1, 2 для групп режима 8К; 1,1 для групп режима 6К, 7К. Коэффициент k2 принимается равным 1,1 при кранах режима 8К. Во всех остальных случаях значения k1 и k2 принимаются равными 1,0.
γf – коэффициент надежности по нагрузке, γf=1,1;
Ψ – коэффициент сочетания принимается в зависимости от режима работы крана и количества кранов. При учете двух кранов Ψ=0,95 для групп режимов кранов 7К, 8К; Ψ=0,85 для групп режимов кранов 1К – 6К ([1], с.288);
Fкн – максимальное давление колеса крана;
Ткн – нормативное значение горизонтальной силы, передаваемой колесом крана при торможении тележки.

































































Fk Fk
а
Tk Tk
В3 К(5100) В3
В2(6300)
ℓ1
Fк Fк Fк Fкб
Fк Fк Fк Fк
ℓ2
ℓ3
-
y2(2,4)
y1(3)
y3(0,45)
ℓ/2 ℓ/2
ℓ(12000)

Fк Fк Fкв
-
y/1(1)
y/2 (0,9)
y/3(0,75)
ℓ(12000)
Рис. 2. К определению нагрузок на подкрановую балку: а – схема действия нагрузок
от сосредоточенного давления крана; б – расположение колес крана при определении максимального изгибающего момента; в – расположение крана при определении
максимальной поперечной силы
Сила Ткн определяется по формулам:
при кранах групп режимов 4К – 6К (легкого и среднего режимов работы):
Ткн = 0,05(9,8Q+Gт)/no – для кранов с гибким подвесом груза;
Ткн = 0,1(9,8Q+Gт)/no – для кранов с жестким подвесом груза;
no – число колес с одной стороны крана;
при кранах тяжелого и весьма тяжелого режимов работы (групп режима 7К, 8К): Ткн = 0,1 Fкн.
В рассматриваемом примере: для крана грузоподъемностью Q = 30/5т весьма тяжелого режима работы (группа режима 8К) максимальное вертикальное давление колеса Fкн = 326 кН, вес тележки Gт = 125кН, тип кранового рельса КР–70 (пролет здания ≈24 м).
Fк=0,95∙1,2∙1,1∙0,95∙326=388 кН;
ηк=0,1∙326=32,6 кН;
Тк=0,95∙1,1∙1,1∙0,95∙32,6=35,6 кН.
- Определение расчетных усилий
Подкрановые конструкции работают на действие подвижной нагрузки. Расчетные усилия (изгибающие моменты и поперечные силы) в подкрановых балках находятся от нагрузок, передаваемых двумя сближенными кранами (см. выше), при этом положение нагрузки, соответствующее максимальным значениям расчетных усилий, будут различными для М и Q.
Согласно правилу Винклера, в однопролетной разрезной балке наибольший изгибающий момент от системы сосредоточенных сил возникает, когда равнодействующая всех сил, находящаяся на балке, и ближайшая к ней сила располагаются на равных расстояниях от середины пролета балки; при этом сечение, в котором момент является максимальным, находится под силой, ближайшей к середине пролета.
В практических расчетах можно принимать, что максимальный изгибающий момент соответствует середине пролета балки (погрешность не превышает 2 %), в этом случае значение Мmax удобно находить, пользуясь линией влияния изгибающего момента в середине пролета балки (см. рис.2б).
Расчетные изгибающие моменты от вертикальной и горизонтальной нагрузок определяются по формулам:
Мx = α∙Мx, max = α∙ΣFк∙yi = α∙Fк ∙Σyi;
Мy = My,max = ΣTk∙yi = Tk∙Σyi.
Наибольшая поперечная сила Qmax в разрезной балке будет при таком положении нагрузки, когда одна из сил находится непосредственно у опоры, а остальные как можно ближе к этой же опоре (см. рис. 2в).
Расчетные поперечные силы Qx и Qy от вертикальной и горизонтальной нагрузок определяются по формулам:
Qx=α∙ΣFк∙yi/= α∙Fк ∙Σyi/;
Qy= ΣTk∙yi/=Tk∙Σyi/,
где α – коэффициент, учитывающий влияние собственного веса подкрановых конструкций и временной нагрузки на тормозной площадке; для балок пролетом 12 м – α =1,05 ; 6 м – α =1,03 ([1], с.372);
yi, yi/ - ординаты линий влияний Мс и Q.
В рассматриваемом примере: для балки ℓ=12 м:
Σyi = 3+2,4+0,45=5,85 м; Σyi/=1+0,9+0,475=2,375 м.
Мx = 1,05∙388∙5,85=2383 кН∙м; Мy=35,6∙5,85=208 кН∙м;
Qx = 1,05∙388∙2,375=968 кН; Qy=35,6∙2,375=84,6 кН.
- Подбор сечения подкрановой балки
2.3.1. Проектируется подкрановая конструкция, включая сварную подкрановую балку симметричного двутаврового сечения и тормозную конструкцию, состоящую из листа рифленной стали и окаймляющего швеллера. При пролете подкрановых балок 12 м рекомендуется выполнять тормозную конструкцию из листа толщиной 6 мм и швеллера № 36-40, при пролете подкрановых балок 6 м – из листа толщиной 5-6 мм и швеллера № 16…18.
Условие общей прочности подкрановой балки может быть записано в виде соотношения:
,где β – коэффициент, учитывающий влияние горизонтальных поперечных нагрузок на увеличение напряжения в верхнем поясе подкрановой балки.
Значение коэффициента β определяется по формуле:

где hб – высота подкрановой балки, принимаемая предварительно равной
hб = (1/8…1/10) ℓ;
hт – ширина сечения тормозной конструкции, hт≈hн (hн – размер сечения нижней части колонны, назначенный при компоновке поперечной рамы).
Вычислив β, находим из условия общей прочности подкрановой балки требуемый момент сопротивления
.При определении Wхтр коэффициент условия работы γс принимается равным 1. Пластические деформации при расчете подкрановых балок не учитываются.
В рассматриваемом примере:
Принимаем подкрановую балку в виде симметричного сварного двутавра; тормозной конструкции из рифленой стали толщиной t=6 мм и швеллера № 36 (рис.3).
hб
(1/9)∙ℓ = 12000/9 ≈ 130 см; hт = hн = 1,5 м;β=1+2∙(208/2383333)∙(1,3/1,5)=1,15.
При расчетном сопротивлении стали Ry = 24 кН/см2
Wхтр=238300∙1,15 /24∙1=11420 см3.
аТормозная балка
30
Подкрановая балка hв
Колонна
500 1000
y bf (360)tл×bл (6×126)
70 40 40 bf/2
А tf (20)
б 36 x2(770)
xA(853)
zo=27 x1(1443)
xo(673)
x x hw(1260)
hb(1300)
y
tw(10)
30
hн(1500) tf
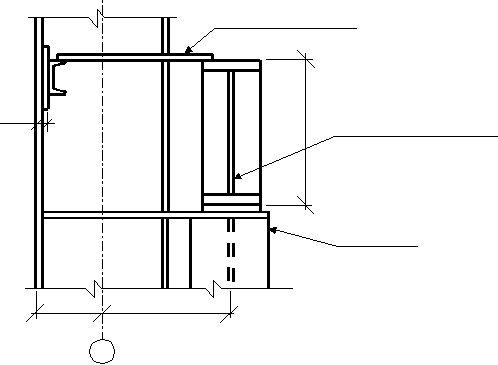
Рис. 3. К определению геометрических характеристик подкрановой балки:
а – сопряжение балки с колонной; б – конструктивная схема балки
2.3.2. Определяется оптимальная и минимальная высота подкрановой балки.
Оптимальная высота балки находится по формуле:

где λw – гибкость стенки, равная отношению ее высоты к толщине; значение λw рекомендуется назначать по табл. 7.2 [1] (в зависимости от высоты hб).
Минимальная высота балки находится по формуле:
,где Мxn – нормативное значение изгибающего момента при загружении балки одним краном,
Mxn = γn∙FkH∙(y1+y3);
E – модуль упругости стали, E=2,06∙104 кН/см2;
– величина, обратная предельно допустимому относительному прогибу и зависящая от режима работы кранов ([1], с.380).Высота балки должна удовлетворять условию:
hmin ≤ hб ≤ hopt.
В целях унификации высота балки hб принимается кратной 100 мм и согласуется с высотой балки, принятой при компановке поперечной рамы.
При необходимости вносятся соответствующие коррективы в компоновочные размеры рамы.
Определяется высота стенки:
hw = hб - 2tf,
где tf – толщина полки, принимаемая равной 16-22 мм (см. табл. 5 приложения 14 [1]).
В рассматриваемом примере:
y1+ y3 = 3+0,45 = 3,45 м;
Mxn = 0,95∙326∙3,45 = 1068,5 кН∙м.
Группа режима работы кранов – 8К (весьма тяжелый режим работы), поэтому принимаем
= 600. Согласно табл. 7.2 [1] λw=130.Оптимальная высота:

Минимальная высота балки:
= 68 см.Принимаем hб = 130 см (кратно 10 см). Это удовлетворяет условию
hmin < hб ≤ hopt.
Задаемся толщиной полок tf = 20 мм, тогда высота стенки
hw=130 - 2∙2 = 126 см.
Требуемая толщина стенки из условия среза силой Qx определяется:
,где Rs – расчетное сопротивление стали срезу, принимаемое равным 0,58 Ry или по прил.4 [1].
Толщина стенки должна быть согласована с рекомендациями табл.7.2 и данными табл.5 приложения 14 [1]. Если фактическое значение гибкости стенки
отличается от первоначально принятого значения λw более чем на 5%, то производится уточнение hopt c учетом фактической гибкости стенки.Для определения размеров поясных листов далее вычисляется:
-требуемый момент инерции сечения балки

-момент инерции сечения стенки

-требуемая площадь сечения поясного листа
.При заданной толщине tf находится ширина поясного листа

Размеры bf и tf следует согласовать с данными табл. 5 приложения 14 [1].
Устойчивость пояса балки является обеспеченной при удовлетворении условия:

В рассматриваемом примере:
Из условия среза толщина стенки
см.Толщина стенки tw согласно рекомендации табл. 7.2 [1] должна составлять 10…12 мм. Согласно табл.5 приложения 14 [1] принимаем tw=10мм.
Определяем λwфакт = 126/1 = 126 ≈ λw = 130.
Требуемый момент инерции сечения:
Ixтр = 11420∙130/2 = 742300 см4.
Момент инерции сечения стенки:
Iw = 1∙1263/12 = 166700 см4.
Требуемая площадь сечения поясного листа:
см2 .Назначаем сечение пояса с учетом данных табл.5 прил.14 [1]:
tf × bf = 20 × 360 (мм);
Af = 2∙36 = 72 см2.
Проверяем условие:

Устойчивость пояса балки обеспечена.
2.4. Проверка прочности подкрановой балки
2.4.1. Определяются геометрические характеристики скомпонованного сечения подкрановой конструкции (см. рис.3).
Момент инерции сечения подкрановой балки относительно оси x-x

соответствующий момент сопротивления сечения находится по формуле:
.Для определения геометрических характеристик тормозной балки, в состав которой входит верхний пояс подкрановой балки, швеллер и горизонтальный лист, предварительно находится положение центра тяжести сечения:
,где х1 = hн - zо = 30 мм – расстояние от центра тяжести швеллера до оси подкрановой балки;
= 40 мм - расстояние от центра тяжести сечения листа до оси подкрановой балки.После вычисления xo находим момент инерции сечения

и момент сопротивления сечения, соответствующий точке

где
– расстояние от точки А до центра тяжести сечения тормозной балки (см. рис. 3б). Проверка прочности сечения выполняется по формуле:

В рассматриваемом примере:

см2.
В качестве элементов тормозной балки принимаем швеллер №36 и лист сечением bл×tл=1260×6 мм, при этом (см. рис.3б):
x1=1500 – 27 – 30 = 1443 мм = 144,3 см ;
x2=1260/2 + 360/2 – 40 = 770 мм = 77 см .
Далее находим:
см;
85,3 см;

=8880 см2.Проверяем прочность сечения:
20,5 + 2,35 = 22,85 кН/см2 < 24 кН/см2 Прочность стенки балки на срез силой Qх является обеспеченной, поскольку принятая толщина стенки превышает толщину, требуемую по условию сопротивления срезу.
Жесткость балки также обеспечена, так как принятая высота балки hб превышает высоту hmin.
2.4.2. Прочность стенки балки от действия местных напряжений под колесом крана проверяется по формуле:

где γf1- коэффициент увеличения нагрузки на колесе, учитывающий возможное перераспределение усилий между колесами и динамический характер нагрузки, принимаемый равным:
γf1 = 1,6 –для группы режима кранов 8К жестким подвесом груза;
γf1 = 1,4 – для группы режима кранов 8К с гибким подвесом груза;
γf = 1,3 – для группы режима кранов 7К;
γf1 = 1,1 – для остальных групп режимов кранов.
Fk *– расчетная нагрузка, передаваемая колесом крана, без учета динамичности;
ℓef – условная (расчетная) длина распределения нагрузки, которая зависит от жесткости пояса кранового рельса, типа сопряжения пояса со стенкой и определяется по формуле:

где С – коэффициент, учитывающий степень податливости сопряжения пояса и стенки, принимаемый для сварных балок равный 3,25;
If1 – сумма собственных моментов инерции пояса кранового рельса,

Iк.р. – момент инерции кранового рельса, принимаемый по табл. 6 приложения 14[1].
В рассматриваемом примере:
Для кранов группы режима крана 8К (особого режима работы) с гибким подвесом груза коэффициент γf1 = 1,4.
Для крана Q = 30/5 т используется крановый рельс КР-70 (см. прил.1[1]).
По табл.6 приложения 14 [1]
Iк.р.=1081,99 см4 ≈1082 см4
Момент инерции:
If1=1082+36∙23∕12=1106 см4.
Условная длина распределения нагрузки от колеса крана:

Расчетная нагрузка:
Fk*=0,95∙1,1∙326=341 кН.
Проверяем прочность стенки при действии местных напряжений под колесом крана:
14,2 кН/см2Прочность стенки обеспечена.
Рекомендуемая литература
Основная
1. Металлические конструкции: учебник для студентов высш. учеб. заведений /под ред. Ю.И. Кудишина. – М.: Академия, 2007.
2. Москалев Н.С., Пронозин Я.А. Металлические конструкции: учебник. – М.: Изд-во АСВ, 2008.
3. Металлические конструкции: в 3т.: учебник для строит. вузов /под ред. В.В. Горева.– М.: Высш. шк., 2001. – Т.1. Элементы конструкций.
4. Металлические конструкции: в 3т.: учебник для строит. вузов /под ред. В.В. Горева.– М.: Высш. шк., 2001. – Т. 2. Конструкции зданий.
Дополнительная
5. Митюгов Е.А. Курс металлических конструкций: учебник. – М.: Изд-во АСВ, 2008.
6. Металлические конструкции. Общий курс: учебник для вузов /под ред. Е.И. Беленя. – М.: Стройиздат, 1985.
Нормативная
7. СНиП II-23-81*. Стальные конструкции. – М.: ФГУП ЦПП, 2006.
8. СП53-102-2004. Общие правила проектирования стальных конструкций. – М: ФГУП ЦПП, 2005.
9. СНиП 2.01.07-85*. Нагрузки и воздействия. – М.: ФГУП ЦПП, 2007.
Содержание
Введение ……………………………………………………………………….2
1. Компоновка однопролетной стальной поперечной рамы ………………3
2. Расчет подкрановой балки ………………………………………………….9
2.1. Определение нагрузок на подкрановую балку…………………….....9
2.2. Определение расчетных усилий ……………………………..………11
2.3. Подбор сечения подкрановой балки …………………….….……….12
2.4. Проверка прочности подкрановой балки …………………….……..18
Рекомендуемая литература ………………………………….……….………22
ПРОЕКТИРОВАНИЕ ПОДКРАНОВЫХ КОНСТРУКЦИЙ
Методические указания
к выполнению курсового проекта по дисциплине
“Металлические конструкции, включая сварку”
для студентов специальности ПГС
всех форм обучения
Составили: РАЩЕПКИНА Светлана Алексеевна
ЖЕЛЕЗНОВА Людмила Михайловна
РАЩЕПКИН Сергей Викторович
Рецензент Г.М.Мордовин
Редактор Л.В. Максимова
Подписано в печать 03.12.09 Формат 60×84 1/16
Бум. тип Усл. печ. л 1,5 Уч. – изд.л.1,5
Тираж 100 экз. Заказ Беспл атно
Саратовский государственный технический университет
410054, г. Саратов, ул. Политехническая, 77
Копипринтер БИТТиУ, 413840, г. Балаково, ул. Чапаева, 140

